Metrodom

Eladó panellakás
Budapest, XIV. kerület, földszint

+ 4 kép 1/7
64 900 000 Ft64.9 M Ft 1 324 490 Ft/m2
2 szoba
49 m²
földszint
építés éve:1980

Részletes adatok

Fűtés: Távfűtés
Emelet: földszint
Extrák: Lift
Energetikai besorolás: Nem adta meg a hirdető

Az OTP Bank lakáshitel ajánlataFizetett hirdetés

+36 70 355
Szalontai Zsuzsanna
Szépvölgyi úti Iroda (OTP Ingatlanpont Kft.)

Érdekel az OTP Bank kedvezményes lakáshitel ajánlata? *

* A kérdésre „Igen” válasz bejelölése esetén, az „Üzenet küldése” gombra kattintva kijelentem, hogy az OTP Bank Nyrt. Adatkezelési tájékoztatójának tartalmát megismertem és tudomásul vettem.

Eladó panellakás leírása

XIV. kerület, Füredi lakótelep: saját kényelem vagy azonnali hozam az Ond vezér útján!

Eladásra kínálunk a XIV. kerület egyik legkeresettebb részén, a Füredi lakótelepen egy 49 m2-es, 2 szobás, loggiás, jó állapotú panellakást. Az ingatlan egy panelprogramon átesett, liftes társasház magasföldszintjén található, nyugati fekvésének köszönhetően pedig rendkívül világos.

Befektetők figyelem!
Az ingatlan jelenleg is megbízható bérlők által lakott, akik az adásvétel után is szívesen maradnának. Ez kiváló lehetőség azoknak, akik azonnali hozamot keresnek, hiszen a beköltözhetővé tétel vagy bérlőkeresés költségei és ideje megspórolhatóak. Stabil kereslet, biztos megtérülés!

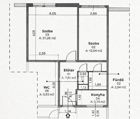
A lakás belső elrendezése:
A lakásba belépve egy praktikus, L alakú előtérbe érkezünk, ahonnan minden helyiség külön megközelíthető. Jobbra található a világos konyha, valamint a különálló WC és fürdőszoba. A közlekedő végén helyezkedik el a két tágas szoba; a kisebbik szobából közvetlen kijárás nyílik a nyugati fekvésű loggiára, amely ideális helyszín az esti kikapcsolódáshoz.

A társasház és a környezet:
A 10 emeletes társasház tiszta, rendezett, liftes és számkódos beléptetőrendszerrel védett. A környék igazi zöldövezeti paradicsom: parkok, játszóterek és sétatávolságra lévő kikapcsolódási lehetőségek jellemzik a Füredi lakótelepet.

Infrastruktúra és közlekedés:
A lokáció párját ritkítja, hiszen minden karnyújtásnyira van, amire a hétköznapokban szükség lehet:
Vásárlás: Árkád, Sugár, IKEA, ALDI, SPAR, pékségek és éttermek.
Szolgáltatások: Óvoda, iskola, posta, gyógyszertár a közvetlen közelben.
Közlekedés: A 80-as troli megállója szinte a ház előtt, az M2-es metró (Örs vezér tere) mindössze 2 megálló. A HÉV és számos buszjárat szintén könnyen elérhető, így a város bármely pontja gyorsan megközelíthető.

Ne maradjon le erről a remek lehetőségről! Akár saját otthonnak, akár kiadásra keres ingatlant, ez a lakás minden szempontból jó döntés.

Az OTP Ingatlanpont teljes körű ügyintézéssel áll az eladók és a vevők rendelkezésére. A kínálatunkból választott ingatlan finanszírozásához kedvezményes hitelkonstrukciót kínálunk. Az adásvételi szerződés megkötéséhez igény szerint megbízható ügyvédi közreműködést biztosítunk, és segítséget nyújtunk az adásvételhez kapcsolódó ügyek intézéséhez is.

Hirdetés feltöltve: 2026. 04. 01.

2 szobás panellakások ára Budapesten

Ebből az összehasonlításból megtudhatod, hogyan viszonyul a lakás ára a környékbeli panellakások átlagos árához. Ez nem azt jelenti, hogy ennyivel olcsóbb vagy drágább, mint amennyit a lakás ér, hanem hogy ennyivel tér el a környékbeli átlagtól.

Ennek a m² ára
XIV. kerület m² ár
Budapest m² ár
1324 e Ft
1359 e Ft 3%
1350 e Ft 2%
Ennek az ára
XIV. kerület átlagár
Budapest átlagár
64.9 M Ft m Ft
68.9 m Ft 6%
65.1 m Ft 0%

Az ingatlan elhelyezkedése

Cím: Budapest, XIV. kerület, földszint

Eladó ingatlanok a környékről

XIV. kerület
Eladó panellakás

Budapest, XIV. kerület

74.9 M Ft
2 szoba
49 m²
XIV. kerület
Eladó panellakás

Budapest, XIV. kerület

74.9 M Ft
2 szoba
49 m²
XIV. kerület, Rákosfalva, Szentmihályi út
Eladó panellakás

Budapest, XIV. kerület

59.9 M Ft
2 szoba
46 m²
XVIII. kerület
Eladó ikerház

Budapest, XVIII. kerület

124.9 M Ft
4 szoba
180 m²
XIV. kerület
Eladó panellakás

Budapest, XIV. kerület

74.9 M Ft
2 szoba
49 m²
XIV. kerület
Eladó panellakás

Budapest, XIV. kerület

89.9 M Ft
3 szoba
68 m²
XIII. kerület
Eladó garázs

Budapest, XIII. kerület

12 M Ft
14 m²
XIV. kerület
Eladó panellakás

Budapest, XIV. kerület

65.2 M Ft
2 szoba
46 m²
XIV. kerület
Eladó panellakás

Budapest, XIV. kerület

74.9 M Ft
2 szoba
49 m²
XIX. kerület
Eladó téglalakás

Budapest, XIX. kerület

66.398 M Ft
2 szoba
47 m²
XI. kerület, Spanyolrét, Virágkertész utca 1/A-2A
Eladó téglalakás

Budapest, XI. kerület

101.21 M Ft
2 szoba
51 m²
XI. kerület, Spanyolrét, Virágkertész utca 1/A-2A
Eladó téglalakás

Budapest, XI. kerület

97.79 M Ft
2 szoba
53 m²
XIV. kerület, Alsórákos, Csertő utca
Eladó panellakás

Budapest, XIV. kerület

65.2 M Ft
2 szoba
46 m²
XI. kerület, Spanyolrét, Virágkertész utca 1/A-2A
Eladó téglalakás

Budapest, XI. kerület

207.471 M Ft
4 szoba
125 m²
XI. kerület, Spanyolrét, Virágkertész utca 1/A-2A
Eladó téglalakás

Budapest, XI. kerület

131.32 M Ft
3 szoba
72 m²
XIV. kerület
Eladó panellakás

Budapest, XIV. kerület

74.9 M Ft
2 szoba
49 m²
XIV. kerület
Eladó panellakás

Budapest, XIV. kerület

65.2 M Ft
2 szoba
46 m²
XIX. kerület
Eladó panellakás

Budapest, XIX. kerület

62.9 M Ft
3 szoba
53 m²
XIV. kerület
Eladó panellakás

Budapest, XIV. kerület

65.2 M Ft
2 szoba
46 m²
XI. kerület, Spanyolrét, Virágkertész utca 1/A-2A
Eladó téglalakás

Budapest, XI. kerület

173.42 M Ft
3 szoba
91 m²
XI. kerület, Spanyolrét, Virágkertész utca 1/A-2A
Eladó téglalakás

Budapest, XI. kerület

173.4 M Ft
4 szoba
112 m²
XIV. kerület
Eladó panellakás

Budapest, XIV. kerület

65.9 M Ft
2 szoba
50 m²
XI. kerület, Spanyolrét, Virágkertész utca 1/A-2A
Eladó téglalakás

Budapest, XI. kerület

107.57 M Ft
2 szoba
62 m²
XVII. kerület
Eladó családi ház

Budapest, XVII. kerület

179 M Ft
5 szoba
150 m²

Falusi CSOK ingatlanok

Hosszúpereszteg
Eladó családi ház

Hosszúpereszteg

27.9 M Ft
4 szoba
121 m²
Tápióbicske
Eladó ikerház

Tápióbicske

93.5 M Ft
7 szoba
136 m²
Szentmártonkáta
Eladó családi ház

Szentmártonkáta

35 M Ft
3 szoba
70 m²
Igal
Eladó családi ház

Igal

49.3 M Ft
7 szoba
275 m²
Bag
Eladó családi ház

Bag

16.9 M Ft
6 szoba
160 m²
Magyarszék
Eladó családi ház

Magyarszék

48.5 M Ft
3 + 1 szoba
86 m²
Ábrahámhegy
Eladó családi ház

Ábrahámhegy

139 M Ft
4 szoba
106 m²
Ceglédbercel
Eladó családi ház

Ceglédbercel

65.9 M Ft
3 szoba
97 m²