Metrodom

Eladó panellakás
Budapest, XIV. kerület, földszint

+ 4 kép 1/7
62 900 000 Ft62.9 M Ft 1 283 673 Ft/m2
2 szoba
49 m²
földszint
építés éve:1980

Részletes adatok

Fűtés: Távfűtés
Emelet: földszint
Extrák: Lift
Energetikai besorolás: B

Az OTP Bank lakáshitel ajánlataFizetett hirdetés

+36 20 283
Varga László Pál
OTP Ingatlanpont XV. kerület

Érdekel az OTP Bank kedvezményes lakáshitel ajánlata? *

* A kérdésre „Igen” válasz bejelölése esetén, az „Üzenet küldése” gombra kattintva kijelentem, hogy az OTP Bank Nyrt. Adatkezelési tájékoztatójának tartalmát megismertem és tudomásul vettem.

Eladó panellakás leírása

XIV. kerület, Füredi lakótelep: saját kényelem vagy azonnali hozam az Ond vezér útján!

Eladásra kínálunk a XIV. kerület egyik legkeresettebb részén, a Füredi lakótelepen egy 49 m2-es, 2 szobás, loggiás, jó állapotú panellakást. Az ingatlan egy panelprogramon átesett, liftes társasház magasföldszintjén található, nyugati fekvésének köszönhetően pedig rendkívül világos.

Befektetők figyelem!
Az ingatlan jelenleg is megbízható bérlők által lakott, akik az adásvétel után is szívesen maradnának. Ez kiváló lehetőség azoknak, akik azonnali hozamot keresnek, hiszen a beköltözhetővé tétel vagy bérlőkeresés költségei és ideje megspórolhatóak. Stabil kereslet, biztos megtérülés!

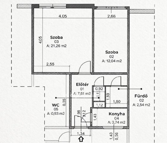
A lakás belső elrendezése:
A lakásba belépve egy praktikus, L alakú előtérbe érkezünk, ahonnan minden helyiség külön megközelíthető. Jobbra található a világos konyha, valamint a különálló WC és fürdőszoba. A közlekedő végén helyezkedik el a két tágas szoba; a kisebbik szobából közvetlen kijárás nyílik a nyugati fekvésű loggiára, amely ideális helyszín az esti kikapcsolódáshoz.

A társasház és a környezet:
A 10 emeletes társasház tiszta, rendezett, liftes és számkódos beléptetőrendszerrel védett. A környék igazi zöldövezeti paradicsom: parkok, játszóterek és sétatávolságra lévő kikapcsolódási lehetőségek jellemzik a Füredi lakótelepet.

Infrastruktúra és közlekedés:
A lokáció párját ritkítja, hiszen minden karnyújtásnyira van, amire a hétköznapokban szükség lehet:
Vásárlás: Árkád, Sugár, IKEA, ALDI, SPAR, pékségek és éttermek.
Szolgáltatások: Óvoda, iskola, posta, gyógyszertár a közvetlen közelben.
Közlekedés: A 80-as troli megállója szinte a ház előtt, az M2-es metró (Örs vezér tere) mindössze 2 megálló. A HÉV és számos buszjárat szintén könnyen elérhető, így a város bármely pontja gyorsan megközelíthető.

Ne maradjon le erről a remek lehetőségről! Akár saját otthonnak, akár kiadásra keres ingatlant, ez a lakás minden szempontból jó döntés.

Az OTP Ingatlanpont teljes körű ügyintézéssel áll az eladók és a vevők rendelkezésére. A kínálatunkból választott ingatlan finanszírozásához kedvezményes hitelkonstrukciót kínálunk. Az adásvételi szerződés megkötéséhez igény szerint megbízható ügyvédi közreműködést biztosítunk, és segítséget nyújtunk az adásvételhez kapcsolódó ügyek intézéséhez is.

Hirdetés feltöltve: 2026. 04. 01. Utoljára módosítva: 2026. 04. 17.

2 szobás panellakások ára Budapesten

Ebből az összehasonlításból megtudhatod, hogyan viszonyul a lakás ára a környékbeli panellakások átlagos árához. Ez nem azt jelenti, hogy ennyivel olcsóbb vagy drágább, mint amennyit a lakás ér, hanem hogy ennyivel tér el a környékbeli átlagtól.

Ennek a m² ára
XIV. kerület m² ár
Budapest m² ár
1284 e Ft
1378 e Ft 7%
1355 e Ft 5%
Ennek az ára
XIV. kerület átlagár
Budapest átlagár
62.9 M Ft m Ft
65.1 m Ft 3%
65.3 m Ft 4%

Az ingatlan elhelyezkedése

Cím: Budapest, XIV. kerület, földszint

Eladó ingatlanok a környékről

II. kerület
Eladó téglalakás

Budapest, II. kerület

126.9 M Ft
3 szoba
63 m²
XIV. kerület
Eladó panellakás

Budapest, XIV. kerület

79.9 M Ft
3 szoba
56 m²
VI. kerület, Külső Terézváros, Andrássy út
Eladó téglalakás

Budapest, VI. kerület

44.5 M Ft
1 szoba
20 m²
XIV. kerület
Eladó panellakás

Budapest, XIV. kerület

74.9 M Ft
2 szoba
49 m²
XVII. kerület
Eladó ikerház

Budapest, XVII. kerület

149.8 M Ft
4 szoba
117 m²
XIV. kerület, Rákosfalva, Füredi
Eladó panellakás

Budapest, XIV. kerület

79.9 M Ft
1 + 2 szoba
56 m²
XIV. kerület, Törökőr, Zsálya utca
Eladó panellakás

Budapest, XIV. kerület

59.9 M Ft
1 + 1 szoba
48 m²
XIV. kerület
Eladó panellakás

Budapest, XIV. kerület

74.9 M Ft
2 szoba
49 m²
X. kerület
Eladó téglalakás

Budapest, X. kerület

33 M Ft
1 szoba
36 m²
VI. kerület, Belső Terézváros, Bajcsy Zsilinszky út
Eladó téglalakás

Budapest, VI. kerület

148 M Ft
4 szoba
86 m²
VII. kerület
Eladó téglalakás

Budapest, VII. kerület

46.9 M Ft
1 szoba
20 m²
XIV. kerület, Rákosfalva, Szentmihályi út
Eladó panellakás

Budapest, XIV. kerület

59.9 M Ft
2 szoba
46 m²
XIV. kerület
Eladó panellakás

Budapest, XIV. kerület

74.9 M Ft
2 szoba
49 m²
III. kerület, Csillaghegy, Aranyhegy Ürömhegy határán sík telek
Eladó telek

Budapest, III. kerület

97 M Ft
1000 m²
XIV. kerület
Eladó panellakás

Budapest, XIV. kerület

74.9 M Ft
2 szoba
49 m²
XIV. kerület
Eladó panellakás

Budapest, XIV. kerület

74.2 M Ft
2 szoba
50 m²
XI. kerület, Kelenföld, Bornemissza tér
Eladó panellakás

Budapest, XI. kerület

67 M Ft
1 + 1 szoba
37 m²
XIV. kerület
Eladó panellakás

Budapest, XIV. kerület

74.9 M Ft
2 szoba
49 m²
XIV. kerület
Eladó panellakás

Budapest, XIV. kerület

89.9 M Ft
3 szoba
68 m²
III. kerület, Csillaghegy, Aranyhegy Ürömhegy határán panorámás telek
Eladó telek

Budapest, III. kerület

125 M Ft
1113 m²
XIV. kerület
Eladó panellakás

Budapest, XIV. kerület

74.9 M Ft
2 szoba
49 m²
XIV. kerület
Eladó panellakás

Budapest, XIV. kerület

74.9 M Ft
2 szoba
49 m²
XIV. kerület
Eladó panellakás

Budapest, XIV. kerület

61.5 M Ft
2 szoba
46 m²
XIII. kerület
Eladó panellakás

Budapest, XIII. kerület

89.9 M Ft
3 szoba
66 m²

Falusi CSOK ingatlanok

Máriakéménd
Eladó családi ház

Máriakéménd

83.9 M Ft
4 szoba
118 m²
Felsőlajos
Eladó családi ház

Felsőlajos

100 M Ft
4 szoba
140 m²
Gönc
Eladó családi ház

Gönc

18 M Ft
2 szoba
80 m²
Bag
Eladó családi ház

Bag

16.9 M Ft
6 szoba
160 m²
Gesztely
Eladó családi ház

Gesztely

12.5 M Ft
3 szoba
65 m²
Maráza
Eladó családi ház

Maráza

29.9 M Ft
3 szoba
96 m²
Bodrogkeresztúr
Eladó családi ház

Bodrogkeresztúr

98 M Ft
3 + 1 szoba
189 m²
Bácsbokod
Eladó családi ház

Bácsbokod

55 M Ft
6 szoba
250 m²