Avico Greentop

Eladó panellakás
Budapest, XIV. kerület, földszint

+ 4 kép 1/7
62 900 000 Ft62.9 M Ft 1 283 673 Ft/m2
2 szoba
49 m²
földszint
építés éve:1980

Részletes adatok

Fűtés: Távfűtés
Emelet: földszint
Extrák: Lift
Energetikai besorolás: Nem adta meg a hirdető

Az OTP Bank lakáshitel ajánlataFizetett hirdetés

+36 30 400
Papp-Horváth Katalin
Otp Ingatlanpont Falk Miksa

Érdekel az OTP Bank kedvezményes lakáshitel ajánlata? *

* A kérdésre „Igen” válasz bejelölése esetén, az „Üzenet küldése” gombra kattintva kijelentem, hogy az OTP Bank Nyrt. Adatkezelési tájékoztatójának tartalmát megismertem és tudomásul vettem.

Eladó panellakás leírása

XIV. kerület, Füredi lakótelep: saját kényelem vagy azonnali hozam az Ond vezér útján!

Eladásra kínálunk a XIV. kerület egyik legkeresettebb részén, a Füredi lakótelepen egy 49 m2-es, 2 szobás, loggiás, jó állapotú panellakást. Az ingatlan egy panelprogramon átesett, liftes társasház magasföldszintjén található, nyugati fekvésének köszönhetően pedig rendkívül világos.

Befektetők figyelem!
Az ingatlan jelenleg is megbízható bérlők által lakott, akik az adásvétel után is szívesen maradnának. Ez kiváló lehetőség azoknak, akik azonnali hozamot keresnek, hiszen a beköltözhetővé tétel vagy bérlőkeresés költségei és ideje megspórolhatóak. Stabil kereslet, biztos megtérülés!

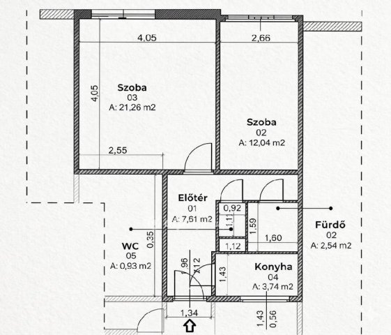
A lakás belső elrendezése:
A lakásba belépve egy praktikus, L alakú előtérbe érkezünk, ahonnan minden helyiség külön megközelíthető. Jobbra található a világos konyha, valamint a különálló WC és fürdőszoba. A közlekedő végén helyezkedik el a két tágas szoba; a kisebbik szobából közvetlen kijárás nyílik a nyugati fekvésű loggiára, amely ideális helyszín az esti kikapcsolódáshoz.

A társasház és a környezet:
A 10 emeletes társasház tiszta, rendezett, liftes és számkódos beléptetőrendszerrel védett. A környék igazi zöldövezeti paradicsom: parkok, játszóterek és sétatávolságra lévő kikapcsolódási lehetőségek jellemzik a Füredi lakótelepet.

Infrastruktúra és közlekedés:
A lokáció párját ritkítja, hiszen minden karnyújtásnyira van, amire a hétköznapokban szükség lehet:
Vásárlás: Árkád, Sugár, IKEA, ALDI, SPAR, pékségek és éttermek.
Szolgáltatások: Óvoda, iskola, posta, gyógyszertár a közvetlen közelben.
Közlekedés: A 80-as troli megállója szinte a ház előtt, az M2-es metró (Örs vezér tere) mindössze 2 megálló. A HÉV és számos buszjárat szintén könnyen elérhető, így a város bármely pontja gyorsan megközelíthető.

Ne maradjon le erről a remek lehetőségről! Akár saját otthonnak, akár kiadásra keres ingatlant, ez a lakás minden szempontból jó döntés.

Az OTP Ingatlanpont teljes körű ügyintézéssel áll az eladók és a vevők rendelkezésére. A kínálatunkból választott ingatlan finanszírozásához kedvezményes hitelkonstrukciót kínálunk. Az adásvételi szerződés megkötéséhez igény szerint megbízható ügyvédi közreműködést biztosítunk, és segítséget nyújtunk az adásvételhez kapcsolódó ügyek intézéséhez is.

Referencia szám: M325598

Hirdetés feltöltve: 2026. 04. 01. Utoljára módosítva: 2026. 04. 23.

2 szobás panellakások ára Budapesten

Ebből az összehasonlításból megtudhatod, hogyan viszonyul a lakás ára a környékbeli panellakások átlagos árához. Ez nem azt jelenti, hogy ennyivel olcsóbb vagy drágább, mint amennyit a lakás ér, hanem hogy ennyivel tér el a környékbeli átlagtól.

Ennek a m² ára
XIV. kerület m² ár
Budapest m² ár
1284 e Ft
1378 e Ft 7%
1355 e Ft 5%
Ennek az ára
XIV. kerület átlagár
Budapest átlagár
62.9 M Ft m Ft
65.1 m Ft 3%
65.3 m Ft 4%

Az ingatlan elhelyezkedése

Cím: Budapest, XIV. kerület, földszint

Eladó ingatlanok a környékről

XVI. kerület
Eladó téglalakás

Budapest, XVI. kerület

69.9 M Ft
1 + 2 szoba
57 m²
XIII. kerület
Eladó téglalakás

Budapest, XIII. kerület

92.9 M Ft
2 + 1 szoba
76 m²
XV. kerület
Eladó panellakás

Budapest, XV. kerület

63.5 M Ft
2 szoba
53 m²
XXI. kerület
Eladó téglalakás

Budapest, XXI. kerület

69 M Ft
2 + 1 szoba
61 m²
XIV. kerület
Eladó panellakás

Budapest, XIV. kerület

79.9 M Ft
3 szoba
56 m²
XIV. kerület
Eladó panellakás

Budapest, XIV. kerület

63 M Ft
2 szoba
46 m²
XIV. kerület
Eladó panellakás

Budapest, XIV. kerület

79 M Ft
2 szoba
50 m²
XVIII. kerület, Gloriett-telep, Margó Tivadar utca
Eladó téglalakás

Budapest, XVIII. kerület

49.9 M Ft
1 + 1 szoba
38 m²
XIV. kerület, Rákosfalva, Szentmihályi út
Eladó panellakás

Budapest, XIV. kerület

59.9 M Ft
2 szoba
46 m²
XIV. kerület
Eladó panellakás

Budapest, XIV. kerület

95 M Ft
2 + 1 szoba
63 m²
XIV. kerület, Rákosfalva, Füredi
Eladó panellakás

Budapest, XIV. kerület

79.9 M Ft
1 + 2 szoba
56 m²
X. kerület
Eladó családi ház

Budapest, X. kerület

75.9 M Ft
4 szoba
100 m²
VIII. kerület
Eladó téglalakás

Budapest, VIII. kerület

51.9 M Ft
1 + 1 szoba
32 m²
XIV. kerület
Eladó téglalakás

Budapest, XIV. kerület

71.9 M Ft
1 + 1 szoba
42 m²
XI. kerület, Kelenföld, Fehérvári út
Eladó téglalakás

Budapest, XI. kerület

74 M Ft
2 szoba
61 m²
XIV. kerület
Eladó panellakás

Budapest, XIV. kerület

65.2 M Ft
2 szoba
46 m²
IX. kerület, Ferencváros, Ferenc körút
Eladó téglalakás

Budapest, IX. kerület

89.9 M Ft
3 szoba
84 m²
XIV. kerület
Eladó panellakás

Budapest, XIV. kerület

61.5 M Ft
2 szoba
46 m²
XIV. kerület
Eladó panellakás

Budapest, XIV. kerület

74.9 M Ft
2 szoba
49 m²
XIV. kerület
Eladó panellakás

Budapest, XIV. kerület

74.9 M Ft
2 szoba
49 m²
XIV. kerület
Eladó panellakás

Budapest, XIV. kerület

69 M Ft
2 szoba
50 m²
IX. kerület, Ferencváros, Lónyai utca
Eladó téglalakás

Budapest, IX. kerület

200 M Ft
5 szoba
101 m²
XIV. kerület
Eladó panellakás

Budapest, XIV. kerület

74.9 M Ft
2 szoba
49 m²
XIV. kerület
Eladó panellakás

Budapest, XIV. kerület

74.9 M Ft
2 szoba
49 m²

Falusi CSOK ingatlanok

Somogyszentpál
Eladó családi ház

Somogyszentpál

25.3 M Ft
3 szoba
80 m²
Tibolddaróc
Eladó családi ház

Tibolddaróc

12 M Ft
2 szoba
56 m²
Somlójenő
Eladó családi ház

Somlójenő

64.9 M Ft
4 szoba
221 m²
Bogács
Eladó családi ház

Bogács

89.5 M Ft
4 + 2 szoba
180 m²
Törtel
Eladó családi ház

Törtel

33 M Ft
3 szoba
100 m²
Perkáta
Eladó családi ház

Perkáta

38.95 M Ft
1 + 2 szoba
72 m²
Balástya, Tanya 86/1
Eladó családi ház

Balástya

8.28 M Ft
1 + 1 szoba
111 m²
Ónod
Eladó családi ház

Ónod

25.9 M Ft
3 + 1 szoba
180 m²