Eladó panellakás
Budapest, XIII. kerület, 9. emelet

+ 10 kép 1/13
67 900 000 Ft67.9 M Ft 1 476 087 Ft/m2
2 szoba
46 m2
9. emelet
építés éve:1968

Részletes adatok

Állapot: Felújított
Fűtés: Távfűtés
Extrák: Lift
Energetikai besorolás: Nem adta meg a hirdető

Az OTP Bank lakáshitel ajánlataFizetett hirdetés

+36 70 604
Szabó Emilía
referens

Érdekel az OTP Bank kedvezményes lakáshitel ajánlata? *

* A kérdésre „Igen” válasz bejelölése esetén, az „Üzenet küldése” gombra kattintva kijelentem, hogy az OTP Bank Nyrt. Adatkezelési tájékoztatójának tartalmát megismertem és tudomásul vettem.

Eladó panellakás leírása

XIII. kerület parkos övezetében ,Róbert Károly körúton,panel építésű ház 9. emeletén eladó egy 46 nm-es, napfényes, 2 szobás felújított lakás.

A ház műszakilag, esztétikailag folyamatosan karbantartott, az elektromos vezeték az ablakok, bejárati kapu cseréje megtörtént.
A lépcsőház és a lift is megújult.

A ház pénzügyi helyzete rendezett, megtakarítással rendelkezik.

Lakás:

Az eladó ingatlan először 2021-ben kapott felújítást, a tulajdonos 2025-év tavaszán esztétikailag újból felújította, bár az elmúlt években nem használták életszerűen a lakást.
A konyhabútor , tűzhely ( villanysütő-gázfőzőlap ) fürdőszobai mosdókagyló-szekrénnyel a tavaszi felújítás során lett beépítve.

A szoba ablakai fából készültek asztalos által méretre–hő és hangszigetelt üveggel, a konyhai ablak műanyag nyílászárót kapott.
A beltéri ajtók csiszolása, festése a lakás tisztasági festése is megtörtént.

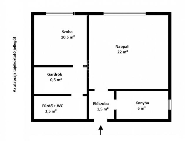
Belépve az 1.5 nm-es előtérbe érkezünk, jobb oldalon találjuk az ablakos 5 nm-es konyhát, bal oldalon a 3.5 nm-es kádas fürdőszobát.
Az előtérből nyílik a 22 nm-es nappali szoba , mellette lépünk a 10.5 nm-es hálószobába. ahol helyet kapott a 3.5 nm-es gardrób helyiség.

A szobák minőségi laminált parketta a, fürdőszoba, előszoba járólap burkolatot kapott.

A lakás melegét távhő , nyáron a kellemes hőmérsékletet hűtő-fűtő légkondicionáló biztosítja.

A lakás nyugati tájolású, egész nap benapozott.

Az ingatlan tehermentes, rendezett tulajdon viszonnyal rendelkezik.
A lakásban található bútorok, gépek ( tűzhely, hűtőszekrény, mikrohullámú sütő, mosógép) a vételár részét képezik.

A közös költség mindössze 16 000 Ft, tartalmazza a felújítási alapot, takarítást, szemétszállítást, a ház biztosítását.
A víz fogyasztást saját óra méri.

A környék infrastruktúrája kiváló úgy a közlekedés mint a bevásárlás könnyedén pár perc sétával elérhető.
.
Amennyiben felkeltettem érdeklődését vagy további kérdése volna , hívjon bizalommal.
Hívását hétvégén is fogadom.

SZ:E ...TOVÁBBI, TÖBBEZRES INGATLAN KÍNÁLAT: www.gdn-ingatlan.hu - GDN azonosító: 388466

Hirdetés feltöltve: 2025. 10. 15. Utoljára módosítva: 2025. 10. 15.

2 szobás panellakások ára Budapesten

Ebből az összehasonlításból megtudhatod, hogyan viszonyul a lakás ára a környékbeli panellakások átlagos árához. Ez nem azt jelenti, hogy ennyivel olcsóbb vagy drágább, mint amennyit a lakás ér, hanem hogy ennyivel tér el a környékbeli átlagtól.

Ennek a m² ára
XIII. kerület m² ár
Budapest m² ár
1476 e Ft
1358 e Ft -9%
1297 e Ft -14%
Ennek az ára
XIII. kerület átlagár
Budapest átlagár
67.9 M Ft m Ft
80.2 m Ft 15%
63.9 m Ft -6%

Az ingatlan elhelyezkedése

Cím: Budapest, XIII. kerület, 9. emelet

Eladó ingatlanok a környékről

Eladó panellakás
Eladó panellakás

IV. kerület

77.9 M Ft
2 + 1 szoba
67 m2
Eladó panellakás
Eladó panellakás

XIII. kerület, Tatai utca

79.9 M Ft
2 + 1 szoba
74 m2
Eladó téglalakás
Eladó téglalakás

III. kerület, Óbuda, Szomolnok utca

89.9 M Ft
2 + 2 szoba
96 m2
Eladó téglalakás
Eladó téglalakás

V. kerület, Belváros, Petőfi Sándor utca

134 M Ft
2 szoba
59 m2
Eladó panellakás
Eladó panellakás

XIII. kerület, Angyalföld

79.5 M Ft
4 szoba
87 m2
Eladó panellakás
Eladó panellakás

XIII. kerület, Angyalföld

79.5 M Ft
4 szoba
87 m2
Eladó panellakás
Eladó panellakás

XIII. kerület, Újlipótváros

89.5 M Ft
3 szoba
68 m2
Eladó téglalakás
Eladó téglalakás

IX. kerület

87 M Ft
2 szoba
38 m2
Eladó téglalakás
Eladó téglalakás

XIII. kerület, Angyalföld, Fiastyúk utca

41.99 M Ft
1 + 1 szoba
34 m2
Eladó ikerház
Eladó ikerház

II. kerület

299 M Ft
4 szoba
202 m2
Eladó téglalakás
Eladó téglalakás

VII. kerület

75 M Ft
1 szoba
45 m2
Eladó téglalakás
Eladó téglalakás

VII. kerület, Belső Erzsébetváros, Rózsa utca

172 M Ft
5 szoba
124 m2
Eladó téglalakás
Eladó téglalakás

XIII. kerület

79.99 M Ft
2 szoba
48 m2
Eladó panellakás
Eladó panellakás

XIII. kerület

89.5 M Ft
3 szoba
68 m2
Eladó panellakás
Eladó panellakás

XIII. kerület

79.5 M Ft
4 szoba
87 m2
Eladó panellakás
Eladó panellakás

XIII. kerület

69.4 M Ft
2 szoba
44 m2
Eladó téglalakás
Eladó téglalakás

VII. kerület, Külső Erzsébetváros, Murányi utca

104 M Ft
4 + 1 szoba
129 m2
Eladó panellakás
Eladó panellakás

XIII. kerület

79.5 M Ft
4 szoba
87 m2
Eladó panellakás
Eladó panellakás

XIII. kerület

79.5 M Ft
4 szoba
87 m2
Eladó panellakás
Eladó panellakás

XIII. kerület, Angyalföld

89 M Ft
3 szoba
53 m2
Eladó családi ház
Eladó családi ház

XXII. kerület, Budafok, Baross utca

239 M Ft
6 + 1 szoba
200 m2
Eladó panellakás
Eladó panellakás

XIII. kerület, Angyalföld, Gidófalvy Lajos Utca

77.8 M Ft
3 szoba
71 m2
Eladó panellakás
Eladó panellakás

XIII. kerület, Vizafogó

104.7 M Ft
3 szoba
69 m2

Falusi CSOK ingatlanok

Eladó családi ház
Eladó családi ház

Mikepércs

59.99 M Ft
4 szoba
81 m2
Eladó családi ház
Eladó családi ház

Dunaegyháza

13.5 M Ft
2 szoba
120 m2
Eladó családi ház
Eladó családi ház

Tök

124.2 M Ft
4 szoba
128 m2
Eladó családi ház
Eladó családi ház

Szalánta

149.9 M Ft
10 szoba
301 m2
Eladó családi ház
Eladó családi ház

Orgovány

68.5 M Ft
4 szoba
169 m2
Eladó családi ház
Eladó családi ház

Kánya

27.6 M Ft
3 + 1 szoba
62 m2
Eladó családi ház
Eladó családi ház

Kétegyháza

34.9 M Ft
3 szoba
125 m2
Eladó családi ház
Eladó családi ház

Szalánta, Hunyadi

41.9 M Ft
3 + 1 szoba
120 m2