River Life

Eladó panellakás
Budapest, XI. kerület, 7. emelet

+ 5 kép 1/8
69 900 000 Ft69.9 M Ft 1 184 746 Ft/m2
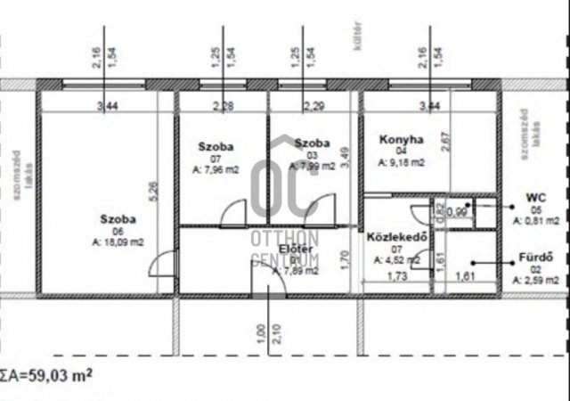
3 szoba
59 m²
7. emelet
építés éve:1978

Részletes adatok

Állapot: Felújítandó
Fűtés: Távfűtés
Emelet: 7. emelet
Extrák: Lift
Energetikai besorolás: Nem adta meg a hirdető

Az OTP Bank lakáshitel ajánlataFizetett hirdetés

+36 70 467
Alföldi-Szabó Erika Gabriella
referens

Érdekel az OTP Bank kedvezményes lakáshitel ajánlata? *

* A kérdésre „Igen” válasz bejelölése esetén, az „Üzenet küldése” gombra kattintva kijelentem, hogy az OTP Bank Nyrt. Adatkezelési tájékoztatójának tartalmát megismertem és tudomásul vettem.

Eladó panellakás leírása

Fedezze fel Budapest 11. kerületének egyik rejtett gyöngyszemét Albertfalván, ahol egy 59 négyzetméteres, háromszobás lakás várja új tulajdonosát. Ez a használt ingatlan sok lehetőséget rejt magában, hiszen felújítandó állapotának köszönhetően Ön alakíthatja ki álmai otthonát, vagy akár befektetési céllal is remek választás lehet. A lakás elrendezése ideális, hiszen a tágas szobák világosak és barátságosak, így mindenki számára kellemes környezetet biztosít.

A ház központi fűtésrendszerrel rendelkezik, amely egyedi méréssel üzemel, így Ön kontrollálhatja a költségeit. A környék biztonságos és csendes, ideális választás családok számára, de a fiatalok és a befektetők is megtalálják itt a számításaikat. Az Albertfalva városrész nyugodt, zöldövezeti hangulata mellett remek közlekedési lehetőségeket kínál. Az ingatlan közelében számos buszjárat és villamosmegálló található, így a város többi része könnyen elérhető, legyen szó munkába járásról vagy a város felfedezéséről.
Az ingatlan környezetében számos bolt, étterem és szolgáltatás található, így a mindennapi élethez szükséges dolgok könnyen elérhetőek. A közeli parkok és zöld területek kiváló lehetőséget biztosítanak a szabadidő eltöltésére, ahol a természet közelségét élvezheti. Albertfalva barátságos közössége és a környék szolid, családias légköre miatt ideális választás mindenki számára, aki értékeli a nyugalmat és a kényelmet.

Ha Ön egy olyan ingatlant keres, amely tele van lehetőségekkel, és szeretné saját ízlésére formálni, akkor ez a lakás tökéletes választás lehet, de az ilyen lehetőségek gyorsan elkelnek.
Kérdésekkel, további információkkal vagy megtekintési időpont egyeztetésével keressen bizalommal.

Hirdetés feltöltve: 2026. 04. 12. Utoljára módosítva: 2026. 04. 12.

3 szobás panellakások ára Budapesten

Ebből az összehasonlításból megtudhatod, hogyan viszonyul a lakás ára a környékbeli panellakások átlagos árához. Ez nem azt jelenti, hogy ennyivel olcsóbb vagy drágább, mint amennyit a lakás ér, hanem hogy ennyivel tér el a környékbeli átlagtól.

Ennek a m² ára
XI. kerület m² ár
Budapest m² ár
1185 e Ft
1470 e Ft 19%
1232 e Ft 4%
Ennek az ára
XI. kerület átlagár
Budapest átlagár
69.9 M Ft m Ft
81.1 m Ft 14%
75.8 m Ft 8%

Az ingatlan elhelyezkedése

Cím: Budapest, XI. kerület, 7. emelet

Eladó ingatlanok a környékről

VII. kerület, Belső Erzsébetváros, Kazinczy utca
Eladó téglalakás

Budapest, VII. kerület

89 M Ft
2 szoba
48 m²
VIII. kerület, Práter utca
Eladó téglalakás

Budapest, VIII. kerület

67.9 M Ft
4 szoba
78 m²
II. kerület
Eladó téglalakás

Budapest, II. kerület

1111.589 M Ft
4 szoba
336 m²
VII. kerület, Belső Erzsébetváros, Rottenbiller utca
Eladó téglalakás

Budapest, VII. kerület

115 M Ft
5 szoba
133 m²
VI. kerület, Külső Terézváros, Székely Bertalan utca
Eladó téglalakás

Budapest, VI. kerület

48.9 M Ft
1 szoba
29 m²
VI. kerület, Külső Terézváros, Eötvös utca
Eladó téglalakás

Budapest, VI. kerület

101.99 M Ft
3 szoba
79 m²
IX. kerület, Ferencváros, Üllői út
Eladó téglalakás

Budapest, IX. kerület

115.9 M Ft
5 szoba
68 m²
XI. kerület
Eladó panellakás

Budapest, XI. kerület

69.9 M Ft
2 szoba
49 m²
XI. kerület
Eladó panellakás

Budapest, XI. kerület

74.9 M Ft
2 szoba
49 m²
VIII. kerület, Harminckettesek tere
Eladó téglalakás

Budapest, VIII. kerület

99 M Ft
3 szoba
65 m²
XI. kerület
Eladó panellakás

Budapest, XI. kerület

74.9 M Ft
1 + 2 szoba
49 m²
XIII. kerület, Újlipótváros, Pannónia utca
Eladó téglalakás

Budapest, XIII. kerület

149.9 M Ft
3 szoba
110 m²
VIII. kerület, Üllői út
Eladó téglalakás

Budapest, VIII. kerület

169.5 M Ft
6 szoba
113 m²
XI. kerület
Eladó panellakás

Budapest, XI. kerület

77 M Ft
1 + 1 szoba
45 m²
XI. kerület
Eladó panellakás

Budapest, XI. kerület

74.9 M Ft
1 + 2 szoba
49 m²
XI. kerület
Eladó panellakás

Budapest, XI. kerület

79.2 M Ft
2 szoba
55 m²
VII. kerület, Belső Erzsébetváros, Bethlen Gábor utca
Eladó téglalakás

Budapest, VII. kerület

52.9 M Ft
1 szoba
26 m²
VI. kerület, Külső Terézváros, Székely Bertalan utca
Eladó téglalakás

Budapest, VI. kerület

51.9 M Ft
1 + 1 szoba
32 m²
V. kerület, Lipótváros, Ferenciek tere
Eladó téglalakás

Budapest, V. kerület

59.9 M Ft
1 szoba
28 m²
II. kerület, Rézmál, Muhar utca
Eladó családi ház

Budapest, II. kerület

208.8 M Ft
5 + 1 szoba
260 m²
II. kerület, Szemlőhegy, Szász Károly utca
Eladó téglalakás

Budapest, II. kerület

98.8 M Ft
3 szoba
70 m²
XI. kerület
Eladó panellakás

Budapest, XI. kerület

87.5 M Ft
3 szoba
62 m²
XI. kerület
Eladó panellakás

Budapest, XI. kerület

54.9 M Ft
1 szoba
31 m²
XI. kerület
Eladó panellakás

Budapest, XI. kerület

89 M Ft
1 + 2 szoba
51 m²

Falusi CSOK ingatlanok

Noszlop
Eladó családi ház

Noszlop

162.9 M Ft
4 + 1 szoba
170 m²
Sükösd
Eladó családi ház

Sükösd

29.9 M Ft
2 szoba
90 m²
Derekegyház
Eladó családi ház

Derekegyház

24 M Ft
2 + 2 szoba
81 m²
Szabadbattyán
Eladó családi ház

Szabadbattyán

147.99 M Ft
5 szoba
255 m²
Enese
Eladó családi ház

Enese

72.025 M Ft
4 szoba
75 m²
Kondoros
Eladó családi ház

Kondoros

25 M Ft
4 szoba
150 m²
Bag
Eladó családi ház

Bag

16.9 M Ft
6 szoba
160 m²
Karád
Eladó családi ház

Karád

42.9 M Ft
3 szoba
100 m²