Eladó panellakás
Budapest, X. kerület, Óhegy, 2. emelet

+ 10 kép 1/13
62 500 000 Ft62.5 M Ft 1 179 245 Ft/m2
2 szoba
53 m2
2. emelet
építés éve:1975

Részletes adatok

Fűtés: Távfűtés
Extrák: Lift
Energetikai besorolás: Nem adta meg a hirdető

Az OTP Bank lakáshitel ajánlataFizetett hirdetés

+36 70 409
Bereznai Beáta
referens

Érdekel az OTP Bank kedvezményes lakáshitel ajánlata? *

* A kérdésre „Igen” válasz bejelölése esetén, az „Üzenet küldése” gombra kattintva kijelentem, hogy az OTP Bank Nyrt. Adatkezelési tájékoztatójának tartalmát megismertem és tudomásul vettem.

Eladó panellakás leírása

Világos, erkélyes, panellakás a X. kerület zöldövezeti részén, Óhegyen!

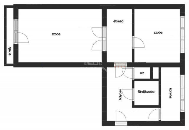
Megvételre kínálunk egy 53 nm-es, 2 különnyíló szobás + hallos, jó állapotú, erkélyes panellakást egy rendezett, folyamatosan karbantartott társasházban.
A lakás világos és tágas, elrendezése praktikus: 2 tágas szoba, hall, ablakos konyha, külön fürdő és toilette.

Az egyedi kialakítású 4 nm-es erkély kellemes pihenőhelyet biztosít.

Kiváló elhelyezkedés: a 85, 85E és 68-as buszmegállók pár perc sétára találhatók, így az Örs vezér tere és a KÖKI Terminál is 15–20 perc alatt elérhető. A közelben óvodák, iskolák, bevásárlási lehetőségek, valamint a Óhegy park és az Újhegyi Sportliget gondoskodnak a kényelmes mindennapokról és a kikapcsolódásról. ...TOVÁBBI, TÖBBEZRES INGATLAN KÍNÁLAT: www.gdn-ingatlan.hu - GDN azonosító: 388863

Hirdetés feltöltve: 2025. 10. 25. Utoljára módosítva: 2025. 10. 25.

2 szobás panellakások ára Budapesten

Ebből az összehasonlításból megtudhatod, hogyan viszonyul a lakás ára a környékbeli panellakások átlagos árához. Ez nem azt jelenti, hogy ennyivel olcsóbb vagy drágább, mint amennyit a lakás ér, hanem hogy ennyivel tér el a környékbeli átlagtól.

Ennek a m² ára
Óhegy m² ár
X. kerület m² ár
Budapest m² ár
1179 e Ft
774 e Ft -52%
1125 e Ft -5%
1325 e Ft 11%
Ennek az ára
Óhegy átlagár
X. kerület átlagár
Budapest átlagár
62.5 M Ft m Ft
36.9 m Ft -70%
73.3 m Ft 15%
64.6 m Ft 3%

Az ingatlan elhelyezkedése

Cím: Budapest, X. kerület, Óhegy, 2. emelet

Eladó ingatlanok a környékről

Eladó családi ház
Eladó családi ház

XIX. kerület

98.9 M Ft
3 szoba
68 m2
Eladó panellakás
Eladó panellakás

X. kerület

65.49 M Ft
3 szoba
68 m2
Eladó panellakás
Eladó panellakás

X. kerület

57.5 M Ft
2 szoba
44 m2
Eladó panellakás
Eladó panellakás

X. kerület, Újhegy

69.5 M Ft
3 szoba
66 m2
Eladó panellakás
Eladó panellakás

X. kerület, Óhegy

62.9 M Ft
2 + 1 szoba
60 m2
Eladó panellakás
Eladó panellakás

XVII. kerület, Rákoskeresztúr

79.9 M Ft
3 szoba
74 m2
Eladó panellakás
Eladó panellakás

X. kerület

65.49 M Ft
3 szoba
68 m2
Eladó téglalakás
Eladó téglalakás

VIII. kerület, Józsefváros, Koszorú utca

105 M Ft
3 szoba
67 m2
Eladó panellakás
Eladó panellakás

X. kerület

65.49 M Ft
3 szoba
68 m2
Eladó panellakás
Eladó panellakás

X. kerület

84.9 M Ft
2 + 2 szoba
74 m2
Eladó panellakás
Eladó panellakás

XXII. kerület, Nagytétény

60 M Ft
2 szoba
49 m2
Eladó családi ház
Eladó családi ház

XVI. kerület, Rákosszentmihály

272.9 M Ft
4 szoba
276 m2
Eladó panellakás
Eladó panellakás

X. kerület

65.49 M Ft
3 szoba
68 m2
Eladó panellakás
Eladó panellakás

X. kerület, Óhegy

62.9 M Ft
2 + 1 szoba
60 m2
Eladó panellakás
Eladó panellakás

X. kerület

65.49 M Ft
3 szoba
68 m2
Eladó téglalakás
Eladó téglalakás

XIII. kerület, Újlipótváros

159.9 M Ft
4 szoba
114 m2
Eladó téglalakás
Eladó téglalakás

XX. kerület, Erzsébetfalva

61 M Ft
3 szoba
54 m2
Eladó panellakás
Eladó panellakás

X. kerület, Ligettelek

65.49 M Ft
3 szoba
68 m2
Eladó családi ház
Eladó családi ház

XIV. kerület, Alsórákos

140 M Ft
4 szoba
84 m2
Eladó téglalakás
Eladó téglalakás

XX. kerület

62.5 M Ft
3 szoba
51 m2
Eladó téglalakás
Eladó téglalakás

XXII. kerület

159.9 M Ft
5 szoba
100 m2
Eladó panellakás
Eladó panellakás

X. kerület

46.5 M Ft
1 szoba
36 m2
Eladó téglalakás
Eladó téglalakás

VIII. kerület

59.9 M Ft
2 szoba
64 m2
Eladó téglalakás
Eladó téglalakás

VII. kerület

110 M Ft
2 szoba
68 m2

Falusi CSOK ingatlanok

Eladó családi ház
Eladó családi ház

Eszteregnye

62.9 M Ft
5 + 1 szoba
240 m2
Eladó családi ház
Eladó családi ház

Szentmártonkáta

43.9 M Ft
6 szoba
137 m2
Eladó családi ház
Eladó családi ház

Balatonvilágos

78 M Ft
3 szoba
43 m2
Eladó családi ház
Eladó családi ház

Szabadi

14.9 M Ft
3 szoba
78 m2
Eladó családi ház
Eladó családi ház

Kunadacs

34 M Ft
240 m2
Eladó családi ház
Eladó családi ház

Kemence, Fő utca

25 M Ft
3 szoba
91 m2
Eladó családi ház
Eladó családi ház

Tiszaalpár

24.6 M Ft
5 szoba
140 m2
Eladó családi ház
Eladó családi ház

Gyékényes

43 M Ft
4 szoba
120 m2