Eladó családi ház
Tiszaalpár

Figyelem!

Ez az ingatlan a 2019.07.01-től induló falusi CSOK által támogatott településen található

+ 7 kép 1/10
24 600 000 Ft24.6 M Ft 175 714 Ft/m2
5 szoba
140 m2
építés éve:1966

Részletes adatok

Telekméret: 720 m2
Fűtés: Gázkazán
Parkolás: Kocsibeálló
Energetikai besorolás: Nem adta meg a hirdető
Zenga Premier

Friss hirdetések, amiket nem találsz meg más ingatlankereső portálon.

Fedezd fel elsőként a Zenga Premier címkés eladó ingatlanokat!

További részletek a zenga.hu-n

Az OTP Bank lakáshitel ajánlataFizetett hirdetés

+36 30 667
Kocsis Zoltán
STOP Ingatlan

Érdekel az OTP Bank kedvezményes lakáshitel ajánlata? *

* A kérdésre „Igen” válasz bejelölése esetén, az „Üzenet küldése” gombra kattintva kijelentem, hogy az OTP Bank Nyrt. Adatkezelési tájékoztatójának tartalmát megismertem és tudomásul vettem.

Eladó családi ház leírása

Otthonok és megoldások!

Tiszaalpár központjában két utcára nyíló, osztható családi ház eladó.

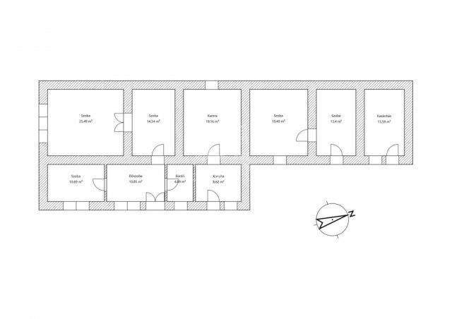
Két helyrajzi számon fekvő, két utcáról is megközelíthető, összesen 720m²-es telken eladó egy 141 m²-es vegyes falazatú családi ház.
Az ingatlan kiváló lehetőséget rejt magában: két külön bejáratú lakóegységgé alakítható, így akár két generáció együttélésére vagy befektetésre is alkalmas.
A fűtés gáz és vegyestüzelésű kazánnal, radiátoros rendszeren keresztül történik.
Az épület részben szigetelt, teljesen közművesített, és rövid időn belül birtokba vehető.

Főbb jellemzők:

- 141 m² lakótér, 5 szoba
- két helyrajzi szám, két utcafront
- leválasztható, két önálló ház is kialakítható
- gáz és vegyestüzelésű kazán, radiátoros központi fűtés
- teljesen közművesített
- részben szigetelt épület
- gyorsan birtokba vehető

Kiváló elhelyezkedése miatt minden fontos szolgáltatás néhány perces sétával elérhető.
Akár összeköltöző családtagoknak, akár befektetőknek remek választás! ...TOVÁBBI, TÖBBEZRES INGATLAN KÍNÁLAT: www.gdn-ingatlan.hu - GDN azonosító: 388667

Hirdetés feltöltve: 2025. 10. 19. Utoljára módosítva: 2025. 10. 20.

5 szobás családi házak ára Tiszaalpáron

Ebből az összehasonlításból megtudhatod, hogyan viszonyul a lakás ára a környékbeli családi házak átlagos árához. Ez nem azt jelenti, hogy ennyivel olcsóbb vagy drágább, mint amennyit a lakás ér, hanem hogy ennyivel tér el a környékbeli átlagtól.

Ennek a m² ára
Tiszaalpár m² ár
176 e Ft
278 e Ft 37%
Ennek az ára
Tiszaalpár átlagár
24.6 M Ft m Ft
30.6 m Ft 20%

Az ingatlan elhelyezkedése

Cím: Tiszaalpár

Eladó családi házak a környékről

Eladó családi ház
Eladó családi ház

Kecskemét

93 M Ft
3 szoba
140 m2
Eladó családi ház
Eladó családi ház

Tiszaalpár

6.99 M Ft
2 szoba
48 m2
Eladó családi ház
Eladó családi ház

Tiszaalpár

16.5 M Ft
3 szoba
86 m2
Eladó családi ház
Eladó családi ház

Ballószög

75 M Ft
5 szoba
180 m2
Eladó családi ház
Eladó családi ház

Bugac

9.8 M Ft
4 szoba
67 m2
Eladó családi ház
Eladó családi ház

Bácsalmás

46.5 M Ft
5 szoba
232 m2
Eladó családi ház
Eladó családi ház

Tiszaalpár

29 M Ft
4 szoba
132 m2
Eladó családi ház
Eladó családi ház

Kecskemét, Alsószéktó, Alsószéktó 138

65 M Ft
5 szoba
98 m2
Eladó családi ház
Eladó családi ház

Tiszaalpár, Móricz Zsigmond utca

27.9 M Ft
3 + 1 szoba
108 m2
Eladó családi ház
Eladó családi ház

Fajsz

12 M Ft
4 szoba
129 m2
Eladó családi ház
Eladó családi ház

Tiszaalpár

23.5 M Ft
2 szoba
49 m2
Eladó családi ház
Eladó családi ház

Kecskemét, Alsószéktó, Alsószéktó 138

58 M Ft
5 szoba
92 m2
Eladó családi ház
Eladó családi ház

Tiszaalpár

25.9 M Ft
3 szoba
100 m2
Eladó családi ház
Eladó családi ház

Tiszaalpár, Vásárhelyi Pál utca 4

5.42 M Ft
1 + 1 szoba
80 m2
Eladó családi ház
Eladó családi ház

Tiszaalpár

29.9 M Ft
3 szoba
120 m2
Eladó családi ház
Eladó családi ház

Kecskemét, Alsószéktó, Alsószéktó 138

63 M Ft
5 szoba
91 m2
Eladó családi ház
Eladó családi ház

Tiszakécske, Kolozsvári utca

17.9 M Ft
3 szoba
95 m2
Eladó családi ház
Eladó családi ház

Tiszaalpár

23.9 M Ft
3 szoba
84 m2
Eladó családi ház
Eladó családi ház

Kiskunmajsa, Kiskunmajsa - Birtok

91.8 M Ft
5 szoba
170 m2
Eladó családi ház
Eladó családi ház

Dunavecse

88.49 M Ft
8 szoba
378 m2
Eladó családi ház
Eladó családi ház

Tiszaalpár, Bajcsy u 1

7.01 M Ft
1 + 1 szoba
79 m2
Eladó családi ház
Eladó családi ház

Kelebia, Kossuth

29.5 M Ft
5 szoba
160 m2
Eladó családi ház
Eladó családi ház

Tiszaalpár

19.9 M Ft
3 szoba
63 m2
Eladó családi ház
Eladó családi ház

Kecskemét, Alsószéktó, Alsószéktó 138

55 M Ft
5 szoba
91 m2

Falusi CSOK ingatlanok

Eladó családi ház
Eladó családi ház

Balatonkeresztúr, Dózsa György u. 29

145 M Ft
5 szoba
150 m2
Eladó családi ház
Eladó családi ház

Bakonybánk, Kossuth Lajos utca 26

13.36 M Ft
1 + 1 szoba
105 m2
Eladó családi ház
Eladó családi ház

Böhönye, Dózsa körút

20.9 M Ft
5 + 1 szoba
127 m2
Eladó családi ház
Eladó családi ház

Bácsbokod

12.9 M Ft
3 szoba
90 m2
Eladó családi ház
Eladó családi ház

Tápiógyörgye

6.5 M Ft
2 szoba
62 m2
Eladó családi ház
Eladó családi ház

Tömörkény, József Attila utca 5

9.2 M Ft
1 + 1 szoba
93 m2
Eladó családi ház
Eladó családi ház

Pilisszentkereszt

139 M Ft
5 szoba
220 m2
Eladó családi ház
Eladó családi ház

Szőke

67.99 M Ft
3 szoba
160 m2

Falusi CSOK ingatlanok

Eladó családi ház
Eladó családi ház

Gáborján

5.5 M Ft
2 szoba
68 m2
Eladó családi ház
Eladó családi ház

Babócsa, Béke utca 9

5.08 M Ft
1 + 1 szoba
83 m2
Eladó családi ház
Eladó családi ház

Zsámbok

45 M Ft
2 szoba
60 m2
Eladó családi ház
Eladó családi ház

Rédics

49.9 M Ft
3 szoba
107 m2
Eladó családi ház
Eladó családi ház

Gáborjánháza

23 M Ft
2 szoba
117 m2
Eladó családi ház
Eladó családi ház

Elek

35.49 M Ft
2 szoba
75 m2
Eladó családi ház
Eladó családi ház

Buj, Arany János utca 17

5.19 M Ft
1 + 1 szoba
98 m2
Eladó családi ház
Eladó családi ház

Tök

96.2 M Ft
4 szoba
104 m2