Eladó panellakás
Budapest, IV. kerület, 4. emelet

+ 7 kép 1/10
73 500 000 Ft73.5 M Ft 1 035 211 Ft/m2
3 szoba
71 m2
4. emelet
építés éve:1985

Részletes adatok

Fűtés: Távfűtés
Extrák: Lift
Energetikai besorolás: Nem adta meg a hirdető

Az OTP Bank lakáshitel ajánlataFizetett hirdetés

+36 70 605
Somogyi Nikoletta
referens

Érdekel az OTP Bank kedvezményes lakáshitel ajánlata? *

* A kérdésre „Igen” válasz bejelölése esetén, az „Üzenet küldése” gombra kattintva kijelentem, hogy az OTP Bank Nyrt. Adatkezelési tájékoztatójának tartalmát megismertem és tudomásul vettem.

Eladó panellakás leírása

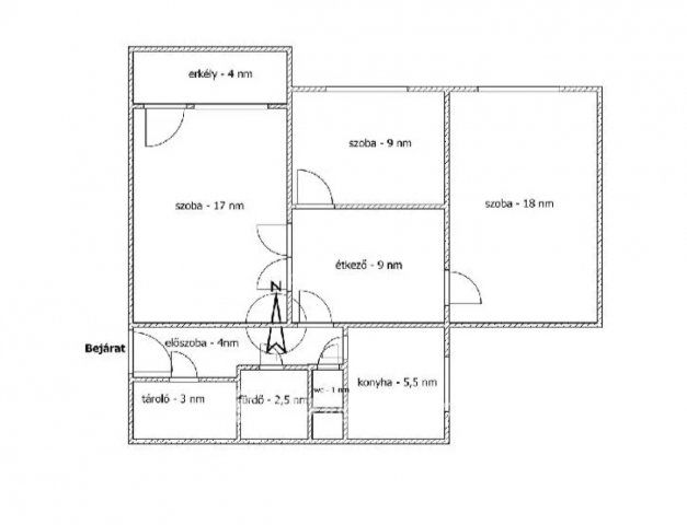
Újpesten az Árpád üzletház közelében , Horváth cukrászda, M3 metró stb...eladó egy tágas világos 71nm-es,3 szoba hallos, ERKÉLYES, PANORÁMÁS távfűtéses, 4.emeleti panellakás.
Közös költség 24eft a felújítási alappal együtt.
Távfűtés 15eft.
A társasház 1985-ben épült, karbantartott.
Az utcán ingyenes a parkolás.
20E busz, Spar, bankok parkok a közelben.
Irányár 73.5mft
70//605 //0504 ...TOVÁBBI, TÖBBEZRES INGATLAN KÍNÁLAT: www.gdn-ingatlan.hu - GDN azonosító: 388020

Hirdetés feltöltve: 2025. 10. 02. Utoljára módosítva: 2025. 10. 02.

3 szobás panellakások ára Budapesten

Ebből az összehasonlításból megtudhatod, hogyan viszonyul a lakás ára a környékbeli panellakások átlagos árához. Ez nem azt jelenti, hogy ennyivel olcsóbb vagy drágább, mint amennyit a lakás ér, hanem hogy ennyivel tér el a környékbeli átlagtól.

Ennek a m² ára
IV. kerület m² ár
Budapest m² ár
1035 e Ft
1165 e Ft 11%
1160 e Ft 11%
Ennek az ára
IV. kerület átlagár
Budapest átlagár
73.5 M Ft m Ft
78.9 m Ft 7%
74.1 m Ft 1%

Az ingatlan elhelyezkedése

Cím: Budapest, IV. kerület, 4. emelet

Eladó ingatlanok a környékről

Eladó családi ház
Eladó családi ház

XVIII. kerület

319 M Ft
9 szoba
415 m2
Eladó családi ház
Eladó családi ház

XVIII. kerület

65.9 M Ft
3 szoba
69 m2
Eladó panellakás
Eladó panellakás

IV. kerület, Káposztásmegyer

119.9 M Ft
4 szoba
113 m2
Eladó téglalakás
Eladó téglalakás

V. kerület

159.9 M Ft
2 szoba
72 m2
Eladó panellakás
Eladó panellakás

IV. kerület

75 M Ft
3 szoba
71 m2
Eladó téglalakás
Eladó téglalakás

VII. kerület

57.5 M Ft
2 szoba
48 m2
Eladó téglalakás
Eladó téglalakás

IX. kerület, Ferencváros, Máriássy utca

79 M Ft
2 szoba
38 m2
Eladó panellakás
Eladó panellakás

IV. kerület

62.9 M Ft
1 + 1 szoba
48 m2
Eladó ikerház
Eladó ikerház

XVIII. kerület

120 M Ft
5 szoba
110 m2
Eladó téglalakás
Eladó téglalakás

X. kerület

41 M Ft
2 szoba
37 m2
Eladó családi ház
Eladó családi ház

XXIII. kerület

54.9 M Ft
2 szoba
80 m2
Eladó panellakás
Eladó panellakás

IV. kerület

81.5 M Ft
3 szoba
85 m2
Eladó családi ház
Eladó családi ház

II. kerület, Pesthidegkút-ófalu, Gazda utca

180 M Ft
5 szoba
132 m2
Eladó családi ház
Eladó családi ház

XXI. kerület

178 M Ft
4 + 1 szoba
260 m2
Eladó téglalakás
Eladó téglalakás

XIV. kerület

151.165 M Ft
3 szoba
142 m2
Eladó panellakás
Eladó panellakás

IV. kerület

76.9 M Ft
2 + 1 szoba
71 m2
Eladó panellakás
Eladó panellakás

IV. kerület

64.99 M Ft
1 + 2 szoba
52 m2
Eladó panellakás
Eladó panellakás

III. kerület

68 M Ft
2 szoba
50 m2
Eladó ikerház
Eladó ikerház

XVIII. kerület

11 M Ft
5 szoba
110 m2
Eladó panellakás
Eladó panellakás

IV. kerület

89.9 M Ft
3 szoba
80 m2
Eladó panellakás
Eladó panellakás

IV. kerület

75 M Ft
3 szoba
71 m2
Eladó téglalakás
Eladó téglalakás

XIII. kerület

43.5 M Ft
1 szoba
40 m2
Eladó téglalakás
Eladó téglalakás

I. kerület, Krisztinaváros, Attila út

74 M Ft
2 szoba
57 m2
Eladó panellakás
Eladó panellakás

IV. kerület, Újpest

62.9 M Ft
3 szoba
55 m2

Falusi CSOK ingatlanok

Eladó családi ház
Eladó családi ház

Tihany

119.9 M Ft
3 + 1 szoba
92 m2
Eladó családi ház
Eladó családi ház

Marcaltő

26 M Ft
3 szoba
103 m2
Eladó családi ház
Eladó családi ház

Mezőkeresztes

23.9 M Ft
2 + 1 szoba
82 m2
Eladó családi ház
Eladó családi ház

Kamut

29.9 M Ft
3 szoba
100 m2
Eladó családi ház
Eladó családi ház

Balatonőszöd

55 M Ft
5 szoba
148 m2
Eladó családi ház
Eladó családi ház

Bezenye

84.9 M Ft
4 + 1 szoba
145 m2
Eladó családi ház
Eladó családi ház

Szigetcsép

27.9 M Ft
3 szoba
81 m2
Eladó családi ház
Eladó családi ház

Tápiószőlős

69 M Ft
3 szoba
77 m2