NapForrás 20 - Buda

Eladó panellakás
Budapest, III. kerület, 9. emelet

+ 9 kép 1/12
77 500 000 Ft77.5 M Ft 1 139 706 Ft/m2
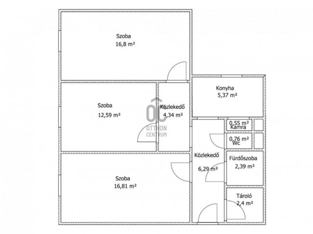
3 szoba
68 m²
9. emelet
építés éve:1978

Részletes adatok

Fűtés: Távfűtés
Emelet: 9. emelet
Extrák: Lift
Energetikai besorolás: Nem adta meg a hirdető

Az OTP Bank lakáshitel ajánlataFizetett hirdetés

+36 70 465
Nagy Veronika
referens

Érdekel az OTP Bank kedvezményes lakáshitel ajánlata? *

* A kérdésre „Igen” válasz bejelölése esetén, az „Üzenet küldése” gombra kattintva kijelentem, hogy az OTP Bank Nyrt. Adatkezelési tájékoztatójának tartalmát megismertem és tudomásul vettem.

Eladó panellakás leírása

Eladó egy jó állapotú, felújított, 3 szobás panel lakás, Óbuda központi részén.
A fürdőszobát és a wc-t tavaly 2025-ben újították fel.
Az ingatlan a 3%-os hitel feltételeinek megfelel!

A lakás főbb előnyei és tulajdonságai:
- 3 külön nyíló, egész szoba.
- Keleti fekvés.
- Klíma van (nappali).
- 9. emelet, liftes, nem zárószinti.
- Biztonsági bejárati ajtó.
- Gardrób / tároló, ahova a mosgép elhelyezhető.
- Kamra / spájz.
- Akár 30 napon belül költözhető (kifizetéstől függően).
- Közös költség17.000 Ft., a fűtés szintén 17.000 Ft.

Ha kérdeése van, vagy időpontot egyeztetne megtekintésre, hívjon bizalommal!

Hirdetés feltöltve: 2026. 04. 01. Utoljára módosítva: 2026. 04. 01.

3 szobás panellakások ára Budapesten

Ebből az összehasonlításból megtudhatod, hogyan viszonyul a lakás ára a környékbeli panellakások átlagos árához. Ez nem azt jelenti, hogy ennyivel olcsóbb vagy drágább, mint amennyit a lakás ér, hanem hogy ennyivel tér el a környékbeli átlagtól.

Ennek a m² ára
III. kerület m² ár
Budapest m² ár
1140 e Ft
1301 e Ft 12%
1221 e Ft 7%
Ennek az ára
III. kerület átlagár
Budapest átlagár
77.5 M Ft m Ft
82.1 m Ft 6%
76 m Ft -2%

Az ingatlan elhelyezkedése

Cím: Budapest, III. kerület, 9. emelet

Eladó ingatlanok a környékről

III. kerület, Békásmegyer, Pünkösdfürdő utca 5
Eladó téglalakás

Budapest, III. kerület

195.99 M Ft
4 szoba
93 m²
III. kerület, Békásmegyer, Pünkösdfürdő utca 5
Eladó téglalakás

Budapest, III. kerület

172.49 M Ft
4 szoba
90 m²
III. kerület
Eladó panellakás

Budapest, III. kerület

74 M Ft
3 szoba
66 m²
III. kerület, Békásmegyer, Pünkösdfürdő utca 5
Eladó téglalakás

Budapest, III. kerület

174.49 M Ft
4 szoba
91 m²
III. kerület, Békásmegyer, Pünkösdfürdő utca 5
Eladó téglalakás

Budapest, III. kerület

75.99 M Ft
1 szoba
36 m²
III. kerület
Eladó panellakás

Budapest, III. kerület

110 M Ft
3 szoba
73 m²
III. kerület
Eladó panellakás

Budapest, III. kerület

110 M Ft
3 szoba
73 m²
III. kerület, Békásmegyer, Pünkösdfürdő utca 5
Eladó téglalakás

Budapest, III. kerület

155.49 M Ft
4 szoba
93 m²
III. kerület, Békásmegyer, Pünkösdfürdő utca 5
Eladó téglalakás

Budapest, III. kerület

127.49 M Ft
3 szoba
70 m²
III. kerület, Óbuda
Eladó panellakás

Budapest, III. kerület

75.5 M Ft
2 szoba
48 m²
III. kerület, Békásmegyer
Eladó panellakás

Budapest, III. kerület

73.9 M Ft
1 + 2 szoba
57 m²
III. kerület
Eladó panellakás

Budapest, III. kerület

78.5 M Ft
3 szoba
66 m²
III. kerület
Eladó panellakás

Budapest, III. kerület

110 M Ft
3 szoba
73 m²
III. kerület
Eladó panellakás

Budapest, III. kerület

110 M Ft
3 szoba
73 m²
III. kerület, Békásmegyer, Pünkösdfürdő utca 5
Eladó téglalakás

Budapest, III. kerület

170.99 M Ft
4 szoba
93 m²
III. kerület
Eladó panellakás

Budapest, III. kerület

110 M Ft
3 szoba
73 m²
III. kerület
Eladó panellakás

Budapest, III. kerület

110 M Ft
3 szoba
73 m²
III. kerület, Békásmegyer
Eladó panellakás

Budapest, III. kerület

110 M Ft
3 szoba
73 m²
III. kerület, Békásmegyer, Pünkösdfürdő utca 5
Eladó téglalakás

Budapest, III. kerület

202.49 M Ft
5 szoba
104 m²
III. kerület, Békásmegyer, Pünkösdfürdő utca 5
Eladó téglalakás

Budapest, III. kerület

107.49 M Ft
3 szoba
59 m²
III. kerület
Eladó panellakás

Budapest, III. kerület

113 M Ft
2 + 1 szoba
62 m²
III. kerület
Eladó panellakás

Budapest, III. kerület

110 M Ft
3 szoba
73 m²
III. kerület
Eladó panellakás

Budapest, III. kerület

110 M Ft
3 szoba
73 m²
III. kerület, Békásmegyer, Pünkösdfürdő utca 5
Eladó téglalakás

Budapest, III. kerület

110.99 M Ft
3 szoba
57 m²

Falusi CSOK ingatlanok

Mád
Eladó családi ház

Mád

48 M Ft
3 szoba
181 m²
Onga
Eladó családi ház

Onga

81.9 M Ft
4 szoba
109 m²
Onga
Eladó családi ház

Onga

52.9 M Ft
5 szoba
110 m²
Újlengyel
Eladó ikerház

Újlengyel

78 M Ft
4 szoba
88 m²
Pécsvárad, Kossuth Lajos utca
Eladó téglalakás

Pécsvárad

64.99 M Ft
3 szoba
89 m²
Vid
Eladó családi ház

Vid

29 M Ft
4 szoba
100 m²
Kótaj
Eladó családi ház

Kótaj

32.7 M Ft
2 szoba
83 m²
Sály, Kossuth Lajos 128
Eladó családi ház

Sály

28.125 M Ft
6 szoba
160 m²