Astora Olive Club House

Eladó panellakás
Budapest, III. kerület, 4. emelet

66 800 000 Ft66.8 M Ft 1 171 930 Ft/m2
1 + 2 szoba
57 m²
4. emelet
építés éve:1978

Részletes adatok

Állapot: Átlagos
Fűtés: Távfűtés
Emelet: 4. emelet
Extrák: Lift
Energetikai besorolás: D

Az OTP Bank lakáshitel ajánlataFizetett hirdetés

+36 30 353
Sasaran-Kereki Katalin
referens

Érdekel az OTP Bank kedvezményes lakáshitel ajánlata? *

* A kérdésre „Igen” válasz bejelölése esetén, az „Üzenet küldése” gombra kattintva kijelentem, hogy az OTP Bank Nyrt. Adatkezelési tájékoztatójának tartalmát megismertem és tudomásul vettem.

Eladó panellakás leírása

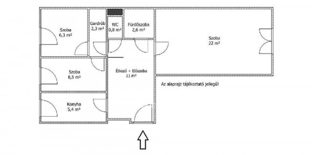
Eladó 57 négyzetméteres jó állapotú negyedik emeleti panellakás a Gyűrű utcában. Kiváló elosztású egy plusz két félszobás nagyon praktikus gardróbbal! Az épület panelprogramban részt vett, homlokzata rendezett. A műanyag ablakok redőnyösek és lakó szobánként egy nyitható ablak rovarhálós. A fűtést és a meleg vizet távhőn kapja a lakás, a radiátorok egyedi mérővel vannak ellátva. A háznak jelentős megtakarítása van így a fejlesztéseket folyamatosan tervezik, a közös költség emelkedése a közeljövőben nem várható. A közelben oktatási intézmények, üzletek és bevásárlóközpont is van, a tömegközlekedés kiváló a környéken. Parkolni a ház előtt kialakított parkolóban lehet közterületen ingyenesen. Ezt a remek elosztású lakást pároknak vagy családosoknak ajánlom elsősorban. Az ingatlan tehermentes, szinte azonnal költözhető! Ha érdekesnek találta jöjjön el és tekintse meg élőben is! Időpont egyeztetéshez hívjon bizalommal!

Teljes körű ügyintézéssel állunk az eladók és a vevők rendelkezésére! A kínálatunkból választott ingatlan finanszírozásához minősített fogyasztóbarát, piaci és kedvezményes hitel- és lízingkonstrukciókat kínálunk (lakásvásárlási hitel, szabad felhasználású hitel, babaváró hitel, CSOK Plusz intézés, Otthonfelújítási Támogatás, egyéb felújítási hitelek). Az adásvételi szerződés megkötéséhez igény szerint megbízható ügyvédi közreműködést biztosítunk, és segítséget nyújtunk az adásvételhez kapcsolódó egyéb ügyek intézéséhez.

Kérdéseire az esti órákban és hétvégén is szívesen válaszolok! Ha az új ingatlana megvásárlásához a jelenlegi ingatlanát el kell adnia, abban is szívesen segítünk.

66800000 Ft

Referencia szám: M324472

Hirdetés feltöltve: 2026. 03. 18.

3 szobás panellakások ára Budapesten

Ebből az összehasonlításból megtudhatod, hogyan viszonyul a lakás ára a környékbeli panellakások átlagos árához. Ez nem azt jelenti, hogy ennyivel olcsóbb vagy drágább, mint amennyit a lakás ér, hanem hogy ennyivel tér el a környékbeli átlagtól.

Ennek a m² ára
III. kerület m² ár
Budapest m² ár
1172 e Ft
1300 e Ft 10%
1219 e Ft 4%
Ennek az ára
III. kerület átlagár
Budapest átlagár
66.8 M Ft m Ft
81.1 m Ft 18%
76.1 m Ft 12%

Az ingatlan elhelyezkedése

Cím: Budapest, III. kerület, 4. emelet

Eladó ingatlanok a környékről

III. kerület
Eladó panellakás

Budapest, III. kerület

110 M Ft
3 szoba
73 m²
XVI. kerület, Rákosszentmihály
Eladó ikerház

Budapest, XVI. kerület

150 M Ft
7 szoba
150 m²
IV. kerület
Eladó téglalakás

Budapest, IV. kerület

75.9 M Ft
2 szoba
51 m²
V. kerület, Lipótváros, Nyári Pál
Eladó téglalakás

Budapest, V. kerület

249.9 M Ft
3 szoba
89 m²
III. kerület, Csillaghegy
Eladó panellakás

Budapest, III. kerület

94.5 M Ft
3 szoba
73 m²
XIV. kerület
Eladó téglalakás

Budapest, XIV. kerület

124.9 M Ft
3 + 1 szoba
103 m²
III. kerület, Óbuda
Eladó panellakás

Budapest, III. kerület

75.5 M Ft
2 szoba
48 m²
III. kerület
Eladó panellakás

Budapest, III. kerület

110 M Ft
3 szoba
73 m²
III. kerület
Eladó panellakás

Budapest, III. kerület

110 M Ft
3 szoba
73 m²
XIV. kerület
Eladó panellakás

Budapest, XIV. kerület

64.9 M Ft
1 + 2 szoba
46 m²
III. kerület, Békásmegyer
Eladó panellakás

Budapest, III. kerület

73.9 M Ft
1 + 2 szoba
57 m²
XX. kerület
Eladó téglalakás

Budapest, XX. kerület

69.9 M Ft
4 szoba
64 m²
XXII. kerület
Eladó ikerház

Budapest, XXII. kerület

103 M Ft
3 szoba
84 m²
XVIII. kerület, Újpéteritelep
Eladó ikerház

Budapest, XVIII. kerület

147 M Ft
4 szoba
158 m²
XVI. kerület, Mátyásföld
Eladó panellakás

Budapest, XVI. kerület

71 M Ft
2 szoba
55 m²
I. kerület
Eladó téglalakás

Budapest, I. kerület

84.5 M Ft
2 szoba
38 m²
VII. kerület
Eladó téglalakás

Budapest, VII. kerület

78.5 M Ft
2 szoba
65 m²
III. kerület
Eladó panellakás

Budapest, III. kerület

66.9 M Ft
2 szoba
51 m²
III. kerület
Eladó panellakás

Budapest, III. kerület

110 M Ft
3 szoba
73 m²
III. kerület
Eladó panellakás

Budapest, III. kerület

110 M Ft
3 szoba
73 m²
III. kerület
Eladó panellakás

Budapest, III. kerület

110 M Ft
3 szoba
73 m²
XIII. kerület
Eladó téglalakás

Budapest, XIII. kerület

59.9 M Ft
1 + 1 szoba
35 m²
III. kerület, Békásmegyer
Eladó panellakás

Budapest, III. kerület

110 M Ft
3 szoba
73 m²
III. kerület
Eladó téglalakás

Budapest, III. kerület

77.9 M Ft
2 szoba
58 m²

Falusi CSOK ingatlanok

Villány
Eladó családi ház

Villány

31 M Ft
1 szoba
35 m²
Bükkábrány
Eladó családi ház

Bükkábrány

37.5 M Ft
5 + 1 szoba
180 m²
Bugac
Eladó családi ház

Bugac

90 M Ft
5 szoba
230 m²
Balatonszemes
Eladó téglalakás

Balatonszemes

91.5 M Ft
2 szoba
60 m²
Magyarszék
Eladó családi ház

Magyarszék

48.5 M Ft
3 + 1 szoba
86 m²
Bugac
Eladó családi ház

Bugac

155 M Ft
2.15 ha
187 m²
Ságvár
Eladó családi ház

Ságvár

53.9 M Ft
3 szoba
75 m²
Tápiógyörgye
Eladó családi ház

Tápiógyörgye

24.9 M Ft
2 szoba
71 m²