Avico Greentop

Eladó panellakás
Budapest, III. kerület, Békásmegyer, 10. emelet

+ 17 kép 1/20
64 900 000 Ft64.9 M Ft 1 138 596 Ft/m2
1 + 2 szoba
57 m²
10. emelet
építés éve:1980

Részletes adatok

Állapot: Átlagos
Fűtés: Távfűtés
Emelet: 10. emelet
Extrák: Lift
Energetikai besorolás: Nem adta meg a hirdető

Az OTP Bank lakáshitel ajánlataFizetett hirdetés

+36 70 458
Potoczki László
referens

Érdekel az OTP Bank kedvezményes lakáshitel ajánlata? *

* A kérdésre „Igen” válasz bejelölése esetén, az „Üzenet küldése” gombra kattintva kijelentem, hogy az OTP Bank Nyrt. Adatkezelési tájékoztatójának tartalmát megismertem és tudomásul vettem.

Eladó panellakás leírása

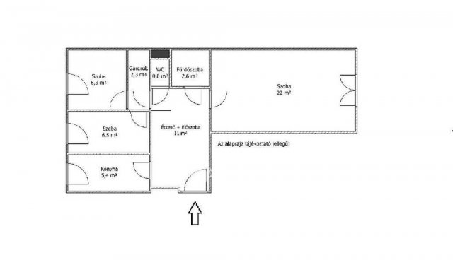
Eladó 57 négyzetméteres jó állapotú X. emeleti, kis erkélyes panellakás Békásmegyeren.
Kiváló elosztású egy plusz két félszobás nagyon praktikus gardróbbal!
Az épület panelprogramban részt vett, homlokzata rendezett. A műanyag ablakok redőnyösek és rovarhálósok. A fűtést és a meleg vizet távhőn kapja a lakás, a radiátorok egyedi mérővel vannak ellátva.
A háznak jelentős megtakarítása van így a fejlesztéseket folyamatosan tervezik, a közös költség emelkedése a közeljövőben nem várható.
A közelben oktatási intézmények, üzletek és bevásárlóközpont is van, a tömegközlekedés kiváló a környéken. Parkolni a ház előtt kialakított parkolóban lehet közterületen ingyenesen. Ezt a remek elosztású lakást pároknak vagy családosoknak ajánlom elsősorban. Az ingatlan tehermentes, szinte azonnal költözhető! Ha érdekesnek találta jöjjön el és tekintse meg élőben is!
Időpont egyeztetéshez hívjon bizalommal!
Teljes körű ügyintézéssel állunk az eladók és a vevők rendelkezésére! A kínálatunkból választott ingatlan finanszírozásához minősített fogyasztóbarát, piaci és kedvezményes hitel- és lízingkonstrukciókat kínálunk (lakásvásárlási hitel, szabad felhasználású hitel, babaváró hitel, CSOK Plusz intézés, Otthonfelújítási Támogatás, egyéb felújítási hitelek). Az adásvételi szerződés megkötéséhez igény szerint megbízható ügyvédi közreműködést biztosítunk, és segítséget nyújtunk az adásvételhez kapcsolódó egyéb ügyek intézéséhez. Kérdéseire az esti órákban és hétvégén is szívesen válaszolok! Ha az új ingatlana megvásárlásához a jelenlegi ingatlanát el kell adnia, abban is szívesen segítünk.
M324741

Referencia szám: M324741

Hirdetés feltöltve: 2026. 03. 13. Utoljára módosítva: 2026. 03. 13.

3 szobás panellakások ára Budapesten

Ebből az összehasonlításból megtudhatod, hogyan viszonyul a lakás ára a környékbeli panellakások átlagos árához. Ez nem azt jelenti, hogy ennyivel olcsóbb vagy drágább, mint amennyit a lakás ér, hanem hogy ennyivel tér el a környékbeli átlagtól.

Ennek a m² ára
Békásmegyer m² ár
III. kerület m² ár
Budapest m² ár
1139 e Ft
1226 e Ft 7%
1300 e Ft 12%
1220 e Ft 7%
Ennek az ára
Békásmegyer átlagár
III. kerület átlagár
Budapest átlagár
64.9 M Ft m Ft
76 m Ft 15%
81.8 m Ft 21%
76.9 m Ft 16%

Az ingatlan elhelyezkedése

Cím: Budapest, III. kerület, Békásmegyer, 10. emelet

Eladó ingatlanok a környékről

V. kerület
Eladó téglalakás

Budapest, V. kerület

295 M Ft
4 + 1 szoba
92 m²
IV. kerület, Újpest
Eladó téglalakás

Budapest, IV. kerület

59.9 M Ft
2 szoba
51 m²
IX. kerület
Eladó téglalakás

Budapest, IX. kerület

71.9 M Ft
1 + 1 szoba
46 m²
V. kerület, Belváros
Eladó téglalakás

Budapest, V. kerület

249.9 M Ft
3 szoba
85 m²
III. kerület, Békásmegyer
Eladó panellakás

Budapest, III. kerület

110 M Ft
3 szoba
73 m²
XIX. kerület, Kispest
Eladó panellakás

Budapest, XIX. kerület

62.5 M Ft
2 szoba
53 m²
I. kerület
Eladó téglalakás

Budapest, I. kerület

87 M Ft
2 szoba
65 m²
VIII. kerület, Tisztviselőtelep
Eladó téglalakás

Budapest, VIII. kerület

152.9 M Ft
4 szoba
85 m²
III. kerület
Eladó panellakás

Budapest, III. kerület

110 M Ft
3 szoba
73 m²
III. kerület
Eladó panellakás

Budapest, III. kerület

110 M Ft
3 szoba
73 m²
VII. kerület
Eladó téglalakás

Budapest, VII. kerület

62.5 M Ft
2 szoba
42 m²
III. kerület, Békásmegyer
Eladó panellakás

Budapest, III. kerület

73.9 M Ft
1 + 2 szoba
57 m²
XIII. kerület, Újlipótváros
Eladó téglalakás

Budapest, XIII. kerület

94.99 M Ft
2 + 1 szoba
55 m²
III. kerület, Óbuda, Miklós utca
Eladó panellakás

Budapest, III. kerület

84.9 M Ft
3 szoba
66 m²
XIII. kerület, Angyalföld
Eladó panellakás

Budapest, XIII. kerület

68.5 M Ft
2 szoba
49 m²
III. kerület, Óbuda
Eladó panellakás

Budapest, III. kerület

75.5 M Ft
2 szoba
48 m²
III. kerület
Eladó panellakás

Budapest, III. kerület

108 M Ft
2 + 2 szoba
67 m²
III. kerület
Eladó panellakás

Budapest, III. kerület

110 M Ft
3 szoba
73 m²
III. kerület
Eladó panellakás

Budapest, III. kerület

74 M Ft
3 szoba
66 m²
III. kerület
Eladó panellakás

Budapest, III. kerület

110 M Ft
3 szoba
73 m²
III. kerület, Csillaghegy
Eladó panellakás

Budapest, III. kerület

94.5 M Ft
3 szoba
73 m²
III. kerület, Békásmegyer
Eladó panellakás

Budapest, III. kerület

66.9 M Ft
2 szoba
51 m²
III. kerület
Eladó panellakás

Budapest, III. kerület

73.9 M Ft
1 + 2 szoba
57 m²
III. kerület
Eladó panellakás

Budapest, III. kerület

78.5 M Ft
3 szoba
66 m²

Falusi CSOK ingatlanok

Tatárszentgyörgy
Eladó családi ház

Tatárszentgyörgy

67 M Ft
4 szoba
92 m²
Pannonhalma
Eladó családi ház

Pannonhalma

129.7 M Ft
5 szoba
142 m²
Herend
Eladó téglalakás

Herend

59.99 M Ft
3 szoba
69 m²
Kocsér
Eladó családi ház

Kocsér

17.9 M Ft
1 + 2 szoba
73 m²
Csatár
Eladó családi ház

Csatár

98.5 M Ft
2 + 2 szoba
150 m²
Újszilvás
Eladó családi ház

Újszilvás

49.9 M Ft
8 szoba
310 m²
Nagykörű, Jókai Mór utca 20
Eladó családi ház

Nagykörű

8.97 M Ft
1 + 1 szoba
101 m²
Perbál
Eladó családi ház

Perbál

199 M Ft
4 szoba
150 m²