Metrodom

Eladó panellakás
Budapest, III. kerület, 4. emelet

+ 3 kép 1/6
66 800 000 Ft66.8 M Ft 1 171 930 Ft/m2
1 + 2 szoba
57 m²
4. emelet
építés éve:1978

Részletes adatok

Állapot: Átlagos
Fűtés: Távfűtés
Emelet: 4. emelet
Extrák: Lift
Energetikai besorolás: Nem adta meg a hirdető

Az OTP Bank lakáshitel ajánlataFizetett hirdetés

+36 70 786
Pröbsztl Gábor Zoltán
referens

Érdekel az OTP Bank kedvezményes lakáshitel ajánlata? *

* A kérdésre „Igen” válasz bejelölése esetén, az „Üzenet küldése” gombra kattintva kijelentem, hogy az OTP Bank Nyrt. Adatkezelési tájékoztatójának tartalmát megismertem és tudomásul vettem.

Eladó panellakás leírása

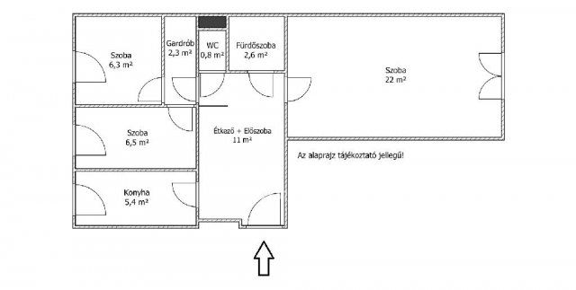
Eladó 57 négyzetméteres jó állapotú negyedik emeleti panellakás a Gyűrű utcában. Kiváló elosztású egy plusz két félszobás nagyon praktikus gardróbbal! Az épület panelprogramban részt vett, homlokzata rendezett. A műanyag ablakok redőnyösek és lakó szobánként egy nyitható ablak rovarhálós. A fűtést és a meleg vizet távhőn kapja a lakás, a radiátorok egyedi mérővel vannak ellátva. A háznak jelentős megtakarítása van így a fejlesztéseket folyamatosan tervezik, a közös költség emelkedése a közeljövőben nem várható. A közelben oktatási intézmények, üzletek és bevásárlóközpont is van, a tömegközlekedés kiváló a környéken. Parkolni a ház előtt kialakított parkolóban lehet közterületen ingyenesen. Ezt a remek elosztású lakást pároknak vagy családosoknak ajánlom elsősorban. Az ingatlan tehermentes, szinte azonnal költözhető! Ha érdekesnek találta jöjjön el és tekintse meg élőben is! Időpont egyeztetéshez hívjon bizalommal!

Teljes körű ügyintézéssel állunk az eladók és a vevők rendelkezésére! A kínálatunkból választott ingatlan finanszírozásához minősített fogyasztóbarát, piaci és kedvezményes hitel- és lízingkonstrukciókat kínálunk (lakásvásárlási hitel, szabad felhasználású hitel, babaváró hitel, CSOK Plusz intézés, Otthonfelújítási Támogatás, egyéb felújítási hitelek). Az adásvételi szerződés megkötéséhez igény szerint megbízható ügyvédi közreműködést biztosítunk, és segítséget nyújtunk az adásvételhez kapcsolódó egyéb ügyek intézéséhez.

Kérdéseire az esti órákban és hétvégén is szívesen válaszolok! Ha az új ingatlana megvásárlásához a jelenlegi ingatlanát el kell adnia, abban is szívesen segítünk.

Hirdetés feltöltve: 2026. 03. 11. Utoljára módosítva: 2026. 03. 11.

3 szobás panellakások ára Budapesten

Ebből az összehasonlításból megtudhatod, hogyan viszonyul a lakás ára a környékbeli panellakások átlagos árához. Ez nem azt jelenti, hogy ennyivel olcsóbb vagy drágább, mint amennyit a lakás ér, hanem hogy ennyivel tér el a környékbeli átlagtól.

Ennek a m² ára
III. kerület m² ár
Budapest m² ár
1172 e Ft
1300 e Ft 10%
1220 e Ft 4%
Ennek az ára
III. kerület átlagár
Budapest átlagár
66.8 M Ft m Ft
81.8 m Ft 18%
76.9 m Ft 13%

Az ingatlan elhelyezkedése

Cím: Budapest, III. kerület, 4. emelet

Eladó ingatlanok a környékről

VIII. kerület, Józsefváros, Szerdahelyi
Eladó téglalakás

Budapest, VIII. kerület

44.2 M Ft
1 szoba
34 m²
XXI. kerület
Eladó ipari ingatlan

Budapest, XXI. kerület

1288 M Ft
5977 m²
XIV. kerület, Alsórákos, Bartl János utca 5-7
Eladó téglalakás

Budapest, XIV. kerület

129 M Ft
3 szoba
67 m²
XXI. kerület
Eladó ipari ingatlan

Budapest, XXI. kerület

430 M Ft
2612 m²
1710 m²
III. kerület
Eladó panellakás

Budapest, III. kerület

110 M Ft
3 szoba
73 m²
XXI. kerület
Eladó családi ház

Budapest, XXI. kerület

70 M Ft
3 szoba
90 m²
IX. kerület, Ferencváros, Mester utca
Eladó téglalakás

Budapest, IX. kerület

49.9 M Ft
2 szoba
55 m²
III. kerület
Eladó panellakás

Budapest, III. kerület

110 M Ft
3 szoba
73 m²
XVIII. kerület
Eladó panellakás

Budapest, XVIII. kerület

40 M Ft
1 + 2 szoba
53 m²
XII. kerület
Eladó téglalakás

Budapest, XII. kerület

464.12 M Ft
3 szoba
93 m²
III. kerület
Eladó panellakás

Budapest, III. kerület

113 M Ft
2 + 1 szoba
62 m²
III. kerület
Eladó panellakás

Budapest, III. kerület

110 M Ft
3 szoba
73 m²
III. kerület
Eladó panellakás

Budapest, III. kerület

66.9 M Ft
2 szoba
51 m²
VI. kerület, Belső Terézváros, Dessewffy
Eladó téglalakás

Budapest, VI. kerület

55 M Ft
1 szoba
30 m²
III. kerület, Békásmegyer
Eladó panellakás

Budapest, III. kerület

73.9 M Ft
1 + 2 szoba
57 m²
III. kerület
Eladó panellakás

Budapest, III. kerület

110 M Ft
3 szoba
73 m²
VIII. kerület, Józsefváros, Nagy Fuvaros
Eladó téglalakás

Budapest, VIII. kerület

43.2 M Ft
1 szoba
32 m²
VIII. kerület, Józsefváros, Baross utca
Eladó téglalakás

Budapest, VIII. kerület

46.9 M Ft
1 + 2 szoba
48 m²
VI. kerület, Belső Terézváros, Dessewffy
Eladó téglalakás

Budapest, VI. kerület

91 M Ft
3 szoba
56 m²
III. kerület
Eladó panellakás

Budapest, III. kerület

110 M Ft
3 szoba
73 m²
III. kerület
Eladó panellakás

Budapest, III. kerület

110 M Ft
3 szoba
73 m²
III. kerület
Eladó panellakás

Budapest, III. kerület

74 M Ft
3 szoba
66 m²
III. kerület
Eladó téglalakás

Budapest, III. kerület

116 M Ft
2 szoba
55 m²
III. kerület
Eladó panellakás

Budapest, III. kerület

110 M Ft
3 szoba
73 m²

Falusi CSOK ingatlanok

Herend
Eladó családi ház

Herend

114.3 M Ft
5 szoba
108 m²
Bükkösd
Eladó családi ház

Bükkösd

45 M Ft
4 szoba
120 m²
Nyírmada
Eladó családi ház

Nyírmada

32 M Ft
3 szoba
120 m²
Mezőkeresztes
Eladó ikerház

Mezőkeresztes

14.9 M Ft
2 + 1 szoba
70 m²
Darnózseli
Eladó családi ház

Darnózseli

69.9 M Ft
4 szoba
104 m²
Maráza
Eladó családi ház

Maráza

29.9 M Ft
3 szoba
96 m²
Törtel
Eladó családi ház

Törtel

36.4 M Ft
3 szoba
114 m²
Pannonhalma, Szent Márton utca 9
Eladó családi ház

Pannonhalma

97.9 M Ft
3 szoba
100 m²