NapForrás 20 - Buda

Eladó panellakás
Budapest, III. kerület, 3. emelet

+ 10 kép 1/13
93 000 000 Ft93 M Ft 1 430 769 Ft/m2
3 szoba
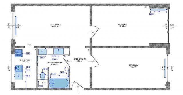
65 m²
3. emelet
építés éve:1980

Részletes adatok

Állapot: Felújított
Fűtés: Távfűtés
Emelet: 3. emelet
Extrák: Lift
Energetikai besorolás: D

Az OTP Bank lakáshitel ajánlataFizetett hirdetés

+36 70 369
Juhász Emese
referens

Érdekel az OTP Bank kedvezményes lakáshitel ajánlata? *

* A kérdésre „Igen” válasz bejelölése esetén, az „Üzenet küldése” gombra kattintva kijelentem, hogy az OTP Bank Nyrt. Adatkezelési tájékoztatójának tartalmát megismertem és tudomásul vettem.

Eladó panellakás leírása

Magas színvonalon felújított, 3. emeleti, panel lakás a Vörösvári úton eladó!
Képzeljen el egy csodálatos, frissen felújított lakást, ahol minden részlet a kényelem és a stílus jegyében készült. A Vörösvári úton található, 69 nm-es, három külön nyíló szobás otthon ideális választás családoknak és befektetőknek egyaránt.
A lakás a 3. emeleten helyezkedik el, világos és az elhelyezkedéséhez képest, a minőségi nyílászáróknak köszönhetően csendes, kilátással a környékre. A lakás belsőépítész által megálmodott, magas színvonalon felújított, így Ön azonnal költözhet és élvezheti az új otthon minden előnyét.
A környék igazi kincs! A Flórián tér mindössze pár percre található, ahol könnyedén elérheti a tömegközlekedést, iskolákat, óvodákat és boltokat, ami nagyban segíti a családi élet szervezését.
A konyha teljesen új, egyedi bútorokkal és beépített Bosch gépekkel van felszerelve, így főzni még sosem volt ennyire élvezetes! A fürdőszoba modern olasz burkolatai és prémium szaniterei pedig a luxus érzetét keltik.
A lakás alacsony rezsijű, hiszen távfűtéses, és minden új elektromos hálózattal, vízvezetékkel és radiátorokkal van ellátva. Ráadásul a közös költség is kedvező, így Önnek csak élveznie kell az új otthonát!
Legyen Ön az első lakója ennek a különleges ingatlannak.
Ne hagyja ki ezt a remek lehetőséget! Hívjon most, és lépjen be álmai otthonába!

Hirdetés feltöltve: 2026. 02. 20.

3 szobás panellakások ára Budapesten

Ebből az összehasonlításból megtudhatod, hogyan viszonyul a lakás ára a környékbeli panellakások átlagos árához. Ez nem azt jelenti, hogy ennyivel olcsóbb vagy drágább, mint amennyit a lakás ér, hanem hogy ennyivel tér el a környékbeli átlagtól.

Ennek a m² ára
III. kerület m² ár
Budapest m² ár
1431 e Ft
1325 e Ft -8%
1217 e Ft -18%
Ennek az ára
III. kerület átlagár
Budapest átlagár
93 M Ft m Ft
82 m Ft -13%
76.6 m Ft -21%

Az ingatlan elhelyezkedése

Cím: Budapest, III. kerület, 3. emelet

Eladó ingatlanok a környékről

XVII. kerület
Eladó panellakás

Budapest, XVII. kerület

89.9 M Ft
3 szoba
73 m²
III. kerület
Eladó panellakás

Budapest, III. kerület

115.5 M Ft
3 szoba
73 m²
III. kerület
Eladó panellakás

Budapest, III. kerület

67.49 M Ft
2 szoba
51 m²
III. kerület, Óbuda, Ringató utca
Eladó téglalakás

Budapest, III. kerület

222 M Ft
4 szoba
114 m²
V. kerület, Nádor utca
Eladó téglalakás

Budapest, V. kerület

136.126 M Ft
3 szoba
57 m²
I. kerület, Krisztinaváros, Zsolt utca
Eladó téglalakás

Budapest, I. kerület

205 M Ft
4 + 1 szoba
140 m²
III. kerület
Eladó panellakás

Budapest, III. kerület

115.5 M Ft
3 szoba
73 m²
III. kerület, Békásmegyer
Eladó panellakás

Budapest, III. kerület

115.5 M Ft
3 szoba
73 m²
III. kerület
Eladó panellakás

Budapest, III. kerület

115.5 M Ft
3 szoba
73 m²
III. kerület
Eladó panellakás

Budapest, III. kerület

115.5 M Ft
3 szoba
73 m²
III. kerület
Eladó panellakás

Budapest, III. kerület

115.5 M Ft
3 szoba
73 m²
VI. kerület
Eladó üzlethelyiség

Budapest, VI. kerület

270 M Ft
170 m²
III. kerület
Eladó panellakás

Budapest, III. kerület

66.5 M Ft
1 + 2 szoba
51 m²
III. kerület, Óbuda, Folyamőr utca
Eladó téglalakás

Budapest, III. kerület

160 M Ft
3 szoba
60 m²
XVIII. kerület, Bókaytelep
Eladó családi ház

Budapest, XVIII. kerület

162 M Ft
5 szoba
195 m²
XIX. kerület, Kispest, Széchenyi utca
Eladó panellakás

Budapest, XIX. kerület

72.9 M Ft
3 szoba
53 m²
XI. kerület
Eladó téglalakás

Budapest, XI. kerület

109 M Ft
3 szoba
60 m²
XIII. kerület
Eladó téglalakás

Budapest, XIII. kerület

102 M Ft
1 szoba
37 m²
III. kerület, Óbuda
Eladó panellakás

Budapest, III. kerület

75.5 M Ft
2 szoba
48 m²
XX. kerület
Eladó családi ház

Budapest, XX. kerület

85 M Ft
2 szoba
70 m²
XIII. kerület
Eladó téglalakás

Budapest, XIII. kerület

143.9 M Ft
3 szoba
70 m²
III. kerület, Békásmegyer
Eladó panellakás

Budapest, III. kerület

73.9 M Ft
1 + 2 szoba
57 m²
III. kerület
Eladó panellakás

Budapest, III. kerület

115.5 M Ft
3 szoba
73 m²
VIII. kerület
Eladó téglalakás

Budapest, VIII. kerület

108.9 M Ft
3 szoba
99 m²

Falusi CSOK ingatlanok

Sellye
Eladó családi ház

Sellye

48.2 M Ft
4 szoba
99 m²
Bagod
Eladó családi ház

Bagod

52 M Ft
2 + 2 szoba
112 m²
Nyírtura
Eladó családi ház

Nyírtura

69.9 M Ft
4 szoba
120 m²
Kenyeri
Eladó családi ház

Kenyeri

21.8 M Ft
2 szoba
75 m²
Seregélyes
Eladó családi ház

Seregélyes

75 M Ft
6 szoba
160 m²
Nyáregyháza
Eladó családi ház

Nyáregyháza

68.9 M Ft
3 szoba
143 m²
Egerág
Eladó családi ház

Egerág

159 M Ft
5 szoba
178 m²
Kóspallag
Eladó családi ház

Kóspallag

65 M Ft
5 szoba
145 m²