City Pearl

Eladó panellakás
Budapest, III. kerület, Óbuda, 3. emelet

+ 10 kép 1/13
93 000 000 Ft93 M Ft 1 430 769 Ft/m2
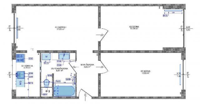
3 szoba
65 m²
3. emelet
építés éve:1980

Részletes adatok

Állapot: Felújított
Fűtés: Távfűtés
Emelet: 3. emelet
Extrák: Lift
Energetikai besorolás: Nem adta meg a hirdető

Az OTP Bank lakáshitel ajánlataFizetett hirdetés

+36 70 675
Fodor Zoltán
referens

Érdekel az OTP Bank kedvezményes lakáshitel ajánlata? *

* A kérdésre „Igen” válasz bejelölése esetén, az „Üzenet küldése” gombra kattintva kijelentem, hogy az OTP Bank Nyrt. Adatkezelési tájékoztatójának tartalmát megismertem és tudomásul vettem.

Eladó panellakás leírása

Magas színvonalon felújított, 3. emeleti, panel lakás a Vörösvári úton eladó!

Képzeljen el egy csodálatos, frissen felújított lakást, ahol minden részlet a kényelem és a stílus jegyében készült.
A Vörösvári úton található, 69 nm-es, három külön nyíló szobás otthon ideális választás családoknak és befektetőknek egyaránt.
A lakás a 3. emeleten helyezkedik el, világos és az elhelyezkedéséhez képest, a minőségi nyílászáróknak köszönhetően csendes, kilátással a környékre.
A lakás belsőépítész által megálmodott, magas színvonalon felújított, így Ön azonnal költözhet és élvezheti az új otthon minden előnyét.
A környék igazi kincs! A Flórián tér mindössze pár percre található, ahol könnyedén elérheti a tömegközlekedést, iskolákat, óvodákat és boltokat, ami nagyban segíti a családi élet szervezését.
A konyha teljesen új, egyedi bútorokkal és beépített Bosch gépekkel van felszerelve, így főzni még sosem volt ennyire élvezetes!
A fürdőszoba modern olasz burkolatai és prémium szaniterei pedig a luxus érzetét keltik.
A lakás alacsony rezsijű, hiszen távfűtéses, és minden új elektromos hálózattal, vízvezetékkel és radiátorokkal van ellátva.
Ráadásul a közös költség is kedvező, így Önnek csak élveznie kell az új otthonát!
Legyen Ön az első lakója ennek a különleges ingatlannak.
Ne hagyja ki ezt a remek lehetőséget!

Referencia szám: M322708

Hirdetés feltöltve: 2026. 02. 16. Utoljára módosítva: 2026. 02. 16.

3 szobás panellakások ára Budapesten

Ebből az összehasonlításból megtudhatod, hogyan viszonyul a lakás ára a környékbeli panellakások átlagos árához. Ez nem azt jelenti, hogy ennyivel olcsóbb vagy drágább, mint amennyit a lakás ér, hanem hogy ennyivel tér el a környékbeli átlagtól.

Ennek a m² ára
Óbuda m² ár
III. kerület m² ár
Budapest m² ár
1431 e Ft
1244 e Ft -15%
1325 e Ft -8%
1217 e Ft -18%
Ennek az ára
Óbuda átlagár
III. kerület átlagár
Budapest átlagár
93 M Ft m Ft
82.4 m Ft -13%
82 m Ft -13%
76.6 m Ft -21%

Az ingatlan elhelyezkedése

Cím: Budapest, III. kerület, Óbuda, 3. emelet

Eladó ingatlanok a környékről

V. kerület
Eladó téglalakás

Budapest, V. kerület

149 M Ft
2 szoba
73 m²
III. kerület
Eladó panellakás

Budapest, III. kerület

115.5 M Ft
3 szoba
73 m²
III. kerület
Eladó panellakás

Budapest, III. kerület

115.5 M Ft
3 szoba
73 m²
XIII. kerület, Angyalföld
Eladó téglalakás

Budapest, XIII. kerület

63 M Ft
2 szoba
55 m²
III. kerület
Eladó családi ház

Budapest, III. kerület

265 M Ft
6 szoba
247 m²
III. kerület
Eladó panellakás

Budapest, III. kerület

115.5 M Ft
3 szoba
73 m²
III. kerület
Eladó panellakás

Budapest, III. kerület

115.5 M Ft
3 szoba
73 m²
XIV. kerület, Herminamező
Eladó téglalakás

Budapest, XIV. kerület

79.9 M Ft
3 szoba
75 m²
III. kerület
Eladó panellakás

Budapest, III. kerület

73.9 M Ft
1 + 2 szoba
57 m²
III. kerület, Óbuda
Eladó panellakás

Budapest, III. kerület

77.9 M Ft
3 szoba
69 m²
III. kerület
Eladó panellakás

Budapest, III. kerület

115.5 M Ft
3 szoba
73 m²
XIV. kerület
Eladó téglalakás

Budapest, XIV. kerület

109 M Ft
2 szoba
55 m²
IV. kerület
Eladó téglalakás

Budapest, IV. kerület

135 M Ft
2 szoba
44 m²
III. kerület
Eladó panellakás

Budapest, III. kerület

115.5 M Ft
3 szoba
73 m²
III. kerület, Óbuda
Eladó panellakás

Budapest, III. kerület

75.5 M Ft
2 szoba
48 m²
VII. kerület
Eladó téglalakás

Budapest, VII. kerület

115 M Ft
3 szoba
73 m²
XIV. kerület
Eladó téglalakás

Budapest, XIV. kerület

134.9 M Ft
4 szoba
82 m²
III. kerület, Békásmegyer
Eladó panellakás

Budapest, III. kerület

73.9 M Ft
1 + 2 szoba
57 m²
III. kerület
Eladó panellakás

Budapest, III. kerület

115.5 M Ft
3 szoba
73 m²
III. kerület, Békásmegyer
Eladó panellakás

Budapest, III. kerület

115.5 M Ft
3 szoba
73 m²
III. kerület
Eladó panellakás

Budapest, III. kerület

115.5 M Ft
3 szoba
73 m²
III. kerület
Eladó panellakás

Budapest, III. kerület

113 M Ft
2 + 1 szoba
62 m²
XIII. kerület, Újlipótváros
Eladó téglalakás

Budapest, XIII. kerület

32.5 M Ft
1 szoba
13 m²
III. kerület
Eladó panellakás

Budapest, III. kerület

67.9 M Ft
2 szoba
51 m²

Falusi CSOK ingatlanok

Bátmonostor
Eladó családi ház

Bátmonostor

22.9 M Ft
3 szoba
82 m²
Véménd, Zrínyi Miklós utca
Eladó családi ház

Véménd

12.99 M Ft
3 szoba
70 m²
Kistapolca, Szabadság utca
Eladó családi ház

Kistapolca

16.5 M Ft
3 szoba
69 m²
Nyírtura
Eladó családi ház

Nyírtura

99 M Ft
4 szoba
280 m²
Csemő
Eladó családi ház

Csemő

36.6 M Ft
1 szoba
48 m²
Devecser
Eladó családi ház

Devecser

33.9 M Ft
4 szoba
120 m²
Szederkény
Eladó családi ház

Szederkény

107.9 M Ft
6 szoba
224 m²
Szákszend
Eladó családi ház

Szákszend

38.5 M Ft
3 szoba
75 m²