Kedves Felhasználónk! Rendszerfrissítés miatt az oldalunk 2026. február 9-én 12 órától várhatóan 20 óráig nem lesz elérhető. Köszönjük megértésed!
Astora Márvány8

Eladó panellakás
Budapest, III. kerület, 9. emelet

+ 13 kép 1/16
67 000 000 Ft67 M Ft 1 313 725 Ft/m2
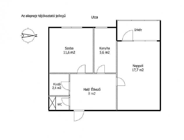
2 szoba
51 m2
9. emelet
építés éve:1983

Részletes adatok

Fűtés: Távfűtés
Emelet: 9. emelet
Extrák: Lift
Energetikai besorolás: E

Az OTP Bank lakáshitel ajánlataFizetett hirdetés

+36 20 365
Fecske Annamária
referens

Érdekel az OTP Bank kedvezményes lakáshitel ajánlata? *

* A kérdésre „Igen” válasz bejelölése esetén, az „Üzenet küldése” gombra kattintva kijelentem, hogy az OTP Bank Nyrt. Adatkezelési tájékoztatójának tartalmát megismertem és tudomásul vettem.

Eladó panellakás leírása

Budapest III. kerületében, Óbuda kedvelt részén eladó egy 51 nm-es, 2 szobás, erkélyes, jó állapotú lakás.
Az ingatlan 9. emeleti, világos, kiváló benapozottságú, az erkélyről és a lakásból részleges kilátás nyílik a Budai-hegyek irányába. A Szentendrei út felőli elhelyezkedés ellenére a lakás csendes, amit a magas emelet és az új, korszerű nyílászárók biztosítanak.
Főbb jellemzők: új nyílászárók redőnyökkel, légkondicionált, praktikus elrendezés, tágas, beépített szekrény, jó műszaki és esztétikai állapot. Az ingatlan karbantartott társasházban, rendezett lakóközösségben található. Üres, azonnal költözhető.
A lakás 1/1 tulajdonban van, tehermentes, jogilag rendezett.
A Flórián tér, Szentlélek tér és a Duna közelsége kiváló infrastruktúrát biztosít: tömegközlekedés, üzletek, szolgáltatások néhány percen belül elérhetők.
Igény esetén külön megvásárolható egy önálló garázs, amely a környéken kifejezetten ritkaságnak számít.
Ez az ingatlan valóban olyan, ahová csak költözni kell ? ideális választás saját otthonnak vagy befektetésnek egyaránt.

Referencia szám: M319625-ZE

Hirdetés feltöltve: 2026. 02. 05. Utoljára módosítva: 2026. 02. 09.

2 szobás panellakások ára Budapesten

Ebből az összehasonlításból megtudhatod, hogyan viszonyul a lakás ára a környékbeli panellakások átlagos árához. Ez nem azt jelenti, hogy ennyivel olcsóbb vagy drágább, mint amennyit a lakás ér, hanem hogy ennyivel tér el a környékbeli átlagtól.

Ennek a m² ára
III. kerület m² ár
Budapest m² ár
1314 e Ft
1365 e Ft 4%
1275 e Ft -3%
Ennek az ára
III. kerület átlagár
Budapest átlagár
67 M Ft m Ft
67.9 m Ft 1%
72.5 m Ft 8%

Az ingatlan elhelyezkedése

Cím: Budapest, III. kerület, 9. emelet

Eladó ingatlanok a környékről

Eladó panellakás
Eladó panellakás

III. kerület, Békásmegyer

67.9 M Ft
2 szoba
51 m2
Eladó téglalakás
Eladó téglalakás

I. kerület, Krisztinaváros, Széna tér

189 M Ft
4 szoba
90 m2
Eladó téglalakás
Eladó téglalakás

III. kerület, Óbuda, Szomolnok utca

89.9 M Ft
2 + 2 szoba
96 m2
Eladó téglalakás
Eladó téglalakás

VI. kerület

120 M Ft
3 szoba
86 m2
Eladó ikerház
Eladó ikerház

XVIII. kerület

124.9 M Ft
4 szoba
180 m2
Eladó iroda
Eladó iroda

I. kerület, Víziváros, Széna tér

189 M Ft
4 szoba
90 m2
Eladó panellakás
Eladó panellakás

III. kerület, Óbuda

77.9 M Ft
3 szoba
69 m2
Eladó panellakás
Eladó panellakás

III. kerület

77.9 M Ft
3 szoba
66 m2
Eladó téglalakás
Eladó téglalakás

VI. kerület, Külső Terézváros, Szófia utca

112.9 M Ft
4 szoba
103 m2
Eladó panellakás
Eladó panellakás

III. kerület

115.5 M Ft
3 szoba
73 m2
Eladó panellakás
Eladó panellakás

III. kerület, Óbuda, Szél utca

77.9 M Ft
3 szoba
69 m2
Eladó panellakás
Eladó panellakás

III. kerület, Óbuda

77.9 M Ft
3 szoba
69 m2
Eladó téglalakás
Eladó téglalakás

V. kerület, Belváros, Petőfi Sándor utca

134 M Ft
2 szoba
59 m2
Eladó panellakás
Eladó panellakás

III. kerület

66.5 M Ft
1 + 2 szoba
51 m2
Eladó családi ház
Eladó családi ház

XXII. kerület, Budafok, Baross utca

222 M Ft
6 + 1 szoba
200 m2
Eladó téglalakás
Eladó téglalakás

XIV. kerület, Kiszugló, Kövér Lajos utca

168 M Ft
3 + 1 szoba
84 m2
Eladó panellakás
Eladó panellakás

III. kerület

113 M Ft
2 + 1 szoba
62 m2
Eladó téglalakás
Eladó téglalakás

XI. kerület, Lágymányos, Móricz Zsigmond körtér

89.5 M Ft
2 szoba
52 m2
Eladó téglalakás
Eladó téglalakás

VI. kerület, Belső Terézváros, Jókai utca

87.6 M Ft
3 szoba
75 m2
Eladó panellakás
Eladó panellakás

III. kerület

115.5 M Ft
3 szoba
73 m2
Eladó téglalakás
Eladó téglalakás

IV. kerület, Újpest, Kassai utca

84.9 M Ft
2 + 1 szoba
71 m2
Eladó téglalakás
Eladó téglalakás

IX. kerület

90 M Ft
2 szoba
55 m2
Eladó téglalakás
Eladó téglalakás

XIII. kerület, Angyalföld, Fiastyúk utca

39.9 M Ft
1 + 1 szoba
34 m2
Eladó téglalakás
Eladó téglalakás

VIII. kerület, Józsefváros

78.5 M Ft
2 szoba
55 m2

Falusi CSOK ingatlanok

Eladó családi ház
Eladó családi ház

Csemő

36.6 M Ft
1 szoba
48 m2
Eladó családi ház
Eladó családi ház

Alattyán

8.5 M Ft
1 + 1 szoba
70 m2
Eladó családi ház
Eladó családi ház

Versend, Jókai Mór utca 2

6.66 M Ft
1 + 1 szoba
109 m2
Eladó családi ház
Eladó családi ház

Tabdi

95 M Ft
45 szoba
1490 m2
Eladó családi ház
Eladó családi ház

Csátalja, Táncsics Mihály utca 2

28 M Ft
3 szoba
100 m2
Eladó családi ház
Eladó családi ház

Magyarszék

48.5 M Ft
3 + 1 szoba
86 m2
Eladó családi ház
Eladó családi ház

Beremend, 7827 Beremend, Petőfi Sándor utca 10

11.95 M Ft
1 + 1 szoba
124 m2
Eladó családi ház
Eladó családi ház

Döröske

102.832 M Ft
3 szoba
114 m2