Avico

Eladó panellakás
Budapest, III. kerület, Rómaifürdő, 2. emelet

+ 11 kép 1/14
105 000 000 Ft105 M Ft 1 438 356 Ft/m2
3 szoba
73 m2
2. emelet
építés éve:1991

Részletes adatok

Fűtés: Házközponti
Energetikai besorolás: Nem adta meg a hirdető

Az OTP Bank lakáshitel ajánlataFizetett hirdetés

+36 70 467
Alföldi-Szabó Erika Gabriella
referens

Érdekel az OTP Bank kedvezményes lakáshitel ajánlata? *

* A kérdésre „Igen” válasz bejelölése esetén, az „Üzenet küldése” gombra kattintva kijelentem, hogy az OTP Bank Nyrt. Adatkezelési tájékoztatójának tartalmát megismertem és tudomásul vettem.

Eladó panellakás leírása

Étkező+ konyha+ nappali + 2 külön nyíló szobás, jó állapotú panellakás eladó Rómaifürdőn!
Új tulajdonosát keresi a III. kerületben, Rómaifürdőn, a Pók utcai lakótelepen egy 73 m2-es, nappali + 2 külön nyíló szobás, világos, jó állapotú panellakás, karbantartott társasházban. Ha zöld és csendes, jó infrastruktúrával rendelkező, nagyon népszerű környéken szeretné megtalálni új otthonát, ezt feltétlenül nézze meg!

KÖRNYÉK és KÖZLEKEDÉS:
- Budapest III. kerülete, Rómaifürdő, Pók utcai lakótelep
- Kiváló infrastruktúrával és közlekedéssel rendelkező, nagyon szerethető környék.
- A lakástól néhány perce elérhető minden, ami a hétköznapokhoz szükséges.
- A 106, 134, 34-es buszok megállója 8 perc, a H5-ös hév 9 perces sétatávolság.
- 10 perces körön belül bölcsőde, óvoda és iskola, orvosi rendelő, gyógyszertár is rendelkezésre áll.
- A bevásárlást a közelben található Auchan, Príma, Spar, Lidl és Aldi biztosítja.
- A Csillag Center Bevásárlóközpont 15 perc gyalog.
- A Római part Budapest egyik legszebb része, ami pár perces sétával elérhető.

TÁRSASHÁZ:
- 1990-es évek elején épült, 4 szintes panel épület.
- Műszakilag rendszeresen karbantartott, gondozott társasház.
- Lépcsőháza tiszta és rendezett.
- Lakóközössége kulturált, csendes, vegyes korosztály.

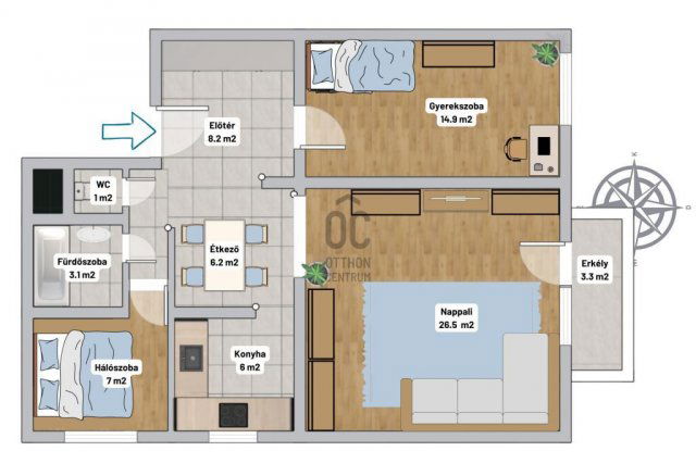
LAKÁS:
- Második emeleti, 73 m2-es, 3 szobás, világos és tágas terekkel rendelkező ingatlan.
- Műszakilag és esztétikailag is jó állapotú lakás
- Elosztása: előszoba-közlekedő, konyha+étkező, nappali, 2 szoba, fürdőszoba, WC.
- A nappali tájolása déli, a lakás világos és logikusan bútorozható terekkel rendelkezik.
- A szobák mindkét oldalon fákra és zöldre néznek, nincs közvetlen szembe szomszéd.
- A lakásban több nagy méretű beépített szekrény segíti a helykihasználást és tárolást.
- A konyha gépiesített, beépített bútorokkal ellátott
- A szobák laminált parkettával, a közlekedő, konyha, fürdőszoba járólappal burkolt.
- Fűtése távfűtés egyedi mérés nélkül, a hűtést klíma biztosítja.
- Közös költsége 14.140 Ft/hó, víz és villanyfogyasztás egyedi mérés alapján fizetendő.
-A lakáshoz tartozik egy közös tároló, illetve a lakás előtti lépcsőház rész is privát, szeparált területtel rendelkezik

AZ INGATLAN MEGTEKINTHETŐ:
- Személyesen
- Online személyes bejelentkezéssel
FINANSZÍROZÁSBAN – ONLINE IS – SEGÍTÜNK!
Bank-független hitelcenterünk díjmentesen versenyezteti az összes bank és hitelintézet ajánlatát.
Önnek csak annyi a dolga, hogy egyeztet munkatársunkkal, majd kiválasztja a hosszú távon is legkedvezőbb konstrukciót.
Szakértőink 20 év tapasztalattal, fogyasztóbarát lakáshitelekkel, babaváró hitellel és teljes körű CSOK Plusz és OTTHON START program ügyintézéssel várják.
Időpont-egyeztetéssel munkaidő után is elérhetők.

Kérdéseire szívesen válaszolok, kérem hívjon bizalommal!

Hirdetés feltöltve: 2025. 11. 09.

3 szobás panellakások ára Budapesten

Ebből az összehasonlításból megtudhatod, hogyan viszonyul a lakás ára a környékbeli panellakások átlagos árához. Ez nem azt jelenti, hogy ennyivel olcsóbb vagy drágább, mint amennyit a lakás ér, hanem hogy ennyivel tér el a környékbeli átlagtól.

Ennek a m² ára
Rómaifürdő m² ár
III. kerület m² ár
Budapest m² ár
1438 e Ft
259 e Ft -455%
1295 e Ft -11%
1163 e Ft -24%
Ennek az ára
Rómaifürdő átlagár
III. kerület átlagár
Budapest átlagár
105 M Ft m Ft
16.1 m Ft -554%
83.5 m Ft -26%
74.3 m Ft -41%

Az ingatlan elhelyezkedése

Cím: Budapest, III. kerület, Rómaifürdő, 2. emelet

Eladó ingatlanok a környékről

Eladó téglalakás
Eladó téglalakás

V. kerület, Belváros, Petőfi Sándor utca

134 M Ft
2 szoba
59 m2
Eladó panellakás
Eladó panellakás

III. kerület

74 M Ft
3 szoba
66 m2
Eladó panellakás
Eladó panellakás

XI. kerület, Őrmező, Kérő utca

71.9 M Ft
2 szoba
49 m2
Eladó téglalakás
Eladó téglalakás

XIV. kerület, Emília utca

79.9 M Ft
2 szoba
56 m2
Eladó téglalakás
Eladó téglalakás

XIV. kerület, Emília utca

79.9 M Ft
2 szoba
56 m2
Eladó panellakás
Eladó panellakás

III. kerület

59.9 M Ft
1 + 2 szoba
57 m2
Eladó panellakás
Eladó panellakás

III. kerület, Óbuda

110 M Ft
3 szoba
85 m2
Eladó téglalakás
Eladó téglalakás

XII. kerület

120 M Ft
2 szoba
60 m2
Eladó panellakás
Eladó panellakás

III. kerület

105 M Ft
3 szoba
73 m2
Eladó panellakás
Eladó panellakás

III. kerület

105 M Ft
3 szoba
73 m2
Eladó családi ház
Eladó családi ház

XXI. kerület

39.6 M Ft
1 szoba
50 m2
Eladó panellakás
Eladó panellakás

III. kerület

105 M Ft
3 szoba
73 m2
Eladó családi ház
Eladó családi ház

XXII. kerület, Budafok, Baross utca

199 M Ft
6 + 1 szoba
200 m2
Eladó panellakás
Eladó panellakás

III. kerület

105 M Ft
3 szoba
73 m2
Eladó panellakás
Eladó panellakás

XIII. kerület

87.9 M Ft
3 szoba
54 m2
Eladó panellakás
Eladó panellakás

III. kerület, Békásmegyer, Zemplén Győző utca

77 M Ft
3 szoba
56 m2
Eladó panellakás
Eladó panellakás

III. kerület

66.5 M Ft
1 + 2 szoba
51 m2
Eladó téglalakás
Eladó téglalakás

VI. kerület, Külső Terézváros, Szív utca

119.5 M Ft
3 szoba
94 m2
Eladó panellakás
Eladó panellakás

III. kerület

105 M Ft
3 szoba
73 m2
Eladó téglalakás
Eladó téglalakás

XI. kerület, Lágymányos

49.8 M Ft
1 szoba
27 m2
Eladó panellakás
Eladó panellakás

III. kerület

105 M Ft
3 szoba
73 m2
Eladó téglalakás
Eladó téglalakás

VII. kerület, Belső Erzsébetváros, Rózsa utca

170 M Ft
5 szoba
124 m2
Eladó panellakás
Eladó panellakás

III. kerület, Óbuda

75.5 M Ft
2 szoba
48 m2
Eladó panellakás
Eladó panellakás

III. kerület, Óbuda

110 M Ft
3 szoba
85 m2

Falusi CSOK ingatlanok

Eladó családi ház
Eladó családi ház

Nagybaracska

42 M Ft
3 szoba
144 m2
Eladó családi ház
Eladó családi ház

Kisköre

35 M Ft
4 szoba
123 m2
Eladó családi ház
Eladó családi ház

Magyarszék

48.5 M Ft
3 + 1 szoba
86 m2
Eladó családi ház
Eladó családi ház

Tápiószőlős

17 M Ft
2 szoba
60 m2
Eladó családi ház
Eladó családi ház

Kocsér

31.9 M Ft
2 + 1 szoba
68 m2
Eladó családi ház
Eladó családi ház

Városföld

27.99 M Ft
55 m2
Eladó családi ház
Eladó családi ház

Rábaszentmihály

65 M Ft
3 szoba
156 m2
Eladó családi ház
Eladó családi ház

Látrány

39.9 M Ft
1 szoba
52 m2