Eladó panellakás, téglalakás, penthouse lakás, családi ház, ikerház, sorház Galgahévíz
Figyelem!
A településen található lakóingatlanokra 2019.07.01-től falusi CSOK támogatás vehető igénybe.
Összesen 17 eladó galgahévízi panellakás, téglalakás, penthouse lakás, családi ház, ikerház, sorház típusú ingatlant találtunk
Kiemeltek elöl
- Kiemeltek elöl
- Legújabbak elöl
- Ár szerint (növekvő)
- Ár szerint (csökkenő)
- Szobák száma szerint
- Népszerűek elöl
- Alapterület szerint
- Négyzetméterár szerint
Keresés mentése

35 M Ft 87 500 Ft/m2
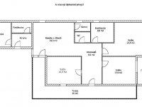
Galgahévíz - Eladó családi ház
Galgahévízen 400nm-es 2szintes 5szobás cs.házat kínálunk, 500nm-es telekkel. Az ingatlan ...
5 szoba
400 m2
telekméret:500 m2

16.98 M Ft 199 765 Ft/m2
Galgahévíz - Eladó családi ház
Budapesttől 30 percre, eladó Galga-mentén, Galgahévízen, egy csendes, rendezett utcában ...
2 szoba
85 m2
telekméret:1 955 m2
építés éve:1930
Találj gyorsan vevőt vagy bérlőt ingatlanodra!
Több százezer érdeklődő már havi 6.800 Ft-tól! Bankkártyás fizetés, korlátlan képfeltöltés, pofonegyszerű hirdetésfeladás!
Hirdetés feladásaHirdetésfigyelő
1. oldal, összesen 1