Pesti Házak

Eladó nyaraló
Tiszapüspöki

Figyelem!

Ez az ingatlan a 2019.07.01-től induló falusi CSOK által támogatott településen található

+ 17 kép 1/20
19 500 000 Ft19.5 M Ft 21 667 Ft/m2
900 m2
építés éve:1980

Részletes adatok

Állapot: Átlagos
Telekméret: 200 m2
Fűtés: Elektromos
Parkolás: Kocsibeálló
Közmű: Víz, Villany
Energetikai besorolás: Nem adta meg a hirdető

Az OTP Bank lakáshitel ajánlataFizetett hirdetés

+36 70 384
Barta Attila
Árkádia Ingatlaniroda

Érdekel az OTP Bank kedvezményes lakáshitel ajánlata? *

* A kérdésre „Igen” válasz bejelölése esetén, az „Üzenet küldése” gombra kattintva kijelentem, hogy az OTP Bank Nyrt. Adatkezelési tájékoztatójának tartalmát megismertem és tudomásul vettem.

Eladó nyaraló leírása

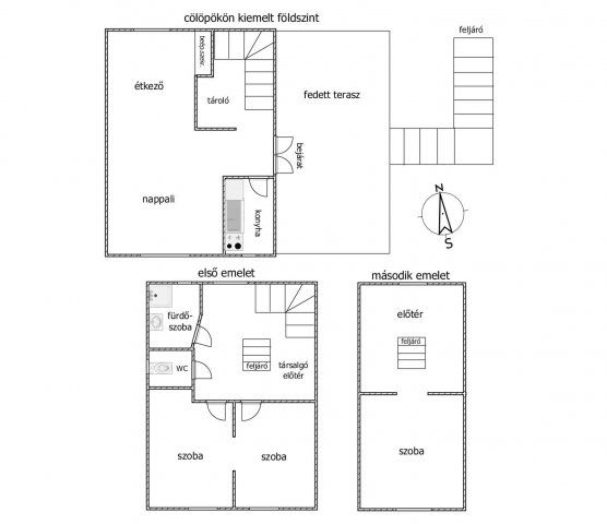
Tiszapüspöki üdülő övezetében egy erdő szélén, hatalmas ősfák ölelésében, a Tisza partján eladó 90m2-es nyaraló. Az ingatlan cölöpökön álló stabil tégla falazatú épület, melyben a helységek három szinten helyezkednek el. A kiemelt földszinten nappali, étkező, konyha kapott helyet, az első emeleten társalgó, kettő szoba, fürdő, WC-t találunk, míg a második emeleten egy szobát és egy előteret helyeztek el. Az épület szerkezetileg rendben van, a belső kialakítások alapján azonnal használatba vehető. Az épület külső homlokzata némi törődést, kisebb javításokat igényel, valamint a fedett terasz héjazata cserére szorul. Az épületbe víz, villany be van vezetve. A teraszról gyönyörű panoráma nyílik egy Natura2000 oltalom alatt álló rétre. A Tisza folyón lehetőség van stég, hajó telepítésére, kiváló lehetőség vízi sportokhoz, horgászathoz. Tiszapüspöki élő Tiszai strandja híres a környéken.

Ezt látnia kell, varázslatos hely, ha nyugodt, természetközeli kikapcsolódási lehetőséget keres, ennek a háznak minden adottsága kiváló, ne hagyja ki, jöjjön el, győződjön meg róla a saját szemével.

Hirdetés feltöltve: 2025. 12. 22. Utoljára módosítva: 2026. 01. 13.

Az ingatlan elhelyezkedése

Cím: Tiszapüspöki

Eladó ingatlanok a környékről

Eladó családi ház
Eladó családi ház

Tiszaszentimre

64.9 M Ft
4 szoba
208 m2
Eladó családi ház
Eladó családi ház

Jászfényszaru

30 M Ft
3 szoba
67 m2
Eladó ikerház
Eladó ikerház

Jászberény

59.9 M Ft
4 szoba
83 m2
Eladó családi ház
Eladó családi ház

Jászjákóhalma

19.9 M Ft
3 szoba
80 m2
Eladó családi ház
Eladó családi ház

Jászfelsőszentgyörgy

38 M Ft
2 + 2 szoba
127 m2
Eladó nyaraló
Eladó nyaraló

Szolnok

49.9 M Ft
3 szoba
90 m2
Eladó nyaraló
Eladó nyaraló

Abádszalók

46.355 M Ft
3 szoba
52 m2
Eladó nyaraló
Eladó nyaraló

Szolnok

36.9 M Ft
2 szoba
65 m2
Eladó nyaraló
Eladó nyaraló

Jászszentandrás

24 M Ft
3 szoba
85 m2
Eladó sorház
Eladó sorház

Szolnok

95 M Ft
3 szoba
82 m2
Eladó családi ház
Eladó családi ház

Jánoshida

29.5 M Ft
3 szoba
103 m2
Eladó családi ház
Eladó családi ház

Tiszatenyő

18 M Ft
2 szoba
88 m2
Eladó nyaraló
Eladó nyaraló

Abádszalók

32 M Ft
5 szoba
95 m2
Eladó nyaraló
Eladó nyaraló

Tiszapüspöki

12.5 M Ft
1 + 1 szoba
26 m2
Eladó családi ház
Eladó családi ház

Jászfényszaru

50 M Ft
3 szoba
131 m2
Eladó családi ház
Eladó családi ház

Fegyvernek

19 M Ft
1 szoba
50 m2
Eladó telek
Eladó telek

Rákóczifalva

25 M Ft
2469 m²
2469 m2
Eladó családi ház
Eladó családi ház

Kunszentmárton

19 M Ft
3 szoba
77 m2
Eladó panellakás
Eladó panellakás

Szolnok

23.9 M Ft
1 + 1 szoba
40 m2
Eladó családi ház
Eladó családi ház

Törökszentmiklós

15 M Ft
2 szoba
Eladó családi ház
Eladó családi ház

Tiszafüred

18 M Ft
2 szoba
82 m2
Eladó téglalakás
Eladó téglalakás

Szolnok

34.5 M Ft
2 szoba
54 m2
Eladó téglalakás
Eladó téglalakás

Szolnok, Széchenyi lakótelep, Kossuth tér

36.9 M Ft
2 szoba
56 m2
Eladó nyaraló
Eladó nyaraló

Jászberény, 7

4.5 M Ft
1 szoba
24 m2

Falusi CSOK ingatlanok

Eladó családi ház
Eladó családi ház

Szakmár

12.9 M Ft
3 + 1 szoba
90 m2
Eladó családi ház
Eladó családi ház

Lesenceistvánd

75 M Ft
2 szoba
90 m2
Eladó családi ház
Eladó családi ház

Vásárosdombó

14.99 M Ft
2 szoba
69 m2
Eladó családi ház
Eladó családi ház

Erdősmárok

69 M Ft
6 szoba
140 m2
Eladó családi ház
Eladó családi ház

Balatonfenyves

430 M Ft
4 szoba
274 m2
Eladó családi ház
Eladó családi ház

Lepsény

120 M Ft
4 szoba
200 m2
Eladó családi ház
Eladó családi ház

Sárosd

21.9 M Ft
3 szoba
86 m2
Eladó ikerház
Eladó ikerház

Balatonakali

129 M Ft
4 szoba
145 m2

Falusi CSOK ingatlanok

Eladó családi ház
Eladó családi ház

Jakabszállás

69.99 M Ft
1 + 4 szoba
91 m2
Eladó családi ház
Eladó családi ház

Alattyán

8.5 M Ft
1 + 1 szoba
70 m2
Eladó családi ház
Eladó családi ház

Ceglédbercel

67 M Ft
4 szoba
165 m2
Eladó családi ház
Eladó családi ház

Balatonvilágos

150 M Ft
3 szoba
134 m2
Eladó családi ház
Eladó családi ház

Ágasegyháza

79 M Ft
5 szoba
174 m2
Eladó családi ház
Eladó családi ház

Recsk

22 M Ft
2 szoba
80 m2
Eladó családi ház
Eladó családi ház

Nagyhegyes

47.9 M Ft
2 szoba
72 m2
Eladó családi ház
Eladó családi ház

Zengővárkony

30.999 M Ft
3 szoba
87 m2