Oasis Residence

Eladó nyaraló
Siófok, Családi ház

+ 4 kép 1/7
79 900 000 Ft79.9 M Ft 1 229 231 Ft/m2
3 szoba
65 m2
Családi ház
építés éve:2025

Részletes adatok

Telekméret: 65 m2
Fűtés: Egyéb
Emelet: 1. emelet
Parkolás: Garázs
Közmű: Víz, Villany, Csatorna
Energetikai besorolás: Nem adta meg a hirdető

Az OTP Bank lakáshitel ajánlataFizetett hirdetés

+36 70 634
Eger Gabriella
referens

Érdekel az OTP Bank kedvezményes lakáshitel ajánlata? *

* A kérdésre „Igen” válasz bejelölése esetén, az „Üzenet küldése” gombra kattintva kijelentem, hogy az OTP Bank Nyrt. Adatkezelési tájékoztatójának tartalmát megismertem és tudomásul vettem.

Eladó nyaraló leírása

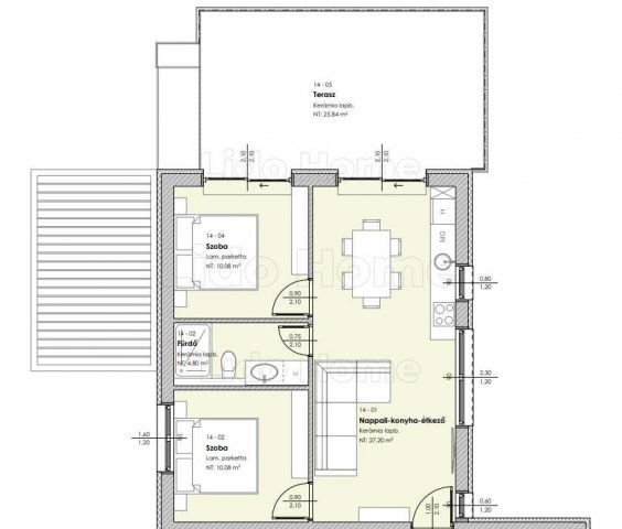
Kizárólag nálunk! A LIDO HOME siófoki irodája eladásra kínál egy újépítésű NYARALÓT SIÓFOK-Fokihegy egyik legszebb utcájában, egy újonnan épülő 4 épületből álló lakóparkban, a LIDO GARDENBEN! A társasház elhelyezkedése kiváló, nyugodt, biztonságos, igényes környezetben található. Iskola, bevásárlási lehetőségek, buszmegálló, kórház, posta is pár perc távolságra vannak, Siófok Fő tere kb. 1,5 km és a Balaton part 1 km-en belül megközelíthető! A ház ENERGIATAKARÉKOS, a hűtés-fűtés modern, energiatakarékos hőszivattyúval lesz megoldva! A lakások átadására várhatóan 2026 május 31.-ig kerül sor! További jellemzői: -1.emeleti, -északi fekvésű, -52,16 m2: amerikai konyhás nappali, 2 szoba, fürdőszoba + 25,84 m2 terasz -a kulcsrakész ár a fan-coil, riasztó és elektromos redőny előkészítését tartalmazza, a burkolatok választhatók -a lakáshoz vásárolható TEREMGARÁZSBAN PARKOLÓ 8,5 millió Forintért, valamint TÁROLÓK különféle méretben! -Budapest csak 1 óra autóút! A projekt megbízható, referenciával rendelkező cég kivitelezésében épül. Befektetésnek, kiadásra, vagy saját célra is kiváló választás! Ne maradjon le! Még vannak elérhető lakások a projektben! Amennyiben a LIDO HOME által kínált új építésű TÉGLALAKÁS vagy bármely a kínálatunkban található ingatlan felkeltette érdeklődését, hívjon bármikor a megadott telefonszámon. Vásárolna, de nincs rá keret? Kollégám díjmentes, bank semleges hitelügyintézéssel áll rendelkezésére. LIDO HOME - Ingatlanok egy életen át!

Hirdetés feltöltve: 2025. 06. 22. Utoljára módosítva: 2026. 01. 16.

Nyaralók ára Siófokon

Ebből az összehasonlításból megtudhatod, hogyan viszonyul a lakás ára a környékbeli nyaralók átlagos árához. Ez nem azt jelenti, hogy ennyivel olcsóbb vagy drágább, mint amennyit a lakás ér, hanem hogy ennyivel tér el a környékbeli átlagtól.

Ennek a m² ára
Siófok m² ár
1229 e Ft
1429 e Ft 14%
Ennek az ára
Siófok átlagár
79.9 M Ft m Ft
120.3 m Ft 34%

Az ingatlan elhelyezkedése

Cím: Siófok, Családi ház

Eladó nyaralók a környékről

Eladó nyaraló
Eladó nyaraló

Siófok

79.8 M Ft
3 szoba
65 m2
Eladó nyaraló
Eladó nyaraló

Siófok

129 M Ft
2 szoba
77 m2
Eladó nyaraló
Eladó nyaraló

Fonyód

59.9 M Ft
3 + 1 szoba
70 m2
Eladó nyaraló
Eladó nyaraló

Siófok

633.73 M Ft
4 szoba
252 m2
Eladó nyaraló
Eladó nyaraló

Nyim

15.4 M Ft
1 szoba
30 m2
Eladó nyaraló
Eladó nyaraló

Siófok

112.2 M Ft
3 szoba
70 m2
Eladó nyaraló
Eladó nyaraló

Siófok

139.4 M Ft
4 szoba
139 m2
Eladó nyaraló
Eladó nyaraló

Siófok

375.92 M Ft
4 szoba
148 m2
Eladó nyaraló
Eladó nyaraló

Siófok

232.9 M Ft
4 szoba
118 m2
Eladó nyaraló
Eladó nyaraló

Siófok

201.931 M Ft
2 szoba
77 m2
Eladó nyaraló
Eladó nyaraló

Szántód

249 M Ft
4 + 4 szoba
80 m2
Eladó nyaraló
Eladó nyaraló

Siófok

41.5 M Ft
1 szoba
30 m2
Eladó nyaraló
Eladó nyaraló

Balatonfenyves

563.75 M Ft
4 szoba
114 m2
Eladó nyaraló
Eladó nyaraló

Siófok

139.4 M Ft
4 szoba
139 m2
Eladó nyaraló
Eladó nyaraló

Siófok

62 M Ft
4 szoba
82 m2
Eladó nyaraló
Eladó nyaraló

Siófok

166.6 M Ft
3 szoba
71 m2
Eladó nyaraló
Eladó nyaraló

Siófok, Mártírok útja

660 M Ft
7 szoba
580 m2
Eladó nyaraló
Eladó nyaraló

Siófok

122 M Ft
3 szoba
65 m2
Eladó nyaraló
Eladó nyaraló

Zamárdi

134.99 M Ft
4 szoba
81 m2
Eladó nyaraló
Eladó nyaraló

Siófok

18 M Ft
2 szoba
32 m2
Eladó nyaraló
Eladó nyaraló

Siófok

69 M Ft
2 szoba
51 m2
Eladó nyaraló
Eladó nyaraló

Siófok

660 M Ft
7 szoba
580 m2
Eladó nyaraló
Eladó nyaraló

Balatonlelle

54.9 M Ft
3 szoba
66 m2
Eladó nyaraló
Eladó nyaraló

Balatonlelle

475 M Ft
7 szoba
650 m2

Falusi CSOK ingatlanok

Eladó családi ház
Eladó családi ház

Harsány

51.9 M Ft
5 szoba
140 m2
Eladó családi ház
Eladó családi ház

Mencshely

99 M Ft
3 szoba
126 m2
Eladó családi ház
Eladó családi ház

Balatonudvari

79.9 M Ft
4 szoba
97 m2
Eladó családi ház
Eladó családi ház

Tapsony

23.8 M Ft
3 szoba
130 m2
Eladó családi ház
Eladó családi ház

Darnózseli

79.9 M Ft
4 szoba
104 m2
Eladó családi ház
Eladó családi ház

Fülöpszállás

299 M Ft
14 + 5 szoba
680 m2
Eladó családi ház
Eladó családi ház

Rédics

65.027 M Ft
3 szoba
180 m2
Eladó családi ház
Eladó családi ház

Törtel

32.9 M Ft
3 szoba
68 m2