Seven Pearl

Eladó nyaraló
Pápa

+ 17 kép 1/20
109 900 000 Ft109.9 M Ft 646 471 Ft/m2
3 + 1 szoba
170 m2
építés éve:2005

Részletes adatok

Állapot: Felújított
Telekméret: 2449 m2
Fűtés: Egyéb
Energetikai besorolás: Nem adta meg a hirdető

Az OTP Bank lakáshitel ajánlataFizetett hirdetés

+36 70 601
Némethy Zsolt
OTP Ingatlanpont Pápa

Érdekel az OTP Bank kedvezményes lakáshitel ajánlata? *

* A kérdésre „Igen” válasz bejelölése esetén, az „Üzenet küldése” gombra kattintva kijelentem, hogy az OTP Bank Nyrt. Adatkezelési tájékoztatójának tartalmát megismertem és tudomásul vettem.

Eladó nyaraló leírása

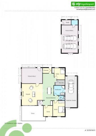
Eladásra kínálunk Pápa külvárosában egy 2005-ben épült, 170 m2-es, 3 szoba + nappalis családi házat, amelyhez egy 2449 m2-es, gondosan parkosított, igazi kertparadicsom tartozik.

Az ingatlan elosztása átgondolt és élhető: az előszobából egy világos, terasz- és télikertkapcsolatos nappaliba léphetünk, amely a ház központi tere. Innen nyílik a konyha-étkező, a háztartási helyiség, a fürdőszoba, a külön WC, valamint három kényelmes hálószoba. A házból közvetlen átjárás nyílik a garázsba, ahol a kazánház és több tárolóhely is helyet kapott, így minden a helyén van a mindennapi élethez.
A házhoz tartozik egy 50 m2-es, duplabeállós garázs is, amelyben külön mellékhelyiség, műhely és tároló található. A garázs mögött betonozott aljzatú, fa szerkezetű kerti tároló, valamint egy autómosásra kialakított helyiség biztosít további praktikus lehetőségeket.

A ház masszív szerkezetű, nagyméretű téglából épült, 10 cm homlokzati és födémszigeteléssel ellátva, így kiváló hőmegtartó képességgel rendelkezik. A betoncserepes tető alátétfóliás, statikailag és esztétikailag is kifogástalan állapotú. A tulajdonosok folyamatosan gondoskodtak az épület karbantartásáról és megújításáról: legutóbb a konyha és a fürdőszobák kaptak teljes felújítást, új burkolatokkal, korszerű gépészettel és modern megjelenéssel.
A hőszigetelt, műanyag nyílászárók redőnnyel és szúnyoghálóval ellátottak. A fűtésről egy 25 kW-os vegyestüzelésű kazán gondoskodik 1000 literes puffertartállyal, padlófűtéssel és radiátoros hőleadással. A rendszer előkészített hőszivattyús fűtésre is, így a ház energiahatékonysága jövőbiztos.

A 2449 m2-es telek a ház igazi ékköve, mérnöki precizitással megtervezett és szeretettel gondozott kert, ahol a dísznövények és egzotikus fák különleges harmóniát teremtenek. Az előkertben árnyas fák és ligetes rész fogadja a látogatót, míg a ház mögött mediterrán hangulatú udvar tárul fel pálmafával, banánfákkal, barack-, cseresznye-, körte- és fügefákkal, valamint citromfűvel, mentával, zsályával, eperrel és datolyával. A növényzet öntözését fúrt kútról működő, 7 zónás automata öntözőrendszer biztosítja.
A kert hátsó részében grillező sarok, magaságyások, komposztáló, 300 literes esővízgyűjtő, kutyakenel és egy 12 m2-es medence is található - ideális helyszín pihenéshez, kertészkedéshez vagy családi programokhoz.
A kényelmet tovább növeli a központi porszívó rendszer, elektromos napernyő, inverteres klíma, elektromos kapu és riasztórendszer.

Ez az ingatlan nem csupán egy ház, hanem egy otthon, ahol a természet és a gondosan megteremtett harmónia mindennap jelen van. Tökéletes választás azoknak, akik szeretik a tágas tereket, a nyugalmat, és a gondozott kert hangulatát, miközben mindössze néhány percre szeretnének maradni Pápa városközpontjától.

Hirdetés feltöltve: 2025. 12. 13.

Az ingatlan elhelyezkedése

Cím: Pápa

Eladó ingatlanok a környékről

Eladó nyaraló
Eladó nyaraló

Bazsi

27.5 M Ft
2 szoba
70 m2
Eladó nyaraló
Eladó nyaraló

Lesencefalu

39.5 M Ft
2 szoba
90 m2
Eladó nyaraló
Eladó nyaraló

Balatonkenese

36.9 M Ft
2 + 1 szoba
50 m2
Eladó nyaraló
Eladó nyaraló

Balatonkenese

19.5 M Ft
1 szoba
35 m2
Eladó családi ház
Eladó családi ház

Berhida

36.999 M Ft
3 szoba
127 m2
Eladó családi ház
Eladó családi ház

Béb

78 M Ft
1 + 3 szoba
107 m2
Eladó nyaraló
Eladó nyaraló

Badacsonytomaj

220 M Ft
8 szoba
308 m2
Eladó nyaraló
Eladó nyaraló

Örvényes, Rózsahegyi utca

99 M Ft
5 szoba
86 m2
Eladó nyaraló
Eladó nyaraló

Pécsely

39.9 M Ft
1 szoba
70 m2
Eladó családi ház
Eladó családi ház

Pápa

249 M Ft
9 + 11 szoba
450 m2
Eladó családi ház
Eladó családi ház

Ugod

39.9 M Ft
5 szoba
215 m2
Eladó családi ház
Eladó családi ház

Adásztevel

28.9 M Ft
2 szoba
64 m2
Eladó nyaraló
Eladó nyaraló

Csopak

58 M Ft
1 + 2 szoba
36 m2
Eladó nyaraló
Eladó nyaraló

Pápa

109.9 M Ft
3 + 1 szoba
170 m2
Eladó családi ház
Eladó családi ház

Bakonyság

51.9 M Ft
2 + 1 szoba
91 m2
Eladó családi ház
Eladó családi ház

Pápa

37.9 M Ft
2 szoba
80 m2
Eladó nyaraló
Eladó nyaraló

Badacsonytördemic

179.07 M Ft
4 szoba
160 m2
Eladó nyaraló
Eladó nyaraló

Balatonakarattya

64.9 M Ft
4 szoba
50 m2
Eladó nyaraló
Eladó nyaraló

Balatonakarattya

38 M Ft
2 szoba
36 m2
Eladó nyaraló
Eladó nyaraló

Lesencefalu

25.9 M Ft
2 szoba
70 m2
Eladó nyaraló
Eladó nyaraló

Felsőörs

59.9 M Ft
3 szoba
70 m2
Eladó családi ház
Eladó családi ház

Nagyalásony

19.5 M Ft
3 szoba
90 m2
Eladó családi ház
Eladó családi ház

Bakonyság

20.9 M Ft
2 szoba
97 m2
Eladó nyaraló
Eladó nyaraló

Pápa

109.9 M Ft
3 + 1 szoba
170 m2

Falusi CSOK ingatlanok

Eladó családi ház
Eladó családi ház

Győrság

86.9 M Ft
4 szoba
92 m2
Eladó családi ház
Eladó családi ház

Gyöngyöshalász

59 M Ft
4 + 3 szoba
214 m2
Eladó téglalakás
Eladó téglalakás

Újlengyel

72.99 M Ft
2 szoba
68 m2
Eladó családi ház
Eladó családi ház

Bag

16.9 M Ft
6 szoba
160 m2
Eladó családi ház
Eladó családi ház

Szigetcsép

110 M Ft
3 szoba
137 m2
Eladó családi ház
Eladó családi ház

Csurgó

10 M Ft
2 szoba
80 m2
Eladó családi ház
Eladó családi ház

Mikebuda

44.9 M Ft
3 szoba
93 m2
Eladó családi ház
Eladó családi ház

Bakonycsernye

39 M Ft
3 szoba
350 m2