Eladó nyaraló
Ópusztaszer

Figyelem!

Ez az ingatlan a 2019.07.01-től induló falusi CSOK által támogatott településen található

1/2
27 500 000 Ft27.5 M Ft 12 195 Ft/m2
4 szoba
2255 m2
építés éve:1915

Részletes adatok

Állapot: Felújítandó
Telekméret: 2255 m2
Fűtés: Egyéb
Energetikai besorolás: Nem adta meg a hirdető

Az OTP Bank lakáshitel ajánlataFizetett hirdetés

+36 70 942
Kalmár Edit Virág
Szeged Széchenyi tér 6 - OTP Ingatlanpont Iroda

Érdekel az OTP Bank kedvezményes lakáshitel ajánlata? *

* A kérdésre „Igen” válasz bejelölése esetén, az „Üzenet küldése” gombra kattintva kijelentem, hogy az OTP Bank Nyrt. Adatkezelési tájékoztatójának tartalmát megismertem és tudomásul vettem.

Eladó nyaraló leírása

Hatalmas élettér kialakítására alkalmas ház eladó Ópusztaszeren!
(Képek feltöltés alatt!)

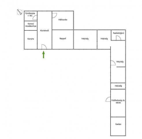
A telek hivatalos alapterülete 2255 m2, mely külterületi osztatlan közös tulajdon. Az eladó telek- és házrész jelenlegi tulajdonosa 1105 m2-t használ a telekből, melynek a másik része egy szomszédhoz tartozik. Az eladó ház L alakban épült fel, a jelenleg lakható nettó hasznos alapterülete 68 m2, kettő szobával, további 48,5 m2 nettó terület felújítást, burkolást, berendezést követően hasznos, tágas élettéré varázsolható, ezen felül pedig a garázs és a tárolónak alkalmas helyiség további 29 m2 területet ad hozzá a teljes épülethez, így az új tulajdonos összesen 145,5 m2 alapterületű házat vásárolhat meg, vastag, vegyes falazattal. A telek körbekerített, a nagy udvar könnyen kihasználható. Az épület tetője részben felújított (egy nagyobb szakaszon). A házba lépve egy hosszabb közlekedőt találunk, jobb oldalon nyílik a kettő teljesértékű szoba (16-16 m2), bal oldalon a konyha, melyhez egy kamra is kapcsolódik. Az ablakos fürdőszoba korábban felújításra került. A ház ezen részében nyílászárókat már nem kell cserélni, műanyag nyílászárók kerültek beépítésre redőnnyel. A fűtésre jelenleg fatüzelésű kazán által van lehetőség új radiátorokra kötve. Gáz bekötésére a telekhatárról adott a lehetőség, önálló villany- és vízórákkal rendelkezik. A jelenleg felújításra váró épületrész külön nyílik az udvarról, ide az áram csak részben került bevezetésre. A nappalival határos a fala, így összenyitható a teljes belső tér. A tároló és garázsrész szintén külön, az udvarról nyílik, melyből a garázs 12 m2, utcai kapuval.
Családok vagy nagy családot tervező párok figyelmébe ajánlom, akik minél nagyobb életteret kívánnak kialakítani.

Keressen bizalommal!

Hirdetés feltöltve: 2025. 03. 30. Utoljára módosítva: 2025. 10. 04.

Az ingatlan elhelyezkedése

Cím: Ópusztaszer

Eladó ingatlanok a környékről

Eladó családi ház
Eladó családi ház

Tömörkény

8.9 M Ft
2 szoba
80 m2
Eladó nyaraló
Eladó nyaraló

Mártély

23.59 M Ft
3 szoba
50 m2
Eladó családi ház
Eladó családi ház

Szentes

15 M Ft
2 szoba
72 m2
Eladó nyaraló
Eladó nyaraló

Ásotthalom

4.99 M Ft
2 szoba
36 m2
Eladó panellakás
Eladó panellakás

Szeged

34.9 M Ft
1 szoba
35 m2
Eladó nyaraló
Eladó nyaraló

Ópusztaszer

27.5 M Ft
4 szoba
2255 m2
Eladó családi ház
Eladó családi ház

Szeged

16.9 M Ft
3 szoba
60 m2
Eladó nyaraló
Eladó nyaraló

Sándorfalva

47.5 M Ft
2 szoba
50 m2
Eladó nyaraló
Eladó nyaraló

Szatymaz

39.99 M Ft
2 szoba
41 m2
Eladó családi ház
Eladó családi ház

Szentes

18.9 M Ft
2 + 1 szoba
126 m2
Eladó nyaraló
Eladó nyaraló

Csongrád

59.9 M Ft
5 + 4 szoba
110 m2
Eladó nyaraló
Eladó nyaraló

Csongrád

10.9 M Ft
2 szoba
68 m2
Eladó téglalakás
Eladó téglalakás

Szeged

64.9 M Ft
2 + 1 szoba
60 m2
Eladó családi ház
Eladó családi ház

Szeged

132.99 M Ft
4 szoba
95 m2
Eladó téglalakás
Eladó téglalakás

Szeged

69.9 M Ft
2 szoba
60 m2
Eladó telek
Eladó telek

Hódmezővásárhely

15.999 M Ft
849 m²
Eladó panellakás
Eladó panellakás

Szeged, Tarján lakótelep, Budapesti körút

42.5 M Ft
2 szoba
47 m2
Eladó nyaraló
Eladó nyaraló

Szeged

17 M Ft
2 szoba
30 m2
Eladó sorház
Eladó sorház

Szeged

112 M Ft
5 szoba
121 m2
Eladó panellakás
Eladó panellakás

Szeged

71.5 M Ft
2 + 2 szoba
72 m2
Eladó családi ház
Eladó családi ház

Szentes

25 M Ft
6 szoba
200 m2
Eladó téglalakás
Eladó téglalakás

Szeged

67.504 M Ft
2 szoba
48 m2
Eladó nyaraló
Eladó nyaraló

Szeged

8 M Ft
2 szoba
20 m2
Eladó családi ház
Eladó családi ház

Szeged

147.99 M Ft
4 szoba
143 m2

Falusi CSOK ingatlanok

Eladó családi ház
Eladó családi ház

Bakonyság

51.9 M Ft
2 + 1 szoba
91 m2
Eladó téglalakás
Eladó téglalakás

Tokaj

116.5 M Ft
2 szoba
49 m2
Eladó családi ház
Eladó családi ház

Kéthely

17.9 M Ft
4 szoba
113 m2
Eladó családi ház
Eladó családi ház

Verpelét, Ságvári Endre út 24

6.88 M Ft
1 + 1 szoba
56 m2
Eladó családi ház
Eladó családi ház

Kutas

14.6 M Ft
3 szoba
65 m2
Eladó családi ház
Eladó családi ház

Koppányszántó, Fő u 211

9.9 M Ft
2 szoba
55 m2
Eladó családi ház
Eladó családi ház

Homokbödöge

49.9 M Ft
4 + 1 szoba
167 m2
Eladó családi ház
Eladó családi ház

Szentmártonkáta

35.4 M Ft
2 + 2 szoba
107 m2

Falusi CSOK ingatlanok

Eladó téglalakás
Eladó téglalakás

Tokaj

192.5 M Ft
3 szoba
90 m2
Eladó családi ház
Eladó családi ház

Segesd

20.9 M Ft
3 szoba
115 m2
Eladó családi ház
Eladó családi ház

Nagyalásony

19.5 M Ft
3 szoba
90 m2
Eladó családi ház
Eladó családi ház

Somogyszob

9.9 M Ft
2 szoba
60 m2
Eladó családi ház
Eladó családi ház

Lázi

18.9 M Ft
2 szoba
74 m2
Eladó családi ház
Eladó családi ház

Bezenye

84.9 M Ft
4 + 1 szoba
145 m2
Eladó családi ház
Eladó családi ház

Aszaló

16.49 M Ft
3 szoba
112 m2
Eladó családi ház
Eladó családi ház

Bag

99 M Ft
6 + 1 szoba
194 m2