BAM Living

Eladó nyaraló
Mezőcsát

+ 17 kép 1/20
32 900 000 Ft32.9 M Ft 235 000 Ft/m2
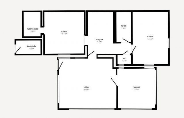
6 szoba
140 m2
építés éve:1990

Részletes adatok

Telekméret: 34000 m2
Fűtés: Egyéb
Energetikai besorolás: Nem adta meg a hirdető

Az OTP Bank lakáshitel ajánlataFizetett hirdetés

+36 70 322
Piskóti Tibor Lajos
OTP Ingatlanpont Miskolc Szemere

Érdekel az OTP Bank kedvezményes lakáshitel ajánlata? *

* A kérdésre „Igen” válasz bejelölése esetén, az „Üzenet küldése” gombra kattintva kijelentem, hogy az OTP Bank Nyrt. Adatkezelési tájékoztatójának tartalmát megismertem és tudomásul vettem.

Eladó nyaraló leírása

ELADÓ CSALÁDI HÁZ 3.4 HEKTÁROS PORTÁVAL TISZAKESZI KÖLTERÜLETÉN! Eladó Tiszakeszi külterületén egy 140nm-es, hatszobás és egy 26nm-es egyszobás ház, 3,4 hektáros területtel! A nagy ház fűtése központi fűtés vegyestüzelésű kazánnal plusz hűtő-fűtő klíma, a kis házé elektromos fűtőpanellel megoldható. A használati melegvizet hőtárolós villanybojler biztosítja. Mindkét ingatlan vízellátása fúrt kútból, házi vízművel megoldott. A hatalmas területen több melléképület és kikapcsolódásra, pihenésre és gazdálkodásra alkalmas felépítmény található. Többek között egy kisebb méretű focipálya, két oldalán a szurkolóknak és barátoknak szükséges székekkel. Kiválóan alkalmas baráti vagy munkahelyi összejövetelek tartására, falusi turizmus kialakítására, illetve mindazoknak akik távol a város zajától gazdálkodásra esetleg önellátásra szeretnének berendezkedni. Ezekhez hatalmas segítség a 11 ásott kút is, melyek a területen elszórtan helyezkednek el, ezzel is segítve az öntözést és a jószágok itatását. A fentieken kívül még rengeteg apró dolog segíti az itteni életet, melyek nem fértek bele a hirdetési szövegbe. Egy új élet lehetősége egy nagyobb lakás áráért!
Várom hívását Hétvégén is!
OTP banki hátterünkkel ügyfeleink rendelkezésére állunk finanszírozási kérdésekben is.
M300174

Referencia szám: M300174

Hirdetés feltöltve: 2025. 12. 03.

Az ingatlan elhelyezkedése

Cím: Mezőcsát

Eladó ingatlanok a környékről

Eladó családi ház
Eladó családi ház

Gesztely

22.9 M Ft
3 szoba
104 m2
Eladó családi ház
Eladó családi ház

Sajóbábony

29.9 M Ft
2 szoba
65 m2
Eladó családi ház
Eladó családi ház

Putnok, Erdélyi

16 M Ft
3 + 1 szoba
119 m2
Eladó nyaraló
Eladó nyaraló

Mezőkövesd

59.99 M Ft
3 + 1 szoba
90 m2
Eladó üzlethelyiség
Eladó üzlethelyiség

Alsózsolca

40 M Ft
1 + 3 szoba
72 m2
Eladó családi ház
Eladó családi ház

Szikszó

37 M Ft
2 szoba
91 m2
Eladó ikerház
Eladó ikerház

Kistokaj

100 M Ft
3 szoba
136 m2
Eladó nyaraló
Eladó nyaraló

Miskolc

17.9 M Ft
2 + 2 szoba
55 m2
Eladó családi ház
Eladó családi ház

Erdőbénye, Dombi Sámuel utca

36.3 M Ft
4 szoba
85 m2
Eladó nyaraló
Eladó nyaraló

Miskolc, Pereces, Pünkösdhegy

4.99 M Ft
1 szoba
33 m2
Eladó mezogazdasagi ingatlan
Eladó mezogazdasagi ingatlan

Homrogd

21.5 M Ft
65846 m2
Eladó családi ház
Eladó családi ház

Szikszó

37 M Ft
2 szoba
91 m2
Eladó családi ház
Eladó családi ház

Szerencs

44.9 M Ft
5 szoba
188 m2
Eladó nyaraló
Eladó nyaraló

Mezőkövesd

39 M Ft
3 szoba
48 m2
Eladó mezogazdasagi ingatlan
Eladó mezogazdasagi ingatlan

Mályi

0.9 M Ft
Eladó panellakás
Eladó panellakás

Miskolc

35.5 M Ft
2 + 1 szoba
61 m2
Eladó telek
Eladó telek

Tokaj

2.1 M Ft
3501 m²
3501 m2
Eladó nyaraló
Eladó nyaraló

Mezőcsát

32.9 M Ft
6 szoba
140 m2
Eladó nyaraló
Eladó nyaraló

Tiszalúc

7.99 M Ft
2 szoba
20 m2
Eladó nyaraló
Eladó nyaraló

Miskolc

12.49 M Ft
1 + 1 szoba
30 m2
Eladó nyaraló
Eladó nyaraló

Mezőkövesd

53.34 M Ft
3 + 2 szoba
72 m2
Eladó családi ház
Eladó családi ház

Révleányvár, Fő utca

4.8 M Ft
3 szoba
94 m2
Eladó családi ház
Eladó családi ház

Miskolc

89 M Ft
6 szoba
200 m2
Eladó nyaraló
Eladó nyaraló

Arló

25.49 M Ft
2 szoba
70 m2

Falusi CSOK ingatlanok

Eladó családi ház
Eladó családi ház

Csatár

98.5 M Ft
2 + 3 szoba
110 m2
Eladó családi ház
Eladó családi ház

Ceglédbercel, Iskola utca

99.99 M Ft
5 szoba
128 m2
Eladó családi ház
Eladó családi ház

Tokod

89 M Ft
6 szoba
187 m2
Eladó családi ház
Eladó családi ház

Újlengyel

110 M Ft
4 szoba
121 m2
Eladó családi ház
Eladó családi ház

Tanakajd

17.9 M Ft
3 szoba
61 m2
Eladó családi ház
Eladó családi ház

Hegyeshalom

85 M Ft
4 + 1 szoba
123 m2
Eladó családi ház
Eladó családi ház

Mencshely

99 M Ft
3 szoba
126 m2
Eladó téglalakás
Eladó téglalakás

Rétság

44.9 M Ft
2 szoba
55 m2