NapForrás 20 - Buda

Eladó nyaraló
Lakitelek

+ 4 kép 1/7
28 900 000 Ft28.9 M Ft 825 714 Ft/m2
2 szoba
35 m2

Részletes adatok

Telekméret: 396 m2
Fűtés: Gázkonvektor
Energetikai besorolás: Nem adta meg a hirdető

Az OTP Bank lakáshitel ajánlataFizetett hirdetés

+36 30 341
Banó Kocsis Zsuzsanna
HOUSE36 Ingatlanbázis Kft.

Érdekel az OTP Bank kedvezményes lakáshitel ajánlata? *

* A kérdésre „Igen” válasz bejelölése esetén, az „Üzenet küldése” gombra kattintva kijelentem, hogy az OTP Bank Nyrt. Adatkezelési tájékoztatójának tartalmát megismertem és tudomásul vettem.

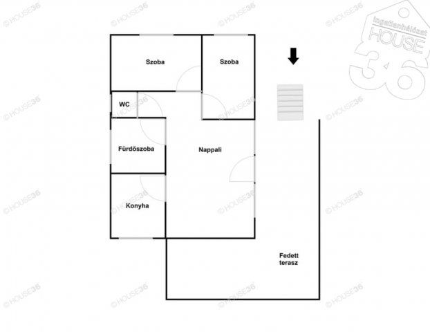
Eladó nyaraló leírása

Eladó hétvégi ház Lakitelek-Tőserdő központjában!
Lakitelek közkedvelt részén, Tőserdő központjában, a fürdőtől pár perc séta, eladó egy tégla építésű, nappali + 2 félszobás hétvégi ház, amely fűtött, így akár lakóingatlannak is kiválóan alkalmas. A 396 m2-es telken elhelyezkedő, 2022-ben felújított ingatlan 35 m2-es lakóteret, valamint 15 m2 fedett teraszt és pincét kínál, kellemes, gondozott környezetben.

Főbb jellemzők:
- Tégla építésű, jó állapotú ház
- Nappali + 2 félszoba elosztás
- Konvektoros fűtés
- Fa nyílászárók szúnyoghálóval
- 15 m2 fedett terasz
- Pince és kerti sütögető
- 396 m2-es telek
- közművek: villany, gáz, városi víz, fúrt kút

Az ingatlan „hétvégi ház” megjelölésű, ezért lakáshitelre nem alkalmas.

Képzelje el, ahogy Tőserdő csendes, zöld környezetében pihen, mindössze néhány lépésre a központtól, mégis természetközelben. Ez a hangulatos, tégla építésű hétvégi ház nemcsak nyaralásra, hanem akár egész éves lakhatásra is alkalmas – ahol a nyugalom és a kényelem találkozik.

Ne maradjon le erről a ritka lehetőségről! Ha Ön is egy rendezett, jól megközelíthető, de mégis természetközeli ingatlant keres Lakiteleken, keressen bizalommal, és tekintse meg személyesen ezt a bájos házat Tőserdő szívében.


28900000 Ft
Az iroda legfrissebb, aktuális kínálatát a HOUSE36 saját weboldalán találja!

Hirdetés feltöltve: 2025. 10. 16. Utoljára módosítva: 2025. 11. 29.

Nyaralók ára Lakitelken

Ebből az összehasonlításból megtudhatod, hogyan viszonyul a lakás ára a környékbeli nyaralók átlagos árához. Ez nem azt jelenti, hogy ennyivel olcsóbb vagy drágább, mint amennyit a lakás ér, hanem hogy ennyivel tér el a környékbeli átlagtól.

Ennek a m² ára
Lakitelek m² ár
826 e Ft
599 e Ft -38%
Ennek az ára
Lakitelek átlagár
28.9 M Ft m Ft
22.3 m Ft -30%

Az ingatlan elhelyezkedése

Cím: Lakitelek

Eladó ingatlanok a környékről

Eladó mezogazdasagi ingatlan
Eladó mezogazdasagi ingatlan

Mélykút

6.5 M Ft
2 szoba
71 m2
Eladó nyaraló
Eladó nyaraló

Kecskemét

20.5 M Ft
2 szoba
40 m2
Eladó nyaraló
Eladó nyaraló

Lakitelek

26.9 M Ft
2 szoba
30 m2
Eladó nyaraló
Eladó nyaraló

Baja, Monostori út

18 M Ft
2 szoba
41 m2
Eladó téglalakás
Eladó téglalakás

Kalocsa

16 M Ft
2 szoba
50 m2
Eladó nyaraló
Eladó nyaraló

Kiskunfélegyháza

14.9 M Ft
1 szoba
50 m2
Eladó nyaraló
Eladó nyaraló

Lakitelek

18 M Ft
2 szoba
40 m2
Eladó nyaraló
Eladó nyaraló

Lakitelek

17.8 M Ft
1 szoba
30 m2
Eladó családi ház
Eladó családi ház

Tiszakécske

33.9 M Ft
2 szoba
51 m2
Eladó családi ház
Eladó családi ház

Lakitelek

16.99 M Ft
2 szoba
50 m2
Eladó nyaraló
Eladó nyaraló

Soltvadkert, Vadvirág utca

20.9 M Ft
2 szoba
50 m2
Eladó nyaraló
Eladó nyaraló

Lakitelek

26.9 M Ft
2 szoba
30 m2
Eladó nyaraló
Eladó nyaraló

Nagybaracska, Füzessziget

99.9 M Ft
6 szoba
213 m2
Eladó családi ház
Eladó családi ház

Szentkirály

59.9 M Ft
5 szoba
103 m2
Eladó nyaraló
Eladó nyaraló

Baja

34.9 M Ft
2 szoba
49 m2
Eladó nyaraló
Eladó nyaraló

Lakitelek

28.9 M Ft
2 szoba
35 m2
Eladó nyaraló
Eladó nyaraló

Lakitelek, Nincs utca

5.99 M Ft
2 szoba
42 m2
Eladó nyaraló
Eladó nyaraló

Lakitelek

19.9 M Ft
2 szoba
40 m2
Eladó családi ház
Eladó családi ház

Kecskemét

25 M Ft
2 szoba
50 m2
Eladó nyaraló
Eladó nyaraló

Kiskunfélegyháza

5.9 M Ft
1 szoba
35 m2
Eladó nyaraló
Eladó nyaraló

Tass

31.9 M Ft
1 szoba
45 m2
Eladó nyaraló
Eladó nyaraló

Újsolt

75 M Ft
2 szoba
50 m2
Eladó panellakás
Eladó panellakás

Kecskemét

48.9 M Ft
2 szoba
55 m2
Eladó nyaraló
Eladó nyaraló

Lakitelek

18 M Ft
2 szoba
40 m2

Falusi CSOK ingatlanok

Eladó családi ház
Eladó családi ház

Felsőlajos

100 M Ft
4 szoba
140 m2
Eladó családi ház
Eladó családi ház

Szigetbecse

69.9 M Ft
4 szoba
70 m2
Eladó családi ház
Eladó családi ház

Sárosd

21.9 M Ft
3 szoba
86 m2
Eladó ikerház
Eladó ikerház

Balatonakali

165 M Ft
4 szoba
138 m2
Eladó családi ház
Eladó családi ház

Balatonfenyves

430 M Ft
4 szoba
274 m2
Eladó családi ház
Eladó családi ház

Újszilvás

20.9 M Ft
3 szoba
66 m2
Eladó ikerház
Eladó ikerház

Besnyő

79.6 M Ft
5 szoba
117 m2
Eladó családi ház
Eladó családi ház

Balatonszentgyörgy

61.692 M Ft
4 szoba
126 m2