Aerogate Homes

Eladó nyaraló
Kulcs

+ 17 kép 1/20
16 500 000 Ft16.5 M Ft 183 333 Ft/m2
2 szoba
90 m²
építés éve:1974

Részletes adatok

Állapot: Átlagos
Telekméret: 898 m2
Fűtés: Elektromos
Energetikai besorolás: Nem adta meg a hirdető

Az OTP Bank lakáshitel ajánlataFizetett hirdetés

+36 70 599
Marczi Aletta
Szigetszentmiklós OTP Ip

Érdekel az OTP Bank kedvezményes lakáshitel ajánlata? *

* A kérdésre „Igen” válasz bejelölése esetén, az „Üzenet küldése” gombra kattintva kijelentem, hogy az OTP Bank Nyrt. Adatkezelési tájékoztatójának tartalmát megismertem és tudomásul vettem.

Eladó nyaraló leírása

Nyaraló Kulcson, csodás kilátással!

Eladásra kínálok egy nyaralót Kulcson üdülőövezetben, a Dunától rövid sétányi távolságra.
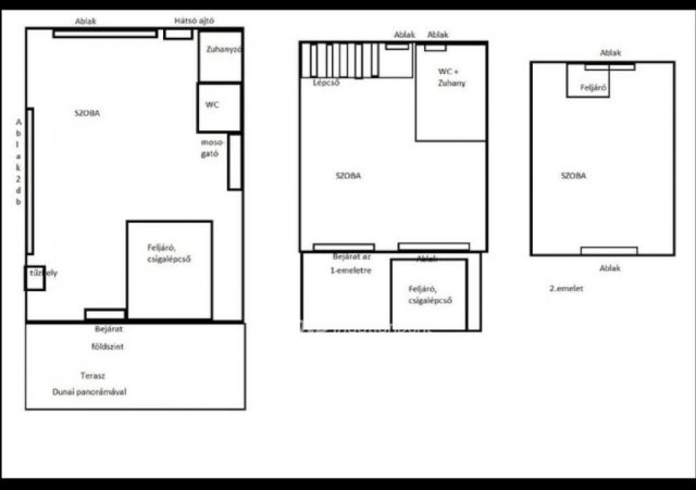
A nyaraló 50 m2 alapterületű, 3 szintes, összesen kb 90 m2-es, mely 898 m2-es telken helyezkedik el. Az épület téliesített, állandó lakhatásra alkalmas szigetelt faház, terasszal.
Az ingatlanban 2 szoba, nappali konyhával, zuhanyzós fürdőszoba, 2 wc található.
Keletre néző ablakaiból gyönyörű örök panorámás kilátás esik a Dunára. Vezetékes víz, villany a házban, emésztő a ház mellett lett kiépítve.
2 autónak alkalmas betonozott beálló a ház előtt található.
Iskola, óvoda, bölcsőde 15 perc séta.
Az M6-os ill. 6-os út közelségének köszönhetően könnyen megközelíthető Dunaújváros, illetve Budapest és környéke is.
A faluban sportpálya, játszótér, orvosi rendelő is van.

Megtekintésért, vagy ha kérdése lenne, forduljon hozzám bizalommal.
Referenciaszám: M298308

Az energetikai tanúsítvány készítése folyamatban van, amint rendelkezésre áll, úgy azzal a hirdetés frissítésre kerül.

Hirdetés feltöltve: 2026. 04. 08. Utoljára módosítva: 2026. 05. 10.

Nyaralók ára Kulcson

Ebből az összehasonlításból megtudhatod, hogyan viszonyul a lakás ára a környékbeli nyaralók átlagos árához. Ez nem azt jelenti, hogy ennyivel olcsóbb vagy drágább, mint amennyit a lakás ér, hanem hogy ennyivel tér el a környékbeli átlagtól.

Ennek a m² ára
Kulcs m² ár
183 e Ft
658 e Ft 72%
Ennek az ára
Kulcs átlagár
16.5 M Ft m Ft
27.1 m Ft 39%

Az ingatlan elhelyezkedése

Cím: Kulcs

Eladó nyaralók a környékről

Pázmánd
Eladó nyaraló

Pázmánd

15 M Ft
1 szoba
25 m²
Sukoró
Eladó nyaraló

Sukoró

55 M Ft
2 + 3 szoba
126 m²
Kulcs
Eladó nyaraló

Kulcs

32.7 M Ft
3 szoba
38 m²
Kulcs
Eladó nyaraló

Kulcs

8.9 M Ft
1 szoba
10 m²
Kulcs
Eladó nyaraló

Kulcs

22.9 M Ft
2 szoba
56 m²
Csákvár
Eladó nyaraló

Csákvár

20 M Ft
2 szoba
27 m²
Kulcs
Eladó nyaraló

Kulcs

32.7 M Ft
3 szoba
38 m²
Szabadbattyán
Eladó nyaraló

Szabadbattyán

24.9 M Ft
1 + 1 szoba
30 m²
Kulcs
Eladó nyaraló

Kulcs

16.5 M Ft
2 szoba
35 m²
Kulcs
Eladó nyaraló

Kulcs

60 M Ft
2 szoba
50 m²
Óbarok
Eladó nyaraló

Óbarok

13.99 M Ft
2 szoba
28 m²
Csókakő
Eladó nyaraló

Csókakő

20 M Ft
1 szoba
100 m²
Kulcs
Eladó nyaraló

Kulcs

28 M Ft
2 szoba
60 m²
Etyek, Öreghegyi présházak
Eladó nyaraló

Etyek

24.9 M Ft
2 szoba
101 m²
Kulcs
Eladó nyaraló

Kulcs

45.9 M Ft
1 szoba
81 m²
Székesfehérvár, Belváros
Eladó nyaraló

Székesfehérvár

25.5 M Ft
1 + 1 szoba
32 m²
Sukoró
Eladó nyaraló

Sukoró

49 M Ft
5 szoba
129 m²
Kulcs
Eladó nyaraló

Kulcs

16.5 M Ft
2 szoba
90 m²
Bicske, Galagonyás IV. dűlő út
Eladó nyaraló

Bicske

9.4 M Ft
1 szoba
16 m²
Kulcs
Eladó nyaraló

Kulcs

28 M Ft
2 szoba
60 m²
Sukoró
Eladó nyaraló

Sukoró

47.8 M Ft
3 + 1 szoba
75 m²
Kulcs, Hargita utca
Eladó nyaraló

Kulcs

22.9 M Ft
2 szoba
56 m²
Kulcs
Eladó nyaraló

Kulcs

28 M Ft
2 szoba
60 m²
Sukoró
Eladó nyaraló

Sukoró

20.9 M Ft
2 szoba
20 m²

Falusi CSOK ingatlanok

Ónod
Eladó családi ház

Ónod

14.999 M Ft
3 szoba
80 m²
Nagykarácsony
Eladó családi ház

Nagykarácsony

34.9 M Ft
3 szoba
112 m²
Csurgó
Eladó családi ház

Csurgó

19.9 M Ft
4 szoba
136 m²
Hajós
Eladó családi ház

Hajós

49.5 M Ft
6 szoba
394 m²
Táborfalva
Eladó családi ház

Táborfalva

34.9 M Ft
3 szoba
49 m²
Becsehely
Eladó családi ház

Becsehely

24.6 M Ft
2 szoba
99 m²
Fonyód
Eladó téglalakás

Fonyód

175 M Ft
3 szoba
79 m²
Zsámbok
Eladó családi ház

Zsámbok

54.85 M Ft
3 szoba
120 m²