Kedves Felhasználónk! Rendszerfrissítés miatt az oldalunk 2026. február 9-én 12 órától várhatóan 20 óráig nem lesz elérhető. Köszönjük megértésed!
Avico Greentop

Eladó iroda
Szeged, földszint

+ 17 kép 1/20
140 000 000 Ft140 M Ft 891 720 Ft/m2
157 m2
földszint
építés éve:2022

Részletes adatok

Állapot: Újszerű
Fűtés: Egyéb
Emelet: földszint
Extrák: Lift
Energetikai besorolás: A++

Az OTP Bank lakáshitel ajánlataFizetett hirdetés

+36 30 628
Kádár Zoltán László
Szeged Széchenyi tér 6 - OTP Ingatlanpont Iroda

Érdekel az OTP Bank kedvezményes lakáshitel ajánlata? *

* A kérdésre „Igen” válasz bejelölése esetén, az „Üzenet küldése” gombra kattintva kijelentem, hogy az OTP Bank Nyrt. Adatkezelési tájékoztatójának tartalmát megismertem és tudomásul vettem.

Eladó iroda leírása

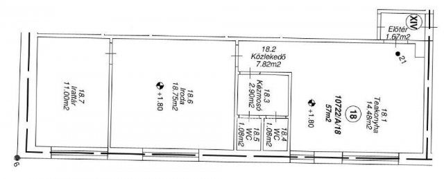
IRODA ÉS LAKÁS EGY CSOMAGBAN, EGYEDI ÁRON! Szeged, belváros közelében 57 m2-es, új építésű, kulcsrakész iroda és a hozzá tartozó 100 m2-es tetőtéri emelt szintű szerkezetkész lakás 110.236.000 Ft + ÁFA áron eladó. A lakáshoz tartozik még egy 40 m2-es tetőterasz és egy 20 m2-es felülvilágítós előtér is, mely egyedi hangulatot biztosíthat társasági összejövetelek, grill-partyk számára is. Az ingatlan elhelyezkedése, frekventáltsága rendkívűl kedvező lehetőséget biztosít akár orvosi rendelő, wellness stúdió vagy többféle profilú iroda kialakítására is saját design szerint. Egyedi lehetőség lehet befektetőknek és vállalkozásoknak egyaránt. Az ingatlan megvásárlásához kedvező hitel is igényelhető, melynek intézéséhez szakszerű segítség áll a leendő vásárló rendelkezésére.

Hirdetés feltöltve: 2026. 01. 07. Utoljára módosítva: 2026. 02. 06.

Irodák ára Szegeden

Ebből az összehasonlításból megtudhatod, hogyan viszonyul a lakás ára a környékbeli irodák átlagos árához. Ez nem azt jelenti, hogy ennyivel olcsóbb vagy drágább, mint amennyit a lakás ér, hanem hogy ennyivel tér el a környékbeli átlagtól.

Ennek a m² ára
Szeged m² ár
892 e Ft
825 e Ft -8%
Ennek az ára
Szeged átlagár
140 M Ft m Ft
111.8 m Ft -25%

Az ingatlan elhelyezkedése

Cím: Szeged, földszint

Eladó irodák a környékről

Eladó iroda
Eladó iroda

Szeged

114.1 M Ft
8 szoba
150 m2
Eladó iroda
Eladó iroda

Szeged

19 M Ft
4 + 1 szoba
104 m2
Eladó iroda
Eladó iroda

Makó, Mikes Kelemen u

75 M Ft
18 + 3 szoba
900 m2
Eladó iroda
Eladó iroda

Földeák, Szent László tér

55 M Ft
1968 m²
300 m2
Eladó iroda
Eladó iroda

Szeged

19 M Ft
4 + 1 szoba
104 m2
Eladó iroda
Eladó iroda

Szeged

690 M Ft
17 szoba
592 m2
Eladó iroda
Eladó iroda

Szeged

41.9 M Ft
2 szoba
50 m2
Eladó iroda
Eladó iroda

Szeged

187 M Ft
173 m2
Eladó iroda
Eladó iroda

Kistelek

110 M Ft
2 + 1 szoba
165 m2
Eladó iroda
Eladó iroda

Szeged

96 M Ft
2 + 1 szoba
86 m2
Eladó iroda
Eladó iroda

Szeged

28.3 M Ft
4 szoba
65 m2
Eladó iroda
Eladó iroda

Szeged

690 M Ft
17 szoba
592 m2
Eladó iroda
Eladó iroda

Szeged

147.087 M Ft
6 szoba
173 m2
Eladó iroda
Eladó iroda

Szeged

26.5 M Ft
1 szoba
20 m2
Eladó iroda
Eladó iroda

Kiszombor, Nagyszentmiklósi utca 6

62.01 M Ft
1672 m²
1117 m2
Eladó iroda
Eladó iroda

Szeged

34.5 M Ft
2 szoba
42 m2
Eladó iroda
Eladó iroda

Szeged

26.5 M Ft
1 szoba
20 m2
Eladó iroda
Eladó iroda

Szeged

17.2 M Ft
40 m2
Eladó iroda
Eladó iroda

Szeged

86.9 M Ft
218 m2
Eladó iroda
Eladó iroda

Szeged

80 M Ft
113 m2
Eladó iroda
Eladó iroda

Derekegyház

350 M Ft
3145 m²
900 m2
Eladó iroda
Eladó iroda

Hódmezővásárhely

55 M Ft
3 + 1 szoba
175 m2

Falusi CSOK ingatlanok

Eladó családi ház
Eladó családi ház

Szilvásvárad

31.9 M Ft
2 szoba
82 m2
Eladó családi ház
Eladó családi ház

Bár

89.5 M Ft
4 + 1 szoba
172 m2
Eladó családi ház
Eladó családi ház

Palkonya

137 M Ft
7 szoba
160 m2
Eladó családi ház
Eladó családi ház

Kölked

42 M Ft
3 szoba
100 m2
Eladó családi ház
Eladó családi ház

Tenk

78 M Ft
5 szoba
126 m2
Eladó családi ház
Eladó családi ház

Darnózseli

79.9 M Ft
4 szoba
104 m2
Eladó családi ház
Eladó családi ház

Véménd

46.9 M Ft
5 szoba
195 m2
Eladó családi ház
Eladó családi ház

Himesháza

114.9 M Ft
4 szoba
160 m2