Eladó iroda
Szeged, földszint
Részletes adatok
Az OTP Bank lakáshitel ajánlataFizetett hirdetés
Induló törlesztőrészlet
101 262 Ft /hóTörlesztőrészlet a 13. hónaptól
129 106 Ft /hóInduló törlesztőrészlet
135 016 Ft /hóTörlesztőrészlet a 13. hónaptól
172 142 Ft /hóA tájékoztatás nem teljes körű és nem minősül ajánlattételnek. Az OTP Évnyerő Lakáshitelei 1 éves türelmi idős kölcsönök, amellyel az első 12 hónapban alacsonyabb a havi törlesztőrészlet. A tőke törlesztését a 13. hónaptól kell megkezdeni.

Eladó iroda leírása
Szegeden, Alsóváros frekventált részén, utcafronti, nagy üvegkirakattal rendelkező iroda eladó.
Az ingatlan könnyen megközelíthető, elhelyezkedése kiváló akár ügyfélforgalommal működő vállalkozás számára is.
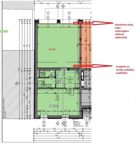
Az iroda összesen 63,38 m² alapterületű, amelyből 28 m² a világos, utcára nyíló ügyféltér. A hátsó, 32 m²-es helyiség befejezése az új tulajdonos igényei szerint történhet, így saját elképzeléseire szabhatja a munkateret.
Jelenleg egy mellékhelyiség (fürdőszoba és WC) lett kialakítva.
Az épület magas műszaki tartalommal épült: geotermikus (talajszondás) hőszivattyús fűtés-hűtés biztosítja az alacsony rezsit, padlófűtés és fan coil rendszer szolgáltatja az évszaknak megfelelő hőmérsékletet.
Az ingatlan 15 cm-es hőszigeteléssel, korszerű nyílászárókkal, valamint prémium burkolatokkal és szaniterekkel rendelkezik.
A kivitelező több, prémium minőségű referencia projekttel büszkélkedhet.
Az ingatlan vételára 59,9 M Ft + 27% ÁFA.
A környék ellátottsága kiváló: pár perc sétával elérhető a Mátyás király tér, a Nagyállomás (posta, gyógyszertár, Spar stb.), autóval pedig a Napfény Park bevásárlóközpont is mindössze 5 perc.
Villamos- és buszmegállók a közelben, a belváros és az egyetemi épületek szintén gyorsan elérhetők.
További információért keressen bennünket e-mailben vagy telefonon!
A tervdokumentáció előzetes egyeztetéssel megtekinthető irodánkban, a Csongrádi sugárút 41. szám alatt.
Amennyiben a vásárláshoz hitelre van szüksége, egyedi igényekre szabott lakáshitelekkel állunk rendelkezésére. Bank független hiteltanácsadónk az országban elérhető összes bank és hitelintézet ajánlatát versenyezteti az Ön számára díjmentesen.
Hirdetés feltöltve: 2025. 09. 12. Utoljára módosítva: 2025. 09. 18.
Irodák ára Szegeden
Ebből az összehasonlításból megtudhatod, hogyan viszonyul a lakás ára a környékbeli irodák átlagos árához. Ez nem azt jelenti, hogy ennyivel olcsóbb vagy drágább, mint amennyit a lakás ér, hanem hogy ennyivel tér el a környékbeli átlagtól.
Az ingatlan elhelyezkedése
Cím: Szeged, földszint