River Life

Eladó iroda
Letenye

Figyelem!

Ez az ingatlan a 2019.07.01-től induló falusi CSOK által támogatott településen található

+ 6 kép 1/9
28 670 000 Ft28.67 M Ft 215 564 Ft/m2
133 m2
építés éve:1970

Részletes adatok

Állapot: Átlagos
Fűtés: Gázkazán
Energetikai besorolás: Nem adta meg a hirdető

Az OTP Bank lakáshitel ajánlataFizetett hirdetés

+36 70 334
Pál Miklós
referens

Érdekel az OTP Bank kedvezményes lakáshitel ajánlata? *

* A kérdésre „Igen” válasz bejelölése esetén, az „Üzenet küldése” gombra kattintva kijelentem, hogy az OTP Bank Nyrt. Adatkezelési tájékoztatójának tartalmát megismertem és tudomásul vettem.

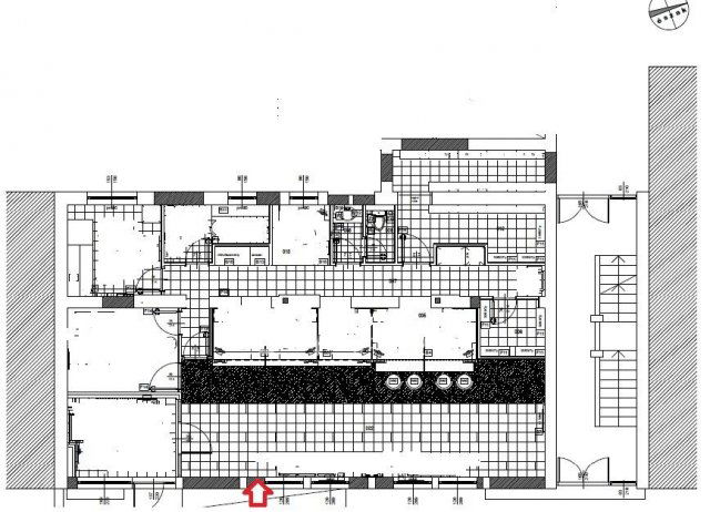
Eladó iroda leírása

Eladó ingatlan Letenye központjában. A 133 nm-es, eddig irodaként működő helyiség jó infrastrukturális ellátottságú, közintézmények, kereskedelmi és szolgáltató létesítmények között található. Az ingatlan üzlethelyiség besorolású jelenleg. Letenye határváros Horvátországgal. Autópálya összeköttetéssel rendelkezik, mind Budapest, mind az Adriai térség irányában is. Kiváló adottságokkal rendelkezik megközelíthetőség és parkolási lehetőség figyelembevételével. Megközelíthető személy- és tehergépjárművekkel, illetve tömegközlekedéssel (buszmegálló 50 m) is. A parkolás ingyenes az ingatlan előtt található, közterületen kialakított parkolóban. Az üzlet az épület földszintjén helyezkedik el, közvetlen utcafronti bejárattal. Az épület 1970-es években épült, tégla falazatú, vasbeton födémes, nyeregtetős épület, síkpala fedéssel. Korábban bankfiókként működött az épület Az ingatlan legutóbb 2010-ben került teljes felújításra, 2019-ben új kazán és villanybojler került beépítésre. A külső nyílászárók műanyag szerkezetű, hőszigetelt ablakok, üvegportálok, az utcafronti bejárati ajtó megerősített, a belső nyílászárók fa szerkezetűek. A falak festettek, a vizes helyiségek csempézettek, álmennyezet van, a padlóburkolat kerámia és szőnyegpadló jó állapottal. Közművek közül víz, gáz, villany van az ingatlanrészben. A fűtést kombi cirkó kazán szolgáltatja radiátoros hőleadók segítségével, a meleg vízellátást villanybojler biztosítja. A helyiségek klímaberendezéssel felszereltek és a riasztó- és tűzjelző berendezésekhez a vezetékezés kiépített. Közmű fogyasztás egyedi mérőórákkal regisztrált.

Hirdetés feltöltve: 2025. 11. 28. Utoljára módosítva: 2026. 01. 13.

Az ingatlan elhelyezkedése

Cím: Letenye

Eladó ingatlanok a környékről

Eladó iroda
Eladó iroda

Zalaegerszeg

170 M Ft
11018 m²
384 m2
Eladó téglalakás
Eladó téglalakás

Keszthely, Entz Géza sétány 11-13

99.5 M Ft
3 szoba
76 m2
Eladó családi ház
Eladó családi ház

Bagod

52 M Ft
2 + 2 szoba
112 m2
Eladó családi ház
Eladó családi ház

Zalaszentmihály

49 M Ft
3 szoba
90 m2
Eladó iroda
Eladó iroda

Zalaegerszeg

50.7 M Ft
145 m2
Eladó iroda
Eladó iroda

Zalakomár, Petőfi Sándor utca

30.36 M Ft
1 szoba
193 m2
Eladó családi ház
Eladó családi ház

Nemesapáti

18.5 M Ft
3 szoba
80 m2
Eladó családi ház
Eladó családi ház

Lispeszentadorján

8.5 M Ft
3 szoba
80 m2
Eladó családi ház
Eladó családi ház

Zalakaros

109.9 M Ft
3 szoba
136 m2
Eladó téglalakás
Eladó téglalakás

Keszthely, Entz Géza sétány 11-13

168 M Ft
4 szoba
121 m2
Eladó hotel
Eladó hotel

Misefa

820 M Ft
20 szoba
1649 m2
Eladó téglalakás
Eladó téglalakás

Nagykanizsa

42.99 M Ft
2 szoba
68 m2
Eladó téglalakás
Eladó téglalakás

Zalaegerszeg

65 M Ft
2 szoba
65 m2
Eladó családi ház
Eladó családi ház

Türje

34.99 M Ft
2 szoba
87 m2
Eladó iroda
Eladó iroda

Nagykanizsa

350 M Ft
5000 m2
Eladó téglalakás
Eladó téglalakás

Keszthely, Entz Géza sétány 11-13

340.4 M Ft
4 szoba
150 m2
Eladó téglalakás
Eladó téglalakás

Nagykanizsa

40.5 M Ft
3 szoba
62 m2
Eladó iroda
Eladó iroda

Letenye

28.67 M Ft
133 m2
Eladó iroda
Eladó iroda

Zalaapáti, Jókai Mór utca

100 M Ft
942 m2
Eladó téglalakás
Eladó téglalakás

Zalaegerszeg

69.5 M Ft
3 szoba
76 m2
Eladó nyaraló
Eladó nyaraló

Zalakaros

73 M Ft
3 szoba
68 m2
Eladó iroda
Eladó iroda

Keszthely

48.75 M Ft
2 szoba
38 m2
Eladó családi ház
Eladó családi ház

Lenti

4.5 M Ft
2 szoba
23 m2
Eladó téglalakás
Eladó téglalakás

Zalaegerszeg, Kossuth Lajos utca

34.85 M Ft
2 szoba
63 m2

Falusi CSOK ingatlanok

Eladó családi ház
Eladó családi ház

Balatonkeresztúr, Berek utca

149 M Ft
4 szoba
185 m2
Eladó téglalakás
Eladó téglalakás

Herend

63 M Ft
3 szoba
69 m2
Eladó családi ház
Eladó családi ház

Devecser

18.9 M Ft
2 + 1 szoba
57 m2
Eladó családi ház
Eladó családi ház

Tapsony

23.8 M Ft
3 szoba
130 m2
Eladó családi ház
Eladó családi ház

Nagyhegyes

80 M Ft
2 szoba
94 m2
Eladó családi ház
Eladó családi ház

Fonyód

89.9 M Ft
7 szoba
151 m2
Eladó családi ház
Eladó családi ház

Badacsonytördemic

180.95 M Ft
4 szoba
160 m2
Eladó családi ház
Eladó családi ház

Újszilvás

5.9 M Ft
1 szoba
31 m2

Falusi CSOK ingatlanok

Eladó családi ház
Eladó családi ház

Vilonya

350 M Ft
3 szoba
850 m2
Eladó családi ház
Eladó családi ház

Kislőd

53.2 M Ft
3 szoba
86 m2
Eladó családi ház
Eladó családi ház

Somogygeszti

10.9 M Ft
2 szoba
115 m2
Eladó családi ház
Eladó családi ház

Gáborján

5.5 M Ft
2 szoba
68 m2
Eladó családi ház
Eladó családi ház

Halogy

6.9 M Ft
2 szoba
53 m2
Eladó családi ház
Eladó családi ház

Újszilvás

5.9 M Ft
1 szoba
31 m2
Eladó téglalakás
Eladó téglalakás

Balatonszemes

119.9 M Ft
2 szoba
81 m2
Eladó családi ház
Eladó családi ház

Bugac

34.4 M Ft
3 szoba
70 m2