City Pearl

Eladó családi ház
Bocfölde

+ 10 kép 1/13
139 000 000 Ft139 M Ft 507 299 Ft/m2
4 szoba
274 m²
építés éve:2026

Részletes adatok

Telekméret: 1011 m2
Fűtés: Egyéb
Parkolás: Garázs
Energetikai besorolás: Nem adta meg a hirdető

Az OTP Bank lakáshitel ajánlataFizetett hirdetés

+36 70 883
Juhász Judit
referens

Érdekel az OTP Bank kedvezményes lakáshitel ajánlata? *

* A kérdésre „Igen” válasz bejelölése esetén, az „Üzenet küldése” gombra kattintva kijelentem, hogy az OTP Bank Nyrt. Adatkezelési tájékoztatójának tartalmát megismertem és tudomásul vettem.

Eladó családi ház leírása

PANORÁMÁS, PRÉMIUM, ÚJ ÉPÍTÉSŰ CSALÁDI HÁZ BOCFÖLDÉN – ZALAEGERSZEGTŐL PÁR PERCRE!

Van az a pillanat, amikor egy kilátás mindent eldönt.
Ez az otthon pontosan ilyen.

Bocfölde egyik legszebb, panorámás részén, csendes, zöld környezetben épül ez a modern, új építésű családi ház, amely tökéletes egyensúlyt teremt a nyugalom és a város közelsége között. Zalaegerszeg mindössze néhány perc autóval, mégis egy teljesen más, nyugodtabb világba érkezünk haza minden nap.

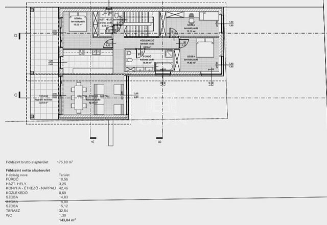
A 1011 m²-es telken megvalósuló, 216 m²-es otthon minden részlete a kényelmes, élhető családi életet szolgálja. A két szinten kialakított elrendezés átgondolt, a terek világosak, jól használhatók, és természetes kapcsolatban állnak a környezettel.

A felső lakószinten egy tágas, amerikai konyhás nappali–étkező fogad, amely a családi élet központja. Innen nyílik a 32 m²-es panorámás terasz, amely nem csupán egy kültéri tér, hanem az ingatlan egyik legnagyobb értéke – egy hely, ahol a reggelek nyugalomban indulnak, az esték pedig különleges hangulatban telnek.

A három külön nyíló hálószoba kényelmes privát teret biztosít, míg a fürdőszoba, háztartási helyiség és külön toalett a mindennapi praktikumot szolgálják.

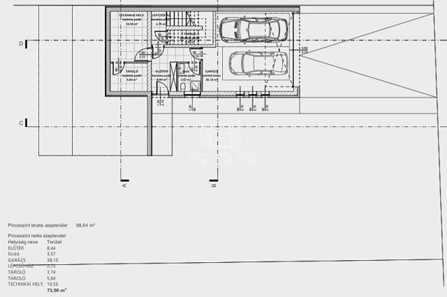
Az alsó szinten található 38 m²-es dupla garázs, valamint további helyiségek – előtér, fürdő, tárolók és gépészet – biztosítják a funkcionalitást és a rendezett életteret.

MODERN MŰSZAKI TARTALOM

Az ingatlan korszerű, időtálló megoldásokkal épül:

-30 cm Porotherm falazat
20 cm homlokzati szigetelés
-hőszivattyús fűtés padlófűtéssel
-háromrétegű nyílászárók
-betonfödém
-antracit tetőcserép.

Ez a műszaki háttér nemcsak kényelmet, hanem hosszú távon gazdaságos fenntarthatóságot is biztosít.

EGYEDI LEHETŐSÉG

Az ingatlan jelenleg kivitelezés alatt áll, így még lehetőség van arra, hogy az új tulajdonos bizonyos belső kialakítási elemeket saját igényeire szabjon. Ez ritka lehetőség egy ilyen adottságú, panorámás új építésű ingatlan esetében.

ELHELYEZKEDÉS
csendes, panorámás környezet
családias, rendezett utca
Zalaegerszeg pár perc alatt elérhető

FŐBB ADATOK
Telek: 1011 m²
Lakóterület: 216 m²
Nappali + 3 hálószoba
32 m² panorámás terasz
38 m² dupla garázs
Új építés, modern gépészet

Ez az ingatlan ideális választás azoknak, akik nem szeretnének kompromisszumot kötni: panoráma, nyugalom, modern technológia és városközeli elhelyezkedés egyetlen otthonban.

Irányár: 139 000 000 Ft

Részletes műszaki tartalommal, aktuális készültségi szinttel és személyes megtekintéssel kapcsolatban keressen bizalommal.

A vásárlás teljes folyamatában támogatást nyújtok, beleértve a finanszírozást, jogi hátteret és igény esetén a belső kialakítás szakmai támogatását is. ...TOVÁBBI, TÖBBEZRES INGATLAN KÍNÁLAT: www.gdn-ingatlan.hu - GDN azonosító: 394145

Hirdetés feltöltve: 2026. 04. 01. Utoljára módosítva: 2026. 04. 01.

Az ingatlan elhelyezkedése

Cím: Bocfölde

Eladó ingatlanok a környékről

Zalaegerszeg
Eladó téglalakás

Zalaegerszeg

25.5 M Ft
1 + 1 szoba
42 m²
Cserszegtomaj
Eladó családi ház

Cserszegtomaj

420 M Ft
4 + 1 szoba
338 m²
Bocfölde
Eladó családi ház

Bocfölde

109.9 M Ft
6 szoba
360 m²
Balatongyörök
Eladó családi ház

Balatongyörök

89.8 M Ft
5 szoba
140 m²
Zalaegerszeg
Eladó nyaraló

Zalaegerszeg

25.9 M Ft
2 + 2 szoba
90 m²
Gellénháza
Eladó családi ház

Gellénháza

29.9 M Ft
2 szoba
65 m²
Zalaegerszeg
Eladó téglalakás

Zalaegerszeg

114 M Ft
3 + 2 szoba
114 m²
Nagykanizsa, Csengery
Eladó családi ház

Nagykanizsa

65.9 M Ft
4 szoba
231 m²
Cserszegtomaj
Eladó családi ház

Cserszegtomaj

175 M Ft
3 szoba
140 m²
Kehidakustány
Eladó telek

Kehidakustány

39.9 M Ft
2244 m²
0 m²
Gyenesdiás
Eladó családi ház

Gyenesdiás

95 M Ft
4 szoba
140 m²
Hévíz
Eladó téglalakás

Hévíz

139.698 M Ft
2 szoba
54 m²
Bocfölde
Eladó családi ház

Bocfölde

109.9 M Ft
6 szoba
360 m²
Zalaszentgrót
Eladó családi ház

Zalaszentgrót

12.9 M Ft
2 szoba
80 m²
Bak
Eladó családi ház

Bak

19 M Ft
2000 m²
90 m²
Hévíz
Eladó téglalakás

Hévíz

54.29 M Ft
1 + 1 szoba
49 m²
Nagykanizsa
Eladó családi ház

Nagykanizsa

299 M Ft
7 szoba
1800 m²
Zalaegerszeg
Eladó családi ház

Zalaegerszeg

200 M Ft
7 szoba
355 m²
Hévíz
Eladó téglalakás

Hévíz

74.522 M Ft
2 szoba
45 m²
Keszthely
Eladó panellakás

Keszthely

61.9 M Ft
3 szoba
70 m²
Bocfölde
Eladó családi ház

Bocfölde

139 M Ft
4 szoba
216 m²
Hévíz
Eladó családi ház

Hévíz

80 M Ft
5 + 3 szoba
275 m²
Cserszegtomaj, Sümegi 113
Eladó telek

Cserszegtomaj

19.9 M Ft
2381 m²
0 m²
Hévíz
Eladó téglalakás

Hévíz

67.81 M Ft
2 szoba
45 m²

Falusi CSOK ingatlanok

Bag
Eladó családi ház

Bag

16.9 M Ft
6 szoba
160 m²
Ostffyasszonyfa
Eladó családi ház

Ostffyasszonyfa

37.9 M Ft
5 szoba
494 m²
Berzence, Mátyás utca
Eladó családi ház

Berzence

26.8 M Ft
3 szoba
94 m²
Zalavár
Eladó családi ház

Zalavár

65 M Ft
2 + 1 szoba
100 m²
Szentmártonkáta
Eladó családi ház

Szentmártonkáta

51.9 M Ft
5 szoba
150 m²
Mikepércs
Eladó sorház

Mikepércs

700 M Ft
45 szoba
1150 m²
Csemő
Eladó családi ház

Csemő

61.9 M Ft
3 szoba
88 m²
Bozsok
Eladó családi ház

Bozsok

290 M Ft
6 szoba
370 m²