Eladó ipari ingatlan
Múcsony, 2605, földszint

Figyelem!

Ez az ingatlan a 2019.07.01-től induló falusi CSOK által támogatott településen található

+ 10 kép 1/13
85 000 000 Ft85 M Ft 118 056 Ft/m2
5 szoba
720 m2
földszint
építés éve:2015

Részletes adatok

Állapot: Újszerű
Telekméret: 2827 m2
Fűtés: Gázkazán
Parkolás: Garázs, Kocsibeálló
Közmű: Víz, Gáz, Villany, Csatorna
Energetikai besorolás: Nem adta meg a hirdető

Az OTP Bank lakáshitel ajánlataFizetett hirdetés

+36 70 326
Ingatlanmérték.hu
Ingatlanmérték.hu

Érdekel az OTP Bank kedvezményes lakáshitel ajánlata? *

* A kérdésre „Igen” válasz bejelölése esetén, az „Üzenet küldése” gombra kattintva kijelentem, hogy az OTP Bank Nyrt. Adatkezelési tájékoztatójának tartalmát megismertem és tudomásul vettem.

Eladó ipari ingatlan leírása

Múcsony külterületi részén, közvetlenül a főút mellett kínálunk megvételre egy összközművesített, ipari árammal ellátott telephelyet, amely ideális választás vállalkozások számára.
A telephely azonnal költözhető.

Főbb paraméterek:
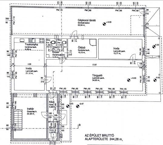
• Telek mérete: 2827 m²
• Irodaépület: 260 m²
• Könnyűszerkezetes csarnok: 300 m², rugalmasan hasznosítható
• Fedett beálló: 160 m² az udvaron
• Teljes közművesítettség, ipari áram
• Kiváló megközelíthetőség, közvetlen főúti kapcsolat

A telephely széles körű felhasználási lehetőséget kínál: kereskedelmi, ipari vagy logisztikai tevékenységre egyaránt alkalmas.

Ha olyan telephelyet keres, amely azonnal használatba vehető, jól megközelíthető és biztos hátteret nyújt vállalkozása számára, ez az ingatlan tökéletes választás!

Hirdetés feltöltve: 2025. 10. 05. Utoljára módosítva: 2025. 10. 05.

Az ingatlan elhelyezkedése

Cím: Múcsony, 2605, földszint

Eladó ingatlanok a környékről

Eladó családi ház
Eladó családi ház

Edelény, Finkei

35 M Ft
4 szoba
174 m2
Eladó ipari ingatlan
Eladó ipari ingatlan

Sátoraljaújhely, Dózsa György utca

600 M Ft
11784 m2
Eladó családi ház
Eladó családi ház

Miskolc

85 M Ft
14 szoba
440 m2
Eladó téglalakás
Eladó téglalakás

Miskolc

20.9 M Ft
1 szoba
36 m2
Eladó ipari ingatlan
Eladó ipari ingatlan

Miskolc

155 M Ft
5716 m²
1467 m2
Eladó téglalakás
Eladó téglalakás

Miskolc

31.5 M Ft
2 + 1 szoba
55 m2
Eladó ipari ingatlan
Eladó ipari ingatlan

Miskolc

85 M Ft
14 szoba
440 m2
Eladó téglalakás
Eladó téglalakás

Miskolc

19.5 M Ft
1 szoba
28 m2
Eladó családi ház
Eladó családi ház

Mezőkövesd

59 M Ft
5 szoba
212 m2
Eladó családi ház
Eladó családi ház

Sajólád

45 M Ft
3 szoba
89 m2
Eladó családi ház
Eladó családi ház

Ózd, Susa út

5.5 M Ft
1 + 1 szoba
49 m2
Eladó családi ház
Eladó családi ház

Ózd, Ráctag, Mogyorós völgy

21 M Ft
3 szoba
86 m2
Eladó ipari ingatlan
Eladó ipari ingatlan

Bánréve, Kossuth Lajos utca

34.845 M Ft
389 m2
Eladó téglalakás
Eladó téglalakás

Miskolc

85 M Ft
14 szoba
440 m2
Eladó téglalakás
Eladó téglalakás

Ózd, Munkás út

7.5 M Ft
1 + 1 szoba
50 m2
Eladó ipari ingatlan
Eladó ipari ingatlan

Rudabánya, 501 hrsz

25 M Ft
856 m²
321 m2
Eladó ipari ingatlan
Eladó ipari ingatlan

Sárazsadány

350 M Ft
11655 m²
190 m2
Eladó ipari ingatlan
Eladó ipari ingatlan

Ózd

49.9 M Ft
955 m²
360 m2
Eladó üzlethelyiség
Eladó üzlethelyiség

Miskolc

64.9 M Ft
181 m2
Eladó ipari ingatlan
Eladó ipari ingatlan

Miskolc

695 M Ft
14000 m²
1212 m2
Eladó téglalakás
Eladó téglalakás

Ózd, Munkás út

7.5 M Ft
1 + 1 szoba
50 m2
Eladó téglalakás
Eladó téglalakás

Miskolc

31.5 M Ft
2 + 1 szoba
55 m2
Eladó iroda
Eladó iroda

Miskolc

85 M Ft
14 szoba
440 m2
Eladó ikerház
Eladó ikerház

Kistokaj

100 M Ft
3 szoba
136 m2

Falusi CSOK ingatlanok

Eladó családi ház
Eladó családi ház

Monyoród

24.4 M Ft
117 + 3 szoba
117 m2
Eladó családi ház
Eladó családi ház

Ceglédbercel

63 M Ft
3 szoba
70 m2
Eladó családi ház
Eladó családi ház

Nádasdladány

45.9 M Ft
1 + 1 szoba
50 m2
Eladó családi ház
Eladó családi ház

Szob, Petőfi Sándor utca

23.5 M Ft
2 szoba
68 m2
Eladó családi ház
Eladó családi ház

Hernádnémeti

19.9 M Ft
2 szoba
62 m2
Eladó családi ház
Eladó családi ház

Újszilvás

34.9 M Ft
3 szoba
66 m2
Eladó családi ház
Eladó családi ház

Ugod

53.8 M Ft
3 szoba
137 m2
Eladó családi ház
Eladó családi ház

Koppányszántó, Fő u 211

9.9 M Ft
2 szoba
55 m2

Falusi CSOK ingatlanok

Eladó családi ház
Eladó családi ház

Nagyalásony

19.5 M Ft
3 szoba
90 m2
Eladó ikerház
Eladó ikerház

Győrság

54.95 M Ft
3 szoba
72 m2
Eladó családi ház
Eladó családi ház

Somogyszob

5.9 M Ft
3 szoba
75 m2
Eladó családi ház
Eladó családi ház

Fonyód

79.9 M Ft
7 szoba
149 m2
Eladó családi ház
Eladó családi ház

Újszilvás

34.9 M Ft
3 szoba
66 m2
Eladó családi ház
Eladó családi ház

Mezőgyán, Árpád utca 48.

2.55 M Ft
1 + 1 szoba
107 m2
Eladó családi ház
Eladó családi ház

Ceglédbercel

63 M Ft
3 szoba
70 m2
Eladó családi ház
Eladó családi ház

Balatonőszöd

55 M Ft
5 szoba
148 m2