Eladó ipari ingatlan
Kecskemét 
Részletes adatok
Az OTP Bank lakáshitel ajánlataFizetett hirdetés
Induló törlesztőrészlet
101 262 Ft /hóTörlesztőrészlet a 13. hónaptól
129 106 Ft /hóInduló törlesztőrészlet
135 016 Ft /hóTörlesztőrészlet a 13. hónaptól
172 142 Ft /hóA tájékoztatás nem teljes körű és nem minősül ajánlattételnek. Az OTP Évnyerő Lakáshitelei 1 éves türelmi idős kölcsönök, amellyel az első 12 hónapban alacsonyabb a havi törlesztőrészlet. A tőke törlesztését a 13. hónaptól kell megkezdeni.
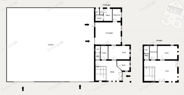
Eladó ipari ingatlan leírása
Kecskeméten 540 m2-es ipari használatú épület 1457 m2-es telken eladó!
Jellemzők:
	540 m2 felépítmény
	2010-es építés
	kiépített informatikai, tűzjelző, telefonközpontés riasztó hálózat (optikai szálas internet kiépítve)
	összközmű
	tűzálló festékkel festett csarnokváz, Tűzi-víz csapok kiépítve, kiépített tűzoltósági távfelügyelet
	2 db videó kaputelefon
	elektromos személy illetve toló kapu
	automata öntöző rendszer
	parkosított udvar
	műanyag nyílászárók, UVálló védő fóliával ellátva
	2 tea konyha
	kiépített öltöző, fürdővel
	bemutató/csomagoló terem
	4 iroda
	Hörmann és Tormax kapuk a csarnokon
	csarnokba további öltöző létesítési lehetőség
	18 cm vastag ipari beton a csarnokban
	központi szünetmentes áramforrás rendszer kiépítve (készülék nélkül)
	elektromos rejtett redőny előkészítve
	klimatizált irodák
	térköves udvar
	lehajtható zászló rudak az udvarban
	elektromos áram bővítési lehetőség
	6 parkoló
	Teherautóval könnyen megközelíthető 
Figyelem az adatlap megbízóinktól kapott adatok
alapján készült, pontosságáért felelősséget
nem tudunk vállalni!
A HOUSE36 kínálatában található összes ingatlannal
kapcsolatban tudok felvilágosítást nyújtani! Hívjon bizalommal! Szolgáltatásaink Kereső ügyfeleink számára ingyenesek!
Az iroda legfrissebb, aktuális kínálatát a HOUSE36 saját weboldalán találja!
Hirdetés feltöltve: 2025. 10. 31. Utoljára módosítva: 2025. 10. 31.
Ipari ingatlanok ára Kecskeméten
Ebből az összehasonlításból megtudhatod, hogyan viszonyul a lakás ára a környékbeli ipari ingatlanok átlagos árához. Ez nem azt jelenti, hogy ennyivel olcsóbb vagy drágább, mint amennyit a lakás ér, hanem hogy ennyivel tér el a környékbeli átlagtól.
Az ingatlan elhelyezkedése
Cím: Kecskemét
 
 
 
 
 
 
 
 
 
 
 
 
 
 
 
 
 
 
 
 
 
 
 
 
 
 
 
 
 
 
 
