Aerogate Homes

Eladó ipari ingatlan
Kazincbarcika, Tardonai út

+ 17 kép 1/20
85 000 000 Ft85 M Ft 35 417 Ft/m2
2400 m²

Részletes adatok

Állapot: Felújítandó
Telekméret: 86500 m2
Fűtés: Egyéb
Közmű: Gáz
Energetikai besorolás: Nem adta meg a hirdető

Az OTP Bank lakáshitel ajánlataFizetett hirdetés

+36 20 522
Sztari Milán
Északi Ingatlaniroda

Érdekel az OTP Bank kedvezményes lakáshitel ajánlata? *

* A kérdésre „Igen” válasz bejelölése esetén, az „Üzenet küldése” gombra kattintva kijelentem, hogy az OTP Bank Nyrt. Adatkezelési tájékoztatójának tartalmát megismertem és tudomásul vettem.

Eladó ipari ingatlan leírása

Hivatkozási szám: SM0012
Kazincbarcikán, a Herbolya városrészben eladó a „régi bányaépületként” ismert, rendkívüli adottságokkal rendelkező ipari ingatlan!

A teljes terület- 86500 m2- több helyrajzi számon szerepel:
• 32 751 m² – kivett lakóház és udvar
• 675 m² – kivett udvar
• valamint további területek (meddőhányóval együtt összesen: 8650 m²)

Elhelyezkedés:
• Aszfaltos úton megközelíthető
• Buszmegálló közvetlen közelben

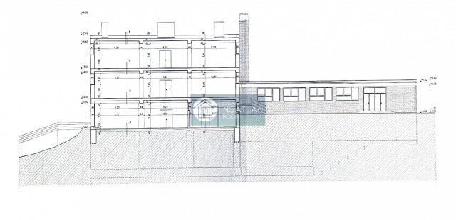
Az épületek összes alapterülete kb. 2400 m², masszív, vasbeton vázas szerkezettel.

Főbb jellemzők:
• 3 szintes főépület, szintenként ~600 m²-es csarnokokkal
• 2,8 m belmagasság
• „L” alakú, 2 szintes melléképület (iroda, rendelő, műhely funkciókkal)
• Portásfülke + külön 3 állásos garázs
• További garázs/tároló a főépület alatt
• Könnyűszerkezetes ipari épület (korábban homokszóró műhely)

Műszaki adatok:
• Szerkezet: vasbeton váz, tégla kitöltéssel
• Villany és víz bevezetve
• Saját szennyvíz derítő
• Saját 15–20 m³-es gáztartály
• Részben gázcirkó fűtés
• Felújítandó állapot (tető felújítása kiemelten szükséges)

Környezet:
• Az ingatlan egyik oldala a Tardona-patakkal határos
• Természetközeli, erdővel övezett terület
• A meddőhányó jelenleg akácfával benőtt, amely további hasznosítási lehetőségeket kínál

Az ingatlan mérete és elrendezése rendkívül sokoldalú.
Meddőhányó hasznosítási lehetőségek:

• Ipari vagy mezőgazdasági területként hasznosítható
• Napelempark vagy energiaprojekt kialakítására alkalmas
• Fakitermelés (akác) és biomassza hasznosítás
• Rekultiváció után parkosítás, zöldövezet vagy rekreációs terület
• Extrém sportpálya (pl. motocross, downhill, airsoft pálya)
• Logisztikai vagy tárolási célú bővítési terület

Épületek hasznosítási lehetőségei:

• Ipari vagy logisztikai telephely
• Raktárbázis vagy gyártóüzem
• Munkásszálló / apartmanház (kb. 80 db ~20 m²-es egység kialakítható, jelenleg 11 szoba van kialakítva)
• Loft lakások és kreatív műhelyek
• Idősek otthona vagy szociális intézmény
• Rendezvény- vagy tréningközpont
• Sport- és rekreációs létesítmény
• Filmforgatási helyszín / kreatív ipari tér

Az ingatlan kiváló lehetőség befektetők számára, akik nagy volumenű, egyedi projektben gondolkodnak.
Hívjon ha kérdése van, ha szeretné megtekinteni!

Hirdetés feltöltve: 2026. 04. 03. Utoljára módosítva: 2026. 05. 10.

Az ingatlan elhelyezkedése

Cím: Kazincbarcika, Tardonai út

Eladó ingatlanok a környékről

Miskolc, Komlóstető, Ládi telep
Eladó téglalakás

Miskolc

26.9 M Ft
2 szoba
52 m²
Ózd
Eladó családi ház

Ózd

9.99 M Ft
4 szoba
150 m²
Rudabánya, 501 hrsz
Eladó ipari ingatlan

Rudabánya

25 M Ft
856 m²
321 m²
Miskolc
Eladó panellakás

Miskolc

31 M Ft
2 szoba
52 m²
Miskolc
Eladó ipari ingatlan

Miskolc

149 M Ft
4 szoba
463 m²
Miskolc
Eladó ipari ingatlan

Miskolc

155 M Ft
5716 m²
1467 m²
Miskolc
Eladó panellakás

Miskolc

37.9 M Ft
2 szoba
51 m²
Járdánháza
Eladó családi ház

Járdánháza

25 M Ft
5 szoba
126 m²
Miskolc
Eladó családi ház

Miskolc

161 M Ft
3 szoba
110 m²
Miskolc
Eladó téglalakás

Miskolc

26 M Ft
2 szoba
51 m²
Bükkaranyos
Eladó telek

Bükkaranyos

25.2 M Ft
820 m²
0 m²
Miskolc
Eladó panellakás

Miskolc

31.9 M Ft
1 + 1 szoba
37 m²
Felsőzsolca
Eladó ipari ingatlan

Felsőzsolca

79 M Ft
1744 m²
640 m²
Miskolc
Eladó családi ház

Miskolc

74.9 M Ft
3 szoba
80 m²
Ózd
Eladó téglalakás

Ózd

9.6 M Ft
2 szoba
49 m²
Ózd
Eladó ipari ingatlan

Ózd

49.9 M Ft
955 m²
360 m²
Miskolc, Belváros, Bajcsy-Zsilinszky út
Eladó téglalakás

Miskolc

34.5 M Ft
2 szoba
55 m²
Miskolc
Eladó téglalakás

Miskolc

17.9 M Ft
1 szoba
40 m²
Kazincbarcika
Eladó téglalakás

Kazincbarcika

16.9 M Ft
1 szoba
42 m²
Ózd
Eladó ipari ingatlan

Ózd

84.99 M Ft
1.26 ha
1187 m²
Felsőzsolca
Eladó családi ház

Felsőzsolca

124.9 M Ft
4 szoba
150 m²
Sajópetri
Eladó családi ház

Sajópetri

24.99 M Ft
3 szoba
120 m²
Alsózsolca
Eladó családi ház

Alsózsolca

56.9 M Ft
6 szoba
170 m²
Borsodnádasd
Eladó téglalakás

Borsodnádasd

6.5 M Ft
2 szoba
64 m²

Falusi CSOK ingatlanok

Hosszúpereszteg
Eladó családi ház

Hosszúpereszteg

27.9 M Ft
4 szoba
0 m²
Szigetújfalu
Eladó családi ház

Szigetújfalu

66 M Ft
3 szoba
118 m²
Sződ
Eladó családi ház

Sződ

116 M Ft
5 szoba
136 m²
Bakonycsernye
Eladó családi ház

Bakonycsernye

39 M Ft
3 szoba
350 m²
Ibafa
Eladó családi ház

Ibafa

285 M Ft
4 szoba
141 m²
Himesháza
Eladó családi ház

Himesháza

30 M Ft
3 szoba
92 m²
Halimba
Eladó családi ház

Halimba

59.9 M Ft
6 szoba
182 m²
Győrság
Eladó családi ház

Győrság

79.9 M Ft
4 szoba
92 m²