Astora Márvány8

Eladó ipari ingatlan
Gerjen

Figyelem!

Ez az ingatlan a 2019.07.01-től induló falusi CSOK által támogatott településen található

+ 5 kép 1/8
75 000 000 Ft75 M Ft 216 138 Ft/m2
347 m²

Részletes adatok

Fűtés: Egyéb
Energetikai besorolás: Nem adta meg a hirdető

Az OTP Bank lakáshitel ajánlataFizetett hirdetés

+36 70 409
Kecskés Imola
HOUSE36 Ingatlanbázis Kft.

Érdekel az OTP Bank kedvezményes lakáshitel ajánlata? *

* A kérdésre „Igen” válasz bejelölése esetén, az „Üzenet küldése” gombra kattintva kijelentem, hogy az OTP Bank Nyrt. Adatkezelési tájékoztatójának tartalmát megismertem és tudomásul vettem.

Eladó ipari ingatlan leírása

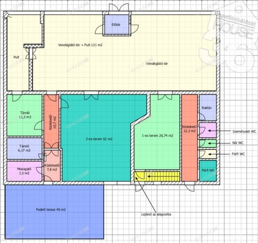
Tökéletes befektetés azok számára, akik a fejlődő Gerjenben szeretnének üzletet nyitni! Ez a 347 m2-es 2 szintes ( földszint, alagsor) ingatlan 560 m2-es telken helyezkedik el a falu központjában.

Főbb jellemzők:
-kiemelt elhelyezkedés a paksi beruházások és a Kalocsa-Gerjen híd miatt
-121 m2-es vendéglátó tér és további, külön megközelíthető privát termek (27 m2 és 52 m2)
- további helyiségek: raktár, konyha, személyzeti és vendég WC-k, mosogató
-75 m2-es alagsor kazánházzal és raktárhelyiségekkel
-fűtése vegyes tüzelésű kazánról és gázkazánról, melegvíz ellátása gázbojlerrel biztosított
-2 db hűtő-fűtő klíma (2022-ben beszerelve)
-nyílászárói műanyagszerkezet, hőszigetelő üvegezéssel
-teljes felszereléssel együtt megvásárolható (hűtőkamra, hűtőpult, stb.)
-mobilgarázs az udvaron, benne a vételárban!

Az ingatlan ideális vendéglátó egység, rendezvényközpont vagy más üzleti célra.

A HOUSE36 kínálatában található összes ingatlannal kapcsolatban tudok felvilágosítást nyújtani!

További képekért és információért hívjon bizalommal!
Szolgáltatásaink Kereső ügyfeleink számára INGYENESEK!
Az iroda legfrissebb, aktuális kínálatát a HOUSE36 saját weboldalán találja!

Hirdetés feltöltve: 2026. 04. 09. Utoljára módosítva: 2026. 04. 09.

Az ingatlan elhelyezkedése

Cím: Gerjen

Eladó ingatlanok a környékről

Dunaföldvár
Eladó családi ház

Dunaföldvár

14.5 M Ft
3 szoba
78 m²
Tolna
Eladó családi ház

Tolna

37 M Ft
4 szoba
110 m²
Bonyhád, Perczel Mór u. 66
Eladó családi ház

Bonyhád

51.9 M Ft
4 szoba
150 m²
Bátaszék
Eladó családi ház

Bátaszék

15.9 M Ft
2 szoba
71 m²
Kajdacs
Eladó ipari ingatlan

Kajdacs

99.99 M Ft
800 m²
Hőgyész
Eladó ipari ingatlan

Hőgyész

64 M Ft
8992 m²
1048 m²
Paks
Eladó ipari ingatlan

Paks

580 M Ft
797 m²
520 m²
Bátaszék
Eladó ipari ingatlan

Bátaszék

149.9 M Ft
3325 m²
Zomba, Kossuth Lajos utca
Eladó ipari ingatlan

Zomba

129 M Ft
980 m²
Paks
Eladó téglalakás

Paks

48.5 M Ft
2 szoba
77 m²
Bölcske
Eladó családi ház

Bölcske

34.5 M Ft
2 szoba
100 m²
Csibrák
Eladó családi ház

Csibrák

9.9 M Ft
1 szoba
47 m²
Hőgyész
Eladó ipari ingatlan

Hőgyész

64 M Ft
8992 m²
1070 m²
Bátaszék
Eladó ipari ingatlan

Bátaszék

19.9 M Ft
1033 m²
109 m²
Simontornya
Eladó ipari ingatlan

Simontornya

169 M Ft
1000 m²
Dombóvár, Nincs utca
Eladó mezogazdasagi ingatlan

Dombóvár

9.5 M Ft
1 szoba
20 m²
Tamási
Eladó ipari ingatlan

Tamási

51.5 M Ft
750 m²
750 m²
Szekszárd, Újváros, Kiss János
Eladó családi ház

Szekszárd

70 M Ft
2 szoba
77 m²
Szekszárd
Eladó telek

Szekszárd

32.5 M Ft
7586 m²
0 m²
Dunaföldvár
Eladó ikerház

Dunaföldvár

29.9 M Ft
3 szoba
68 m²
Simontornya
Eladó garázs

Simontornya

2.5 M Ft
14 m²
Kaposszekcső
Eladó panellakás

Kaposszekcső

22 M Ft
2 szoba
54 m²
Bátaszék
Eladó ipari ingatlan

Bátaszék

149.9 M Ft
3325 m²
Paks, Kölesdi út
Eladó ipari ingatlan

Paks

220 M Ft
275 m²

Falusi CSOK ingatlanok

Kerkabarabás
Eladó családi ház

Kerkabarabás

28 M Ft
2 + 1 szoba
0 m²
Gádoros
Eladó családi ház

Gádoros

25.5 M Ft
4 szoba
140 m²
Bag
Eladó családi ház

Bag

16.9 M Ft
6 szoba
160 m²
Bag
Eladó családi ház

Bag

110 M Ft
5 szoba
320 m²
Magyarszék
Eladó családi ház

Magyarszék

48.5 M Ft
3 + 1 szoba
86 m²
Ásványráró
Eladó családi ház

Ásványráró

42.5 M Ft
703 m²
69 m²
Tápióbicske
Eladó családi ház

Tápióbicske

83 M Ft
3 szoba
160 m²
Balatonakali
Eladó ikerház

Balatonakali

560 M Ft
4 szoba
140 m²

Falusi CSOK ingatlanok

Bőny
Eladó sorház

Bőny

37.8 M Ft
3 szoba
63 m²
Ivánc
Eladó családi ház

Ivánc

20.6 M Ft
2 szoba
0 m²
Gönyű
Eladó családi ház

Gönyű

111.951 M Ft
5 szoba
105 m²
Homokbödöge
Eladó családi ház

Homokbödöge

47.9 M Ft
4 + 1 szoba
167 m²
Bag
Eladó családi ház

Bag

16.9 M Ft
6 szoba
160 m²
Herend
Eladó családi ház

Herend

114.3 M Ft
5 szoba
108 m²
Fonyód, Virág utca
Eladó ikerház

Fonyód

58.9 M Ft
2 szoba
36 m²
Földeák, Béke utca
Eladó családi ház

Földeák

86 M Ft
7 szoba
357 m²