NapForrás 20 - Buda

Eladó ipari ingatlan
Diósd

+ 17 kép 1/20
240 000 000 Ft240 M Ft 443 623 Ft/m2
541 m2
építés éve:2002

Részletes adatok

Telekméret: 1509 m2
Fűtés: Egyéb
Energetikai besorolás: Nem adta meg a hirdető

Az OTP Bank lakáshitel ajánlataFizetett hirdetés

+36 70 455
Szlovák Ibolya
Csongrád OTP Ingatlanpont Iroda

Érdekel az OTP Bank kedvezményes lakáshitel ajánlata? *

* A kérdésre „Igen” válasz bejelölése esetén, az „Üzenet küldése” gombra kattintva kijelentem, hogy az OTP Bank Nyrt. Adatkezelési tájékoztatójának tartalmát megismertem és tudomásul vettem.

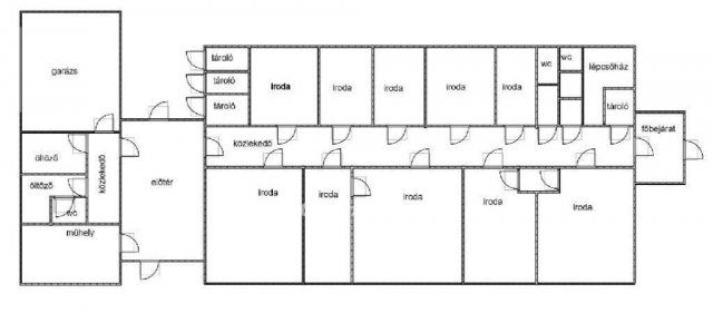
Eladó ipari ingatlan leírása

*** Csak az OTP Ingatlanpont kínálatában! *** Diósdon a 7-es főúttól pár percre, csendes, családias környezetben egy 1509 m2-es sík, körbekerített telken, 541 m2-es 2002. évi építésű, újszerű; családi házjellegű, belső két szintes épület ELADÓ!

Az ingatlan jó műszaki, esztétikai állapotú. Az épület különálló mérőórákkal felszerelt. Az épület hátsó részében egy 28 m2-es fűtött garázs áll rendelkezésre, valamint az épület mögött a telken, 6-8 helyes parkoló helyezkedik el, továbbá a telek előtt az utcán 3 autó is meg tud állni. Két fő épületrészből álló ingatlant kínálunk megvételre az M0 autóút közelségében, mégis csendes helyen. 450 m2-es kétszintes középfolyosós főépületből és 91 m2-es szociális és garázs blokkból áll. 2 kazán látja el az ingatlan fűtését. 3x80 A áram van bekötve.

Két éve nincs használatban, laborként üzemelt. Az ingatlan könnyen más funkcióra is átalakítható, jól hasznosítható. Az ingatlan jelenleg üres. Ár 240.000.000.-Ft+áfa.

Az OTP Bankcsoport teljes körű ügyintézéssel áll az eladók és a vevők rendelkezésére! A kínálatunkból választott ingatlan finanszírozásához kedvezményes hitel konstrukciókat kínálunk. Legújabb szolgáltatásként ajánlom minden kedves ügyfelem részére az OTP Bank által közvetített Babaváró, CSOK, vagy egyéb kölcsönök intézését. Az adásvételi szerződés megkötéséhez igény szerint megbízható ügyvédi közreműködést biztosítunk, és segítséget nyújtunk az adásvételhez kapcsolódó ügyek intézéséhez. Akár hétvégén is hívható vagyok! Amennyiben igényli, kérem küldjön sms-t és szívesen visszahívom!
Érdeklődni: Szlovák Ibolya +36704550993

Referencia szám: M318830-ZE

Hirdetés feltöltve: 2025. 12. 11. Utoljára módosítva: 2025. 12. 11.

Az ingatlan elhelyezkedése

Cím: Diósd

Eladó ingatlanok a környékről

Eladó téglalakás
Eladó téglalakás

Pomáz

119.9 M Ft
5 szoba
111 m2
Eladó ipari ingatlan
Eladó ipari ingatlan

Vác

100 M Ft
5234 m²
5234 m2
Eladó ipari ingatlan
Eladó ipari ingatlan

Újhartyán

232.524 M Ft
38754 m2
Eladó téglalakás
Eladó téglalakás

Leányfalu, 26LL9042

48 M Ft
3 szoba
126 m2
Eladó családi ház
Eladó családi ház

Nyársapát

47.9 M Ft
3 szoba
113 m2
Eladó ipari ingatlan
Eladó ipari ingatlan

Vecsés

148 M Ft
3300 m2
Eladó téglalakás
Eladó téglalakás

Kisnémedi

60 M Ft
4 szoba
118 m2
Eladó családi ház
Eladó családi ház

Üröm

88 M Ft
5 szoba
150 m2
Eladó ipari ingatlan
Eladó ipari ingatlan

Vác

779 M Ft
113817 m²
113817 m2
Eladó ipari ingatlan
Eladó ipari ingatlan

Diósd

240 M Ft
1509 m²
541 m2
Eladó ipari ingatlan
Eladó ipari ingatlan

Diósd

124.75 M Ft
194 m2
Eladó ikerház
Eladó ikerház

Kisnémedi

60 M Ft
4 szoba
118 m2
Eladó ipari ingatlan
Eladó ipari ingatlan

Felsőpakony

770 M Ft
5090 m²
2700 m2
Eladó családi ház
Eladó családi ház

Pomáz

110 M Ft
6 szoba
182 m2
Eladó ipari ingatlan
Eladó ipari ingatlan

Gyömrő

370 M Ft
7123 m²
500 m2
Eladó telek
Eladó telek

Szigetcsép

12.5 M Ft
368 m²
Eladó ipari ingatlan
Eladó ipari ingatlan

Nagykőrös

180 M Ft
32642 m²
10 m2
Eladó ipari ingatlan
Eladó ipari ingatlan

Diósd

279.691 M Ft
550 m2
Eladó családi ház
Eladó családi ház

Leányfalu

81 M Ft
4 szoba
126 m2
Eladó ipari ingatlan
Eladó ipari ingatlan

Pusztazámor, Remeteség utca

59.999 M Ft
9998 m²
9998 m2
Eladó ipari ingatlan
Eladó ipari ingatlan

Vecsés

527 M Ft
13183 m2
Eladó téglalakás
Eladó téglalakás

Pomáz

122.9 M Ft
5 szoba
115 m2
Eladó ipari ingatlan
Eladó ipari ingatlan

Inárcs

380 M Ft
1300 m2
Eladó ipari ingatlan
Eladó ipari ingatlan

Szigethalom

139 M Ft
1222 m²
950 m2

Falusi CSOK ingatlanok

Eladó családi ház
Eladó családi ház

Aszaló

16.49 M Ft
3 szoba
112 m2
Eladó családi ház
Eladó családi ház

Ipolyvece

18.9 M Ft
3 + 1 szoba
91 m2
Eladó családi ház
Eladó családi ház

Tápiógyörgye

30 M Ft
3 szoba
65 m2
Eladó családi ház
Eladó családi ház

Csurgó

10 M Ft
2 szoba
80 m2
Eladó családi ház
Eladó családi ház

Kondorfa, Alvég utca

34.9 M Ft
1 + 1 szoba
67 m2
Eladó családi ház
Eladó családi ház

Besnyő

149 M Ft
6 szoba
285 m2
Eladó családi ház
Eladó családi ház

Batyk

55 M Ft
4 szoba
159 m2
Eladó családi ház
Eladó családi ház

Iváncsa

73.9 M Ft
1 + 3 szoba
97 m2