Avico Greentop

Eladó ikerház
Veresegyház

+ 12 kép 1/15
145 800 000 Ft145.8 M Ft 946 753 Ft/m2
1 + 4 szoba
154 m2
építés éve:2025

Részletes adatok

Telekméret: 480 m2
Fűtés: Egyéb
Energetikai besorolás: Nem adta meg a hirdető

Az OTP Bank lakáshitel ajánlataFizetett hirdetés

3628814738
Fábián Edina
referens

Érdekel az OTP Bank kedvezményes lakáshitel ajánlata? *

* A kérdésre „Igen” válasz bejelölése esetén, az „Üzenet küldése” gombra kattintva kijelentem, hogy az OTP Bank Nyrt. Adatkezelési tájékoztatójának tartalmát megismertem és tudomásul vettem.

Eladó ikerház leírása

Veresegyházon új otthon vár családokra, természetkedvelőkre, nyugalmat keresőkre
Letisztult elegancia, praktikus elrendezés és természetközeli életérzés ez mind megvalósul ebben a 154 m²-es, újépítésű ikerházban Veresegyház egyik legbarátságosabb részén.
Az építkezés még a kezdeti szakaszban van most még lehetősége van saját igényeire szabni a kialakítást.

Kiknek ideális ez az otthon?
- Családoknak, akik tágas, jól szervezett életteret keresnek
- Kétgenerációs együttéléshez a földszinti szoba és fürdő ideális idősebb családtagnak
- Természetkedvelőknek és kutyásoknak az utca túloldalán egy hívogató kiserdő nyújt kikapcsolódást
- Dolgozó pároknak, akik elérhető közelségben szeretnének élni Budapesttől

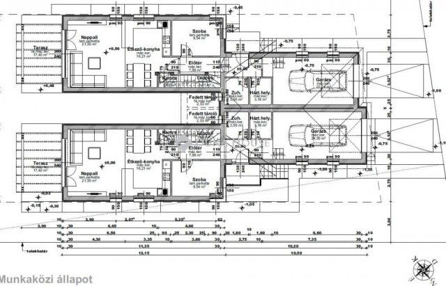
A ház elrendezése:
- Földszint: amerikai konyhás nappali kertkapcsolattal, szoba, fürdő, háztartási helyiség, kamra, tároló és garázs
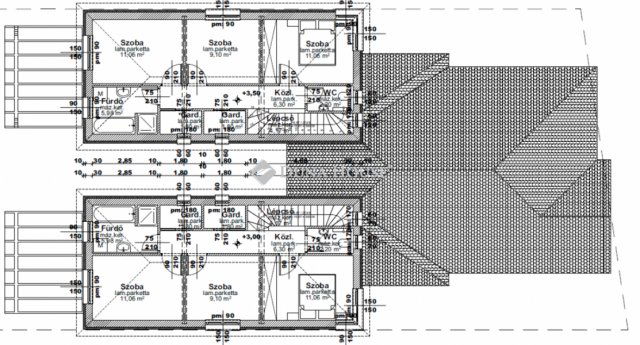
- Emelet: 3 hálószoba, 2 gardrób, fürdő és külön WC

Közlekedés Budapestre:
- A közelben vonatállomás is elérhető 30-35 perc a Nyugati pályaudvarig
- Közvetlen buszjáratok is indulnak az agglomeráció több pontjára
- Autóval pedig gyorsan elérhető az M3-as autópálya, vagy épp az M0-s

Csendes, zöld környezet, mégis jó közlekedés ritka párosítás.
Most lehetősége van rá, hogy ezt mind megtalálja egy új, minőségi otthonban.
Érezze meg személyesen is, milyen itt az otthon hangulata hívjon bátran időpontért!

Hirdetés feltöltve: 2026. 01. 04. Utoljára módosítva: 2026. 01. 13.

5 szobás ikerházak ára Veresegyházon

Ebből az összehasonlításból megtudhatod, hogyan viszonyul a lakás ára a környékbeli ikerházak átlagos árához. Ez nem azt jelenti, hogy ennyivel olcsóbb vagy drágább, mint amennyit a lakás ér, hanem hogy ennyivel tér el a környékbeli átlagtól.

Ennek a m² ára
Veresegyház m² ár
947 e Ft
999 e Ft 5%
Ennek az ára
Veresegyház átlagár
145.8 M Ft m Ft
147.4 m Ft 1%

Az ingatlan elhelyezkedése

Cím: Veresegyház

Eladó ikerházak a környékről

Eladó ikerház
Eladó ikerház

Szentendre, Szentendre

398 M Ft
5 szoba
267 m2
Eladó ikerház
Eladó ikerház

Érd, Érdligeten található utca

64.9 M Ft
4 szoba
112 m2
Eladó ikerház
Eladó ikerház

Veresegyház

149 M Ft
5 szoba
150 m2
Eladó ikerház
Eladó ikerház

Veresegyház

110 M Ft
4 szoba
109 m2
Eladó ikerház
Eladó ikerház

Veresegyház

145.8 M Ft
1 + 4 szoba
154 m2
Eladó ikerház
Eladó ikerház

Pécel, Pécel - kertváros

127 M Ft
4 szoba
125 m2
Eladó ikerház
Eladó ikerház

Vác

175.356 M Ft
5 szoba
165 m2
Eladó ikerház
Eladó ikerház

Veresegyház

145.8 M Ft
1 + 4 szoba
152 m2
Eladó ikerház
Eladó ikerház

Dunakeszi

149 M Ft
1 + 4 szoba
127 m2
Eladó ikerház
Eladó ikerház

Veresegyház

99.7 M Ft
6 szoba
210 m2
Eladó ikerház
Eladó ikerház

Üröm

220 M Ft
4 szoba
130 m2
Eladó ikerház
Eladó ikerház

Szentendre

179 M Ft
5 + 1 szoba
147 m2
Eladó ikerház
Eladó ikerház

Veresegyház

104.9 M Ft
5 szoba
110 m2
Eladó ikerház
Eladó ikerház

Veresegyház

99.7 M Ft
6 szoba
210 m2
Eladó ikerház
Eladó ikerház

Vác

149.9 M Ft
5 szoba
202 m2
Eladó ikerház
Eladó ikerház

Pilisjászfalu

70.563 M Ft
4 szoba
61 m2
Eladó ikerház
Eladó ikerház

Diósd

213.46 M Ft
5 szoba
186 m2
Eladó ikerház
Eladó ikerház

Szentendre

359 M Ft
5 + 1 szoba
289 m2
Eladó ikerház
Eladó ikerház

Vác

96.7 M Ft
4 + 1 szoba
126 m2
Eladó ikerház
Eladó ikerház

Vác

175.356 M Ft
5 szoba
165 m2
Eladó ikerház
Eladó ikerház

Pécel, Pécel

144.9 M Ft
6 szoba
200 m2
Eladó ikerház
Eladó ikerház

Veresegyház

145 M Ft
4 szoba
120 m2
Eladó ikerház
Eladó ikerház

Pomáz

129.5 M Ft
4 szoba
100 m2
Eladó ikerház
Eladó ikerház

Veresegyház

87.99 M Ft
3 szoba
120 m2

Falusi CSOK ingatlanok

Eladó családi ház
Eladó családi ház

Ceglédbercel

67 M Ft
5 szoba
174 m2
Eladó családi ház
Eladó családi ház

Seregélyes

75 M Ft
6 szoba
160 m2
Eladó családi ház
Eladó családi ház

Szarvaskend

26.9 M Ft
2 szoba
83 m2
Eladó családi ház
Eladó családi ház

Tab

58.5 M Ft
4 szoba
80 m2
Eladó családi ház
Eladó családi ház

Törtel

32.9 M Ft
3 szoba
68 m2
Eladó családi ház
Eladó családi ház

Recsk

59 M Ft
2 szoba
70 m2
Eladó családi ház
Eladó családi ház

Dág

39.9 M Ft
2 szoba
80 m2
Eladó családi ház
Eladó családi ház

Tésenfa, Kossuth utca 23/a

5.55 M Ft
1 + 1 szoba
109 m2