Seven Pearl

Eladó ikerház
Vecsés

+ 17 kép 1/20
124 990 000 Ft124.99 M Ft 991 984 Ft/m2
4 szoba
126 m²
építés éve:2025

Részletes adatok

Telekméret: 500 m2
Fűtés: Egyéb
Energetikai besorolás: Nem adta meg a hirdető

Az OTP Bank lakáshitel ajánlataFizetett hirdetés

+36 1 690
Lakatos Anna
referens

Érdekel az OTP Bank kedvezményes lakáshitel ajánlata? *

* A kérdésre „Igen” válasz bejelölése esetén, az „Üzenet küldése” gombra kattintva kijelentem, hogy az OTP Bank Nyrt. Adatkezelési tájékoztatójának tartalmát megismertem és tudomásul vettem.

Eladó ikerház leírása

Vecsés központi részén

Vecsésen vasútállomáshoz közel eladó új építésű otthonok.
A kivitelező sok éves múlttal és rengeteg elégedett ügyféllel rendelkezik.

1-es ház
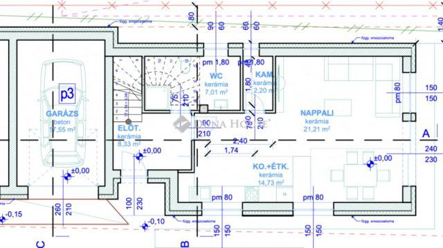
Hasznos alapterülete 104 négyzetméter, mely egy 250 négyzetméteres telken fekszik. A földszinten a nappaliból egy óriási tolóajtón jutunk a 6,55 négyzetméteres teraszunkra és a saját kertrészünkbe.
Nappali+3 hálószobával és 2 fürdőszobával rendelkezik.

2-es ház
Hasznos alapterülete 110 négyzetméter, mely egy 500 négyzetméteres telken fekszik. A földszinten a 35,94 négyzetméteres nappalinkból egy gyönyörű tolóajtón keresztül juthatunk a saját privát kertünkbe, melyben akár medence, játszótér vagy egy szuper nyári grill terasz is elfér.
Nappali+3 hálószobával és 2 fürdőszobával rendelkezik.

Műszaki adatok:
-30-as Prototherm tégla falazat

-15 cm-es homlokzati szigetelés

-18 cm-es szigetelés az aljzat felől

-20 cm-es szigetelés a födém felől

-3 rétegű műanyag nyílászárók kívülről barna fahatásúak, belülről fehér színűek

-elektromos garázskapu fehér színnel

-Hőszivattyús fűtés/hűtés

-2 fürdőszoba

-riasztó és kaputelefon kiállás

-redőnyök

-napelem kiállás

-térkövezett autóbeálló

Burkolatok/beltéri ajtók/szaniterek még választhatóak.
-Burkolatok: hideg/meleg 6.000 forintig
-Beltéri ajtók: 60.000 forintig
-Szaniterek, csaptelepek: 500.000 forintig
választhatóak

A HÁZAK CSAK GARÁZZSAL ÉRINTKEZNEK.

A Közlekedést tekintve autóval a Gyorsforgalmi út, Üllői út, Gyömrői út az M0-ás és a 4-es út 3 3 perc alatt megközelíthető.
Tömegközlekedés 20 méterre Volánbusz Kőbánya Kispest vasútállomásig közlekedik, 3 perc sétára Vecsési vonatállomás, melyről a Nyugati pályaudvarig közlekednek a vonatok.

Felkeltette érdeklődését keressen bizalommal a hét bármely napján!

Hirdetés feltöltve: 2026. 03. 18. Utoljára módosítva: 2026. 03. 24.

4 szobás ikerházak ára Vecsésen

Ebből az összehasonlításból megtudhatod, hogyan viszonyul a lakás ára a környékbeli ikerházak átlagos árához. Ez nem azt jelenti, hogy ennyivel olcsóbb vagy drágább, mint amennyit a lakás ér, hanem hogy ennyivel tér el a környékbeli átlagtól.

Ennek a m² ára
Vecsés m² ár
992 e Ft
918 e Ft -8%
Ennek az ára
Vecsés átlagár
124.99 M Ft m Ft
129.2 m Ft 3%

Az ingatlan elhelyezkedése

Cím: Vecsés

Eladó ikerházak a környékről

Vecsés
Eladó ikerház

Vecsés

149.9 M Ft
5 szoba
163 m²
Mogyoród
Eladó ikerház

Mogyoród

135 M Ft
5 szoba
137 m²
Vecsés
Eladó ikerház

Vecsés

149.9 M Ft
5 szoba
160 m²
Vecsés
Eladó ikerház

Vecsés

124.99 M Ft
4 szoba
126 m²
Vecsés
Eladó ikerház

Vecsés

149.9 M Ft
5 szoba
160 m²
Vecsés
Eladó ikerház

Vecsés

124.99 M Ft
4 szoba
139 m²
Vecsés
Eladó ikerház

Vecsés

215 M Ft
5 szoba
173 m²
Vecsés
Eladó ikerház

Vecsés

139.9 M Ft
5 szoba
163 m²
Mogyoród
Eladó ikerház

Mogyoród

129 M Ft
5 szoba
123 m²
Vecsés
Eladó ikerház

Vecsés

149.9 M Ft
5 szoba
160 m²
Vecsés
Eladó ikerház

Vecsés

149.9 M Ft
5 szoba
160 m²
Mogyoród
Eladó ikerház

Mogyoród

135 M Ft
5 szoba
137 m²
Vác
Eladó ikerház

Vác

96.7 M Ft
4 + 1 szoba
126 m²
Vác
Eladó ikerház

Vác

149.9 M Ft
5 szoba
202 m²
Vecsés
Eladó ikerház

Vecsés

124.99 M Ft
4 szoba
126 m²
Vecsés
Eladó ikerház

Vecsés

139.9 M Ft
5 szoba
163 m²
Vecsés
Eladó ikerház

Vecsés

132 M Ft
4 szoba
145 m²
Budakalász
Eladó ikerház

Budakalász

195 M Ft
5 + 2 szoba
170 m²
Szentendre
Eladó ikerház

Szentendre

179 M Ft
5 + 1 szoba
147 m²
Szentendre
Eladó ikerház

Szentendre

359 M Ft
5 + 1 szoba
289 m²
Dunakeszi
Eladó ikerház

Dunakeszi

178 M Ft
6 szoba
140 m²
Nagytarcsa
Eladó ikerház

Nagytarcsa

119.9 M Ft
4 szoba
103 m²
Vácrátót
Eladó ikerház

Vácrátót

94.9 M Ft
2 + 3 szoba
108 m²
Vecsés
Eladó ikerház

Vecsés

149.9 M Ft
5 szoba
160 m²

Falusi CSOK ingatlanok

Nagyréde
Eladó családi ház

Nagyréde

69.5 M Ft
4 szoba
110 m²
Mád
Eladó családi ház

Mád

48 M Ft
3 szoba
181 m²
Lengyeltóti
Eladó családi ház

Lengyeltóti

93.9 M Ft
7 szoba
200 m²
Balatonszemes
Eladó téglalakás

Balatonszemes

91.5 M Ft
2 szoba
60 m²
Somogyhárságy
Eladó családi ház

Somogyhárságy

183.75 M Ft
5 szoba
250 m²
Tápióbicske, Nagykátai út
Eladó családi ház

Tápióbicske

14.9 M Ft
3 szoba
70 m²
Nagydobos
Eladó családi ház

Nagydobos

17.5 M Ft
3 szoba
103 m²
Elek
Eladó családi ház

Elek

18 M Ft
4 szoba
180 m²