River Life

Eladó ikerház
Vecsés

+ 17 kép 1/20
149 900 000 Ft149.9 M Ft 936 875 Ft/m2
5 szoba
160 m²
építés éve:2025

Részletes adatok

Telekméret: 460 m2
Fűtés: Egyéb
Energetikai besorolás: Nem adta meg a hirdető

Az OTP Bank lakáshitel ajánlataFizetett hirdetés

+36 30 199
Dr. Varga Diána
referens

Érdekel az OTP Bank kedvezményes lakáshitel ajánlata? *

* A kérdésre „Igen” válasz bejelölése esetén, az „Üzenet küldése” gombra kattintva kijelentem, hogy az OTP Bank Nyrt. Adatkezelési tájékoztatójának tartalmát megismertem és tudomásul vettem.

Eladó ikerház leírása

Vecsés Krakkón barátságos, csendes, családias utcában eladó új építésű családi házak.
A kivitelező sok éves múlttal és rengeteg elégedett ügyféllel rendelkezik, referenciák Vecsési lakóparkokban és a 18.kerületben is megtekinthetőek.

Költözzön egy privát zárt lakóparkba melyet saját magánúton zárt kapuk mögött lehet megközelíteni. 4 ház épül a lakópark területén, a privát kerteken kívül közös kertrész is kialakításra kerül, melyre a kivitelező privát játszóteret és sütögetőt alakít ki.

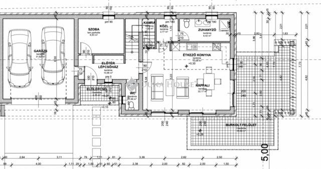
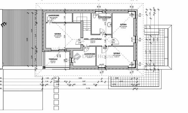
Az otthonok 160.88 négyzetméter hasznos lakótérrel rendelkeznek, mely két szinten fekszik és 460 négyzetméter kert tartozik hozzá. A földszinten egy kényelmes méretű 32 négyzetméteres amerikai konyhás nappalival rendelkezik melyre egy L alakú 35.92 négyzetméteres részben fedett teraszon keresztül jutunk a saját kertünkbe. 4 nagyobb méretű hálószobával, 2 gardróbbal és 2 fürdőszobával+1 illemhelyiséggel rendelkezik.

Műszaki adatok:
-30-as Prototherm tégla falazat

-15 cm-es homlokzati szigetelés

-25 cm-es szigetelés az aljzat felől

-25 cm-es szigetelés a födém felől

-3 rétegű műanyag nyílászárók kívülről antracit belülről fehér színűek

-elektromos garázskapu antracit színnel

-Hőszivattyús fűtés/hűtés

-2 fürdőszoba

-kamra

-riasztó

-elektromos redőny

-térkövezett autóbeálló

-kétállásos garázs

-napelem/kamera kiállás

Burkolatok/beltéri ajtók/szaniterek még választhatóak.

A HÁZAK CSAK A DUPLAGARÁZSNÁL ÉRINTKEZNEK, UTCAFRONTJA MINDEGYIK INGATLANNAK VAN!

A lakópark teljesen új modern környezet, játszótérrel, fákkal. Közlekedést tekintve autóval a Gyorsforgalmi út, Üllői út, Gyömrői út az M0-ás és a 4-es út 3 perc alatt megközelíthető.

Tömegközlekedés 3 perc sétára Volánbuszmegálló Kőbánya Kispest vasútállomásig közlekedik, 15 perc sétára Vecsési vonatállomás, melyről a Nyugati pályaudvarig közlekednek a vonatok.

Felkeltette érdeklődését keressen bizalommal a hét bármely napján!

Átadás: 2026.július
Érd.: dr. Varga Diána +36/30-199-2080 dr.varga.diana@dh.hu

Referencia szám: HZ060440

Hirdetés feltöltve: 2026. 02. 17. Utoljára módosítva: 2026. 04. 03.

5 szobás ikerházak ára Vecsésen

Ebből az összehasonlításból megtudhatod, hogyan viszonyul a lakás ára a környékbeli ikerházak átlagos árához. Ez nem azt jelenti, hogy ennyivel olcsóbb vagy drágább, mint amennyit a lakás ér, hanem hogy ennyivel tér el a környékbeli átlagtól.

Ennek a m² ára
Vecsés m² ár
937 e Ft
969 e Ft 3%
Ennek az ára
Vecsés átlagár
149.9 M Ft m Ft
143.1 m Ft -5%

Az ingatlan elhelyezkedése

Cím: Vecsés

Eladó ikerházak a környékről

Vecsés
Eladó ikerház

Vecsés

149.9 M Ft
5 szoba
160 m²
Mogyoród
Eladó ikerház

Mogyoród

135 M Ft
5 szoba
137 m²
Vecsés
Eladó ikerház

Vecsés

149.9 M Ft
5 szoba
163 m²
Vecsés
Eladó ikerház

Vecsés

138 M Ft
5 szoba
163 m²
Vecsés
Eladó ikerház

Vecsés

149.9 M Ft
5 szoba
181 m²
Vecsés
Eladó ikerház

Vecsés

67 M Ft
3 szoba
81 m²
Vecsés
Eladó ikerház

Vecsés

124.99 M Ft
4 szoba
126 m²
Budakalász
Eladó ikerház

Budakalász

159 M Ft
6 szoba
140 m²
Vecsés
Eladó ikerház

Vecsés

138 M Ft
5 szoba
163 m²
Szentendre
Eladó ikerház

Szentendre

179 M Ft
5 + 1 szoba
147 m²
Vecsés
Eladó ikerház

Vecsés

124.99 M Ft
4 szoba
126 m²
Nagytarcsa
Eladó ikerház

Nagytarcsa

119.9 M Ft
4 szoba
103 m²
Vecsés
Eladó ikerház

Vecsés

132 M Ft
4 szoba
145 m²
Vácrátót
Eladó ikerház

Vácrátót

94.9 M Ft
2 + 3 szoba
108 m²
Mogyoród
Eladó ikerház

Mogyoród

135 M Ft
5 szoba
137 m²
Dunakeszi
Eladó ikerház

Dunakeszi

178 M Ft
6 szoba
140 m²
Kiskunlacháza
Eladó ikerház

Kiskunlacháza

44.9 M Ft
2 szoba
39 m²
Vecsés
Eladó ikerház

Vecsés

132 M Ft
4 szoba
147 m²
Szentendre
Eladó ikerház

Szentendre

718 M Ft
10 + 2 szoba
578 m²
Vecsés
Eladó ikerház

Vecsés

69.9 M Ft
4 szoba
96 m²
Dunakeszi
Eladó ikerház

Dunakeszi

149 M Ft
1 + 4 szoba
127 m²
Vecsés
Eladó ikerház

Vecsés

124.99 M Ft
4 szoba
139 m²
Vecsés
Eladó ikerház

Vecsés

149.9 M Ft
5 szoba
160 m²
Diósd
Eladó ikerház

Diósd

213.46 M Ft
5 szoba
186 m²

Falusi CSOK ingatlanok

Szigetcsép
Eladó családi ház

Szigetcsép

110 M Ft
3 szoba
137 m²
Lengyeltóti
Eladó családi ház

Lengyeltóti

59.9 M Ft
5 szoba
205 m²
Nemesszentandrás
Eladó családi ház

Nemesszentandrás

25 M Ft
2 szoba
92 m²
Szentliszló
Eladó családi ház

Szentliszló

62.794 M Ft
2 + 3 szoba
170 m²
Szabadbattyán
Eladó családi ház

Szabadbattyán

147.99 M Ft
5 szoba
255 m²
Csemő
Eladó családi ház

Csemő

61.9 M Ft
3 szoba
88 m²
Lovászi
Eladó családi ház

Lovászi

25 M Ft
3 + 1 szoba
120 m²
Balatonakali
Eladó ikerház

Balatonakali

129 M Ft
4 szoba
145 m²