BAM Living

Eladó ikerház
Vecsés

+ 5 kép 1/8
129 900 000 Ft129.9 M Ft 1 100 847 Ft/m2
5 szoba
118 m²
építés éve:2026

Részletes adatok

Telekméret: 360 m2
Fűtés: Egyéb
Energetikai besorolás: Nem adta meg a hirdető

Az OTP Bank lakáshitel ajánlataFizetett hirdetés

3629998440
Abonyi Andrea
referens

Érdekel az OTP Bank kedvezményes lakáshitel ajánlata? *

* A kérdésre „Igen” válasz bejelölése esetén, az „Üzenet küldése” gombra kattintva kijelentem, hogy az OTP Bank Nyrt. Adatkezelési tájékoztatójának tartalmát megismertem és tudomásul vettem.

Eladó ikerház leírása

Új építésű, modern ikerházfél eladó Vecsés csendes, családbarát utcájában
Vecsés egyik legnyugodtabb, rendezett mellékutcájában kínálom megvételre ezt a 2026 második felében átadásra kerülő, modern műszaki tartalommal épülő ikerházfelet.

Az ingatlan önálló telekrésszel, átgondolt alaprajzzal és energiatakarékos megoldásokkal készül – ideális választás családoknak, akik hosszú távra keresnek értékálló otthont.

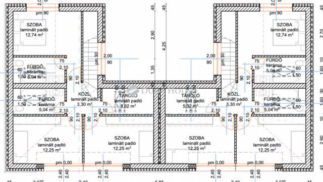
Főbb paraméterek
- Lakótér: 118 m²
- Terasz: 23 m²
- Telek: 360 m²
- Épülettípus: ikerház
- Várható átadás: 2026. II. félév

Elrendezés – élhető, praktikus terek
A ház kialakítása a mindennapi kényelmet helyezi előtérbe:
- tágas, világos amerikai konyhás nappali étkezővel
- több külön nyíló hálószoba
- dolgozószoba – ideális otthoni munkavégzéshez
- fürdőszoba + külön WC
- háztartási helyiség / tároló
- közvetlen kijárat a nagy teraszra és a kertbe
A terek elosztása harmonikusan támogatja a családi életet, a pihenést és a munkát egyaránt.

Műszaki tartalom – korszerű, energiatakarékos megoldások
Az ingatlan modern technológiákkal épül, alacsony fenntartási költségekkel:
- 15 cm külső hőszigetelés
- 30 cm vázkerámia falazat
- 3 rétegű, hőszigetelt műanyag nyílászárók
- hőszivattyús fűtési rendszer
- padlófűtés minden helyiségben
- split klímás hűtési lehetőség
- korszerű elektromos hálózat
- megújuló energia arány biztosítva
Választható burkolatok és belső elemek:
- hideg- és melegburkolatok 8.000 Ft/m² árig
- belső ajtók 110.000 Ft/db árig

Kültér és parkolás
- saját, szeparált kertkapcsolat
- nagy méretű terasz
- fedett gépkocsi-beálló

Elhelyezkedés
Az ingatlan Vecsés belterületén, csendes, családias környezetben található.
A közelben minden fontos infrastruktúra elérhető:
üzletek, iskola, óvoda, egészségügyi ellátás, tömegközlekedés.
Budapest gyorsan és könnyen megközelíthető.

Miért lehet ez az Ön új otthona?
- modern, energiatakarékos épület
- nyugodt, biztonságos környék
- saját kert és nagy terasz
- értékálló, hosszú távú befektetés
- személyre szabható belső kialakítás

Amennyiben az ingatlan felkeltette érdeklődését, várom hívását.
Hitelügyintézésben is teljes körű segítséget nyújtunk.
Forduljon hozzám bizalommal a Duna House teljes kínálatával kapcsolatban, illetve eladási szándékával!
Szolgáltatásaink között megtalálható:
-Ingyenes hitelügyintézés a nemzetközileg elismert Credipass segítségével, garantáltan a legjobb feltételekkel és a leggyorsabb ügyintézéssel.
-Teljes körű ügyintézés ingatlan eladásához és vételéhez.
-Energetikai tanúsítvány készítése gyorsan és megbízhatóan.
-Ingyenes tanácsadás és értékbecslés, hogy a legjobb döntést hozhassa meg.
-Megbízható ügyvédi háttér biztosítása az adásvétel zökkenőmentes lebonyolításához.

Kövesse be értékesítői facebook oldalamat, ahol hasznos tippeket olvashat.
https://www.facebook.com/profile.php?id=100063629319547

Abonyi Andrea; tel: +36/30 322 4742; e-mail: abonyi.andrea@dh.hu

Referencia szám: HZ051587

Hirdetés feltöltve: 2026. 02. 11. Utoljára módosítva: 2026. 02. 11.

5 szobás ikerházak ára Vecsésen

Ebből az összehasonlításból megtudhatod, hogyan viszonyul a lakás ára a környékbeli ikerházak átlagos árához. Ez nem azt jelenti, hogy ennyivel olcsóbb vagy drágább, mint amennyit a lakás ér, hanem hogy ennyivel tér el a környékbeli átlagtól.

Ennek a m² ára
Vecsés m² ár
1101 e Ft
1010 e Ft -9%
Ennek az ára
Vecsés átlagár
129.9 M Ft m Ft
152 m Ft 15%

Az ingatlan elhelyezkedése

Cím: Vecsés

Eladó ikerházak a környékről

Pilisjászfalu
Eladó ikerház

Pilisjászfalu

82.279 M Ft
4 szoba
73 m²
Vácrátót
Eladó ikerház

Vácrátót

94.9 M Ft
2 + 3 szoba
108 m²
Vác
Eladó ikerház

Vác

99.7 M Ft
4 + 1 szoba
129 m²
Vecsés
Eladó ikerház

Vecsés

149.9 M Ft
5 szoba
160 m²
Vác
Eladó ikerház

Vác

149.9 M Ft
5 szoba
202 m²
Vecsés
Eladó ikerház

Vecsés

124.99 M Ft
4 szoba
139 m²
Pécel
Eladó ikerház

Pécel

149.9 M Ft
5 szoba
306 m²
Vácrátót
Eladó ikerház

Vácrátót

99.9 M Ft
3 + 2 szoba
112 m²
Vecsés
Eladó ikerház

Vecsés

69.9 M Ft
4 szoba
96 m²
Vecsés
Eladó ikerház

Vecsés

67 M Ft
3 szoba
81 m²
Dunakeszi
Eladó ikerház

Dunakeszi

149 M Ft
1 + 4 szoba
127 m²
Szentendre
Eladó ikerház

Szentendre

359 M Ft
5 + 1 szoba
289 m²
Vecsés
Eladó ikerház

Vecsés

215 M Ft
5 szoba
173 m²
Vecsés
Eladó ikerház

Vecsés

149 M Ft
4 szoba
145 m²
Diósd
Eladó ikerház

Diósd

213.46 M Ft
5 szoba
186 m²
Vecsés
Eladó ikerház

Vecsés

124.99 M Ft
4 szoba
139 m²
Vác
Eladó ikerház

Vác

96.7 M Ft
4 + 1 szoba
126 m²
Vecsés
Eladó ikerház

Vecsés

124.99 M Ft
4 szoba
139 m²
Vecsés
Eladó ikerház

Vecsés

124.99 M Ft
4 szoba
126 m²
Kiskunlacháza
Eladó ikerház

Kiskunlacháza

41 M Ft
2 szoba
39 m²
Vecsés
Eladó ikerház

Vecsés

149.9 M Ft
5 szoba
163 m²
Mogyoród
Eladó ikerház

Mogyoród

129 M Ft
5 szoba
123 m²
Vecsés
Eladó ikerház

Vecsés

149.9 M Ft
5 szoba
160 m²
Mogyoród
Eladó ikerház

Mogyoród

135 M Ft
5 szoba
137 m²

Falusi CSOK ingatlanok

Villány
Eladó családi ház

Villány

55 M Ft
3 szoba
240 m²
Szederkény
Eladó családi ház

Szederkény

107.9 M Ft
6 szoba
224 m²
Mocsa
Eladó családi ház

Mocsa

35 M Ft
4 szoba
97 m²
Seregélyes
Eladó téglalakás

Seregélyes

68 M Ft
3 szoba
60 m²
Rédics
Eladó családi ház

Rédics

64.351 M Ft
3 szoba
180 m²
Mecsér
Eladó családi ház

Mecsér

30.99 M Ft
1 + 1 szoba
66 m²
Bábolna
Eladó családi ház

Bábolna

69.9 M Ft
5 szoba
172 m²
Jánosháza
Eladó családi ház

Jánosháza

39 M Ft
2 szoba
116 m²