Oasis Residence

Eladó ikerház
Vecsés

+ 4 kép 1/7
140 000 000 Ft140 M Ft 939 597 Ft/m2
5 szoba
149 m2
építés éve:2025

Részletes adatok

Telekméret: 505 m2
Fűtés: Egyéb
Energetikai besorolás: Nem adta meg a hirdető

Az OTP Bank lakáshitel ajánlataFizetett hirdetés

3629998810
Gál Beáta
referens

Érdekel az OTP Bank kedvezményes lakáshitel ajánlata? *

* A kérdésre „Igen” válasz bejelölése esetén, az „Üzenet küldése” gombra kattintva kijelentem, hogy az OTP Bank Nyrt. Adatkezelési tájékoztatójának tartalmát megismertem és tudomásul vettem.

Eladó ikerház leírása

ÚJ ÉPÍTÉSŰ, MODERN CSALÁDI OTTHONOK VECSÉS LEGFIATALOSABB, CSALÁDIAS RÉSZÉN!

Ha modern, kényelmes, tágas otthonra vágyik, amelyben minden részlet a család kényelmét szolgálja, ne keressen tovább!
Vecsés legújabb lakóparkjában exkluzív, új építésű ikerházak várják leendő tulajdonosaikat.

A HÁZAKRÓL – STÍLUS, KÉNYELEM ÉS MINŐSÉG

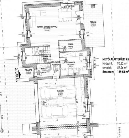
Méret: 149,58 m² lakótér + 505 m² saját, privát kert
Elrendezés: nappali + 4 hálószoba + gardrób (a szülői hálószoba 16,10 m²)
Fedett terasz: 13,57 m² (földszint)
Erkély: 6,12 m² a szülői hálóhoz tartozik
Garázs: 36 m²-es, 2 állásos, elektromos kapu

A két ikerház csak a garázsoknál érintkezik, minden más teljesen privát

MŰSZAKI ADOTTSÁGOK – MODERN MEGOLDÁSOK

30-as Prototherm tégla, 15 cm homlokzati szigetelés
18 cm szigetelés aljzaton, 8 cm födémen
3 rétegű műanyag ablakok (kívül antracit, belül fehér)
Hőszivattyús fűtés/hűtés (fan coil)
2 fürdőszoba + mosókonyha
Elektromos redőny, riasztó- és kaputelefon kiállás

Térkövezett autóbeálló

Burkolatok, beltéri ajtók és szaniterek választhatóak, így teljesen az Ön ízlése szerint alakítható

A LAKÓPARK – MODERN, CSALÁDI BARÁT KÖRNYEZET

Játszótér és zöld területek
Faültetések és rendezett utcák
Nyugodt, biztonságos környék, mégis kiváló közlekedéssel

KÖZLEKEDÉS – PÁR PERC ALATT MINDEN ELÉRHETŐ

Gyorsforgalmi út, Üllői út, Gyömrői út, M0 és M4: 3 perc autóval
Volánbusz Kőbánya-Kispestig: 3 perc sétára
Vecsési vasútállomás: 10 perc sétára (Nyugati pályaudvar 30 perc)

Átadás: 2026 IV. negyedév

MIÉRT EZ A HÁZ?

Modern, tágas terek, családbarát kialakítás
Teljesen új, energiatakarékos építés
Saját kert és garázs, privát élet
Referenciák megtekinthetők a kivitelezőtől, megbízható és tapasztalt szakemberek

Felkeltette érdeklődését? Hívjon bizalommal a hét bármely napján, és foglalja le új otthonát Vecsés legmodernebb lakóparkjában!
Érd: Gál Beáta 06705521003 gal.beata@dh.hu

Referencia szám: HZ025077

Hirdetés feltöltve: 2025. 12. 06. Utoljára módosítva: 2026. 01. 22.

5 szobás ikerházak ára Vecsésen

Ebből az összehasonlításból megtudhatod, hogyan viszonyul a lakás ára a környékbeli ikerházak átlagos árához. Ez nem azt jelenti, hogy ennyivel olcsóbb vagy drágább, mint amennyit a lakás ér, hanem hogy ennyivel tér el a környékbeli átlagtól.

Ennek a m² ára
Vecsés m² ár
940 e Ft
1004 e Ft 6%
Ennek az ára
Vecsés átlagár
140 M Ft m Ft
156 m Ft 10%

Az ingatlan elhelyezkedése

Cím: Vecsés

Eladó ikerházak a környékről

Eladó ikerház
Eladó ikerház

Pilisjászfalu

70.563 M Ft
4 szoba
61 m2
Eladó ikerház
Eladó ikerház

Vecsés

198 M Ft
5 szoba
141 m2
Eladó ikerház
Eladó ikerház

Vecsés

67 M Ft
3 szoba
81 m2
Eladó ikerház
Eladó ikerház

Vecsés

140 M Ft
5 szoba
160 m2
Eladó ikerház
Eladó ikerház

Szentendre

179 M Ft
5 + 1 szoba
147 m2
Eladó ikerház
Eladó ikerház

Szentendre

718 M Ft
10 + 2 szoba
578 m2
Eladó ikerház
Eladó ikerház

Vác

149.9 M Ft
5 szoba
202 m2
Eladó ikerház
Eladó ikerház

Pécel

149.9 M Ft
5 szoba
306 m2
Eladó ikerház
Eladó ikerház

Vác

175.356 M Ft
5 szoba
165 m2
Eladó ikerház
Eladó ikerház

Vác

99.7 M Ft
4 + 1 szoba
129 m2
Eladó ikerház
Eladó ikerház

Vecsés

69.9 M Ft
4 szoba
96 m2
Eladó ikerház
Eladó ikerház

Diósd

213.46 M Ft
5 szoba
186 m2
Eladó ikerház
Eladó ikerház

Mogyoród, Fóti út

188 M Ft
6 szoba
182 m2
Eladó ikerház
Eladó ikerház

Vác

175.356 M Ft
5 szoba
165 m2
Eladó ikerház
Eladó ikerház

Vecsés

140 M Ft
5 szoba
160 m2
Eladó ikerház
Eladó ikerház

Pusztazámor

55 M Ft
10 szoba
470 m2
Eladó ikerház
Eladó ikerház

Pécel, Pécel

144.9 M Ft
6 szoba
200 m2
Eladó ikerház
Eladó ikerház

Vecsés

69.9 M Ft
4 szoba
96 m2
Eladó ikerház
Eladó ikerház

Vecsés

140 M Ft
5 szoba
160 m2
Eladó ikerház
Eladó ikerház

Vecsés

149.9 M Ft
5 szoba
163 m2
Eladó ikerház
Eladó ikerház

Szentendre

359 M Ft
5 + 1 szoba
289 m2
Eladó ikerház
Eladó ikerház

Diósd

206.25 M Ft
5 szoba
184 m2
Eladó ikerház
Eladó ikerház

Vác

96.7 M Ft
4 + 1 szoba
126 m2
Eladó ikerház
Eladó ikerház

Vecsés

140 M Ft
5 szoba
160 m2

Falusi CSOK ingatlanok

Eladó családi ház
Eladó családi ház

Balatonudvari

79.9 M Ft
4 szoba
97 m2
Eladó családi ház
Eladó családi ház

Sárisáp, Orgona utca

60 M Ft
4 szoba
145 m2
Eladó családi ház
Eladó családi ház

Szulok

36.9 M Ft
3 szoba
175 m2
Eladó családi ház
Eladó családi ház

Tiszatenyő

13.99 M Ft
2 szoba
63 m2
Eladó családi ház
Eladó családi ház

Lesenceistvánd

75 M Ft
2 szoba
90 m2
Eladó családi ház
Eladó családi ház

Hajós

49.5 M Ft
6 szoba
394 m2
Eladó családi ház
Eladó családi ház

Pécsvárad

85 M Ft
4 szoba
100 m2
Eladó családi ház
Eladó családi ház

Kesztölc

37.9 M Ft
3 szoba
75 m2