Eladó ikerház
Vecsés

+ 4 kép 1/7
140 000 000 Ft140 M Ft 939 597 Ft/m2
5 szoba
149 m2
építés éve:2025

Részletes adatok

Telekméret: 505 m2
Fűtés: Egyéb
Energetikai besorolás: Nem adta meg a hirdető

Az OTP Bank lakáshitel ajánlataFizetett hirdetés

+36 1 690
Balázs István Jácint
Duna House Kispest

Érdekel az OTP Bank kedvezményes lakáshitel ajánlata? *

* A kérdésre „Igen” válasz bejelölése esetén, az „Üzenet küldése” gombra kattintva kijelentem, hogy az OTP Bank Nyrt. Adatkezelési tájékoztatójának tartalmát megismertem és tudomásul vettem.

Eladó ikerház leírása

Vecsés legmodernebb fiatalos, családias részén

Vecsésen modern környezetben eladó új építésű családi házak.
A kivitelező sok éves múlttal és rengeteg elégedett ügyféllel rendelkezik, referenciák akár itt a lakóparkban is megtekinthetőek.

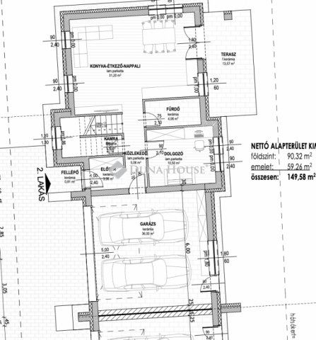
Az ikerház mindkét feléhez egy kétállásos garázs tartozik (36nm), a két ingatlan kizárólag itt érintkezik!
Nappali+4hálószoba+gardrób található az otthokban melyből egy szülőihálószobaként funkcionál, mely 16,10nm.
A földszinten van egy nagy 13.57 nm-es részben fedett terasz, az emeleten pedig egy 6,12nm-es erkély mely szintén a szülői hálószobához tartozik.
Az otthonok 149,58 négyzetméteresek mellyekhez saját, privát önálló 505 négyzetméter kertrész tartozik.

Műszaki adatok:

-30as Prototherm tégla falazat

-15cm-es homlokzati szigetelés

-18-cm-es szigetelés az aljzat felől

-8cm-es szigetelés a födém felől

-3 rétegű műanyag nyílászárók kívülről antracit belülről fehér színűek

-elektromos garázskapu antracit színnel

-Hőszivattyús fűtés/hűtés (fan coil)

-2 fürdőszoba

-mosókonyha

-elektromos redőny

-riasztó és kaputelefon kiállás

-térkövezett autóbeálló

Burkolatok/beltéri ajtók/szaniterek még választhatóak.

A lakópark teljesen új modern környezet, játszótérrel, fákkal. Közlekedést tekintve autóval a Gyorsforgalmi út, Üllői út, Gyömrői út az M0ás és a 4-es út 3perc alatt megközelíthető.

Tömegközlekedés 3perc sétára Volánbusz Kőbánya Kispest vasútállomásig közlekedik, 10perc sétára Vecsési vonatállomás, melyről a Nyugati pályaudvarig közlekednek a vonatok.

Felkeltette érdeklődését keressen bizalommal a hét bármely napján!
Átadás: 2026.IV. negyedév.
A Duna House teljes kínálatával kapcsolatban segítségére tudok lenni.
Amennyiben telefonon nem ér el, kérem küldjön érdeklődő üzenetet.
Szükség esetén román nyelven is tudok segíteni

Referencia szám: HZ025077

Hirdetés feltöltve: 2025. 10. 15. Utoljára módosítva: 2025. 10. 15.

5 szobás ikerházak ára Vecsésen

Ebből az összehasonlításból megtudhatod, hogyan viszonyul a lakás ára a környékbeli ikerházak átlagos árához. Ez nem azt jelenti, hogy ennyivel olcsóbb vagy drágább, mint amennyit a lakás ér, hanem hogy ennyivel tér el a környékbeli átlagtól.

Ennek a m² ára
Vecsés m² ár
940 e Ft
970 e Ft 3%
Ennek az ára
Vecsés átlagár
140 M Ft m Ft
150.1 m Ft 7%

Az ingatlan elhelyezkedése

Cím: Vecsés

Eladó ikerházak a környékről

Eladó ikerház
Eladó ikerház

Vác

96.5 M Ft
4 + 1 szoba
129 m2
Eladó ikerház
Eladó ikerház

Rád

100 M Ft
4 szoba
152 m2
Eladó ikerház
Eladó ikerház

Pusztazámor

55 M Ft
10 szoba
470 m2
Eladó ikerház
Eladó ikerház

Üröm

249.9 M Ft
4 szoba
154 m2
Eladó ikerház
Eladó ikerház

Vecsés

119 M Ft
6 szoba
147 m2
Eladó ikerház
Eladó ikerház

Mogyoród, Fóti út

188 M Ft
6 szoba
182 m2
Eladó ikerház
Eladó ikerház

Vác

175.356 M Ft
5 szoba
165 m2
Eladó ikerház
Eladó ikerház

Veresegyház

145 M Ft
4 szoba
120 m2
Eladó ikerház
Eladó ikerház

Szentendre, Szentendre

398 M Ft
5 szoba
267 m2
Eladó ikerház
Eladó ikerház

Vecsés

119 M Ft
6 szoba
147 m2
Eladó ikerház
Eladó ikerház

Vecsés

69.9 M Ft
4 szoba
96 m2
Eladó ikerház
Eladó ikerház

Vác

94.5 M Ft
4 + 1 szoba
126 m2
Eladó ikerház
Eladó ikerház

Vecsés

119 M Ft
5 szoba
149 m2
Eladó ikerház
Eladó ikerház

Vecsés

119 M Ft
6 szoba
147 m2
Eladó ikerház
Eladó ikerház

Pomáz

129.5 M Ft
4 szoba
100 m2
Eladó ikerház
Eladó ikerház

Vecsés

119 M Ft
5 szoba
149 m2
Eladó ikerház
Eladó ikerház

Dunakeszi

149 M Ft
1 + 4 szoba
127 m2
Eladó ikerház
Eladó ikerház

Tahitótfalu

88.9 M Ft
4 szoba
110 m2
Eladó ikerház
Eladó ikerház

Érd, Érdliget - Kutyavár, Érdligeten található utca

64.9 M Ft
4 szoba
112 m2
Eladó ikerház
Eladó ikerház

Vecsés

119 M Ft
6 szoba
147 m2
Eladó ikerház
Eladó ikerház

Dunaharaszti

124.999 M Ft
4 szoba
105 m2
Eladó ikerház
Eladó ikerház

Vecsés

119 M Ft
5 szoba
149 m2
Eladó ikerház
Eladó ikerház

Vecsés

119 M Ft
5 szoba
149 m2
Eladó ikerház
Eladó ikerház

Vecsés

198 M Ft
5 szoba
141 m2

Falusi CSOK ingatlanok

Eladó családi ház
Eladó családi ház

Makád

140 M Ft
4 szoba
79 m2
Eladó családi ház
Eladó családi ház

Törökkoppány

20.9 M Ft
2 szoba
80 m2
Eladó családi ház
Eladó családi ház

Badacsonytomaj

194 M Ft
8 szoba
210 m2
Eladó családi ház
Eladó családi ház

Majs

28.5 M Ft
3 szoba
160 m2
Eladó családi ház
Eladó családi ház

Csót

12.9 M Ft
3 szoba
104 m2
Eladó családi ház
Eladó családi ház

Kaszaper

14.5 M Ft
3 szoba
63 m2
Eladó családi ház
Eladó családi ház

Szalánta

149.9 M Ft
10 szoba
301 m2
Eladó családi ház
Eladó családi ház

Dunaegyháza

13.5 M Ft
2 szoba
120 m2