Kedves Felhasználónk! Rendszerfrissítés miatt az oldalunk 2026. február 10-én 0 órától várhatóan 11 óráig nem lesz elérhető. Köszönjük megértésed!
Avico Greentop

Eladó ikerház
Vecsés

+ 13 kép 1/16
125 000 000 Ft125 M Ft 1 068 376 Ft/m2
4 szoba
117 m2
építés éve:2025

Részletes adatok

Telekméret: 307 m2
Fűtés: Egyéb
Energetikai besorolás: Nem adta meg a hirdető

Az OTP Bank lakáshitel ajánlataFizetett hirdetés

+36 1 444
Balázs István Jácint
Duna House Kispest

Érdekel az OTP Bank kedvezményes lakáshitel ajánlata? *

* A kérdésre „Igen” válasz bejelölése esetén, az „Üzenet küldése” gombra kattintva kijelentem, hogy az OTP Bank Nyrt. Adatkezelési tájékoztatójának tartalmát megismertem és tudomásul vettem.

Eladó ikerház leírása

Vecsés legmodernebb fiatalos, családias részén

Vecsésen modern környezetben eladó új építésű családi házak.
A kivitelező sok éves múlttal és rengeteg elégedett ügyféllel rendelkezik, referenciák akár itt a lakóparkban is megtekinthetőek.

1-es ház:

127 négyzetméter hasznos lakótérrel rendelkezik, mely egy 307 négyzetméteres telken fekszik. A földszinten a nappaliból egy 8 négyzetméteres teraszon keresztül juthatunk ki a saját privát kertünkbe, továbbá az emeleten egy 8,19 négyzetméteres tetőterasz is tartozik hozzá.

Nappali+4 hálószoba+ gardrób, 21nm garázs, szülőiháló.

22 méter saját utcafront!

2-es ház:

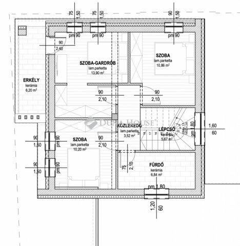
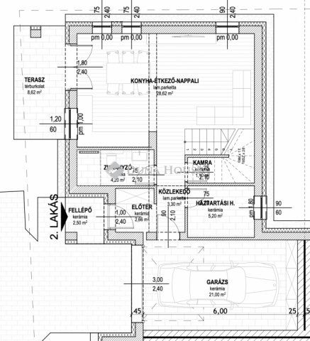
117,03 négyzetméter hasznos lakótérrel rendelkezik, mely egy 307 négyzetméteres telken fekszik. A földszinten a nappaliból egy 8,62 négyzetméteres teraszon keresztül juthatunk ki a saját privát kertünkbe, továbbá az emeleten egy 6,20 négyzetméteres erkély is tartozik hozzá.

Nappali+3hálószoba+gardrób, 21nm garázs, szülőiháló.

3-as ház:

117,03 négyzetméter hasznos lakótérrel rendelkezik, mely egy 307 négyzetméteres telken fekszik. A földszinten a nappaliból egy 8,62 négyzetméteres teraszon keresztül juthatunk ki a saját privát kertünkbe, továbbá az emeleten egy 6,20 négyzetméteres erkély is tartozik hozzá.

Nappali+3hálószoba+gardrób, 21nm garázs, szülői háló.

Műszaki adatok:

-30as Prototherm tégla falazat

-15cm-es homlokzati szigetelés

-18-cm-es szigetelés az aljzat felől

-8cm-es szigetelés a födém felől

-3 rétegű műanyag nyílászárók kívülről antracit belülről fehér színűek

-elektromos garázskapu antracit színnel

-Hőszivattyús fűtés/hűtés (fan coil)

-2 fürdőszoba

-mosókonyha

-riasztó és kaputelefon kiállás

-térkövezett autóbeálló

Burkolatok/beltéri ajtók/szaniterek még választhatóak.

A lakópark teljesen új modern környezet, játszótérrel, fákkal. Közlekedést tekintve autóval a Gyorsforgalmi út, Üllői út, Gyömrői út az M0ás és a 4-es út 3perc alatt megközelíthető.

Tömegközlekedés 3perc sétára Volánbusz Kőbánya Kispest vasútállomásig közlekedik, 10perc sétára Vecsési vonatállomás, melyről a Nyugati pályaudvarig közlekednek a vonatok.

Felkeltette érdeklődését keressen bizalommal a hét bármely napján!

Átadás: 2026.IV. negyedév
A Duna House teljes kínálatával kapcsolatban segítségére tudok lenni.
Amennyiben telefonon nem ér el, kérem küldjön érdeklődő üzenetet.
Szükség esetén román nyelven is tudok segíteni

Referencia szám: HZ051663

Hirdetés feltöltve: 2025. 10. 15. Utoljára módosítva: 2026. 02. 09.

4 szobás ikerházak ára Vecsésen

Ebből az összehasonlításból megtudhatod, hogyan viszonyul a lakás ára a környékbeli ikerházak átlagos árához. Ez nem azt jelenti, hogy ennyivel olcsóbb vagy drágább, mint amennyit a lakás ér, hanem hogy ennyivel tér el a környékbeli átlagtól.

Ennek a m² ára
Vecsés m² ár
1068 e Ft
947 e Ft -13%
Ennek az ára
Vecsés átlagár
125 M Ft m Ft
136.2 m Ft 8%

Az ingatlan elhelyezkedése

Cím: Vecsés

Eladó ikerházak a környékről

Eladó ikerház
Eladó ikerház

Szentendre

179 M Ft
5 + 1 szoba
147 m2
Eladó ikerház
Eladó ikerház

Vecsés

124.99 M Ft
4 szoba
139 m2
Eladó ikerház
Eladó ikerház

Vecsés

149.9 M Ft
5 szoba
160 m2
Eladó ikerház
Eladó ikerház

Vecsés

245 M Ft
5 szoba
173 m2
Eladó ikerház
Eladó ikerház

Diósd

206.25 M Ft
5 szoba
184 m2
Eladó ikerház
Eladó ikerház

Vecsés

69.9 M Ft
4 szoba
96 m2
Eladó ikerház
Eladó ikerház

Vecsés

149.9 M Ft
5 szoba
163 m2
Eladó ikerház
Eladó ikerház

Vác

149.9 M Ft
5 szoba
202 m2
Eladó ikerház
Eladó ikerház

Vecsés

245 M Ft
5 szoba
173 m2
Eladó ikerház
Eladó ikerház

Vecsés

124.99 M Ft
4 szoba
139 m2
Eladó ikerház
Eladó ikerház

Vácrátót

99.9 M Ft
3 + 2 szoba
112 m2
Eladó ikerház
Eladó ikerház

Vecsés

149.9 M Ft
5 szoba
160 m2
Eladó ikerház
Eladó ikerház

Vecsés

215 M Ft
5 szoba
173 m2
Eladó ikerház
Eladó ikerház

Pécel

149.9 M Ft
5 szoba
306 m2
Eladó ikerház
Eladó ikerház

Nagytarcsa

119.9 M Ft
4 szoba
103 m2
Eladó ikerház
Eladó ikerház

Vecsés

149.9 M Ft
5 szoba
160 m2
Eladó ikerház
Eladó ikerház

Vecsés

149.9 M Ft
5 szoba
181 m2
Eladó ikerház
Eladó ikerház

Szentendre

718 M Ft
10 + 2 szoba
578 m2
Eladó ikerház
Eladó ikerház

Pusztazámor

55 M Ft
10 szoba
470 m2
Eladó ikerház
Eladó ikerház

Pécel, Pécel - kertváros

127 M Ft
4 szoba
125 m2
Eladó ikerház
Eladó ikerház

Vecsés

149.9 M Ft
5 szoba
160 m2
Eladó ikerház
Eladó ikerház

Kiskunlacháza

41 M Ft
2 szoba
39 m2
Eladó ikerház
Eladó ikerház

Diósd

213.46 M Ft
5 szoba
186 m2
Eladó ikerház
Eladó ikerház

Vácrátót

94.9 M Ft
2 + 3 szoba
108 m2

Falusi CSOK ingatlanok

Eladó téglalakás
Eladó téglalakás

Balatonszemes

123.3 M Ft
2 szoba
70 m2
Eladó családi ház
Eladó családi ház

Csót

39.5 M Ft
4 szoba
123 m2
Eladó családi ház
Eladó családi ház

Szabadbattyán

67.5 M Ft
5 szoba
180 m2
Eladó családi ház
Eladó családi ház

Tarján

29.9 M Ft
3 szoba
120 m2
Eladó családi ház
Eladó családi ház

Ceglédbercel

95 M Ft
6 szoba
220 m2
Eladó családi ház
Eladó családi ház

Abádszalók

70 M Ft
3 szoba
100 m2
Eladó családi ház
Eladó családi ház

Szigetcsép

110 M Ft
3 szoba
137 m2
Eladó családi ház
Eladó családi ház

Tésenfa, Kossuth utca 23/a

5.55 M Ft
1 + 1 szoba
109 m2