City Pearl

Eladó ikerház
Vasad

+ 3 kép 1/6
71 990 000 Ft71.99 M Ft 712 772 Ft/m2
4 szoba
101 m2

Részletes adatok

Állapot:
Közmű: Villany, Csatorna
Övezet: Lakóövezet
Azonosító: 4138_912
Energetikai besorolás: Nem adta meg a hirdető

Az OTP Bank lakáshitel ajánlataFizetett hirdetés

+36 70 850
Kaufmann Norbert
Otthon&City

Érdekel az OTP Bank kedvezményes lakáshitel ajánlata? *

* A kérdésre „Igen” válasz bejelölése esetén, az „Üzenet küldése” gombra kattintva kijelentem, hogy az OTP Bank Nyrt. Adatkezelési tájékoztatójának tartalmát megismertem és tudomásul vettem.

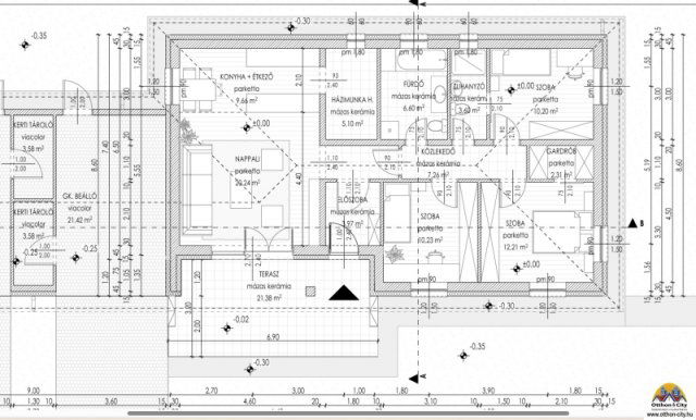
Eladó ikerház leírása

Álomotthon a Zöldövezetben – Nagyon közel Budapesthez!
Eladó új építésű ikerházak egy forgalomtól mentes, csendes utcában, Vasad leggyönyörűbb részén.

Az ár kulcsrakész állapotra vonatkozik!

Maximális privát szféra: Az ingatlanok között FEDETT autóbeálló épül, így nincs közös fal, ami garantálja az Ön nyugalmát és privát életterét!
Itt a lehetőség, hogy saját stílusodat élvezd egy megnyugtató, zöld környezetben, ahol a modern élet és a természet találkozik.

Főbb előnyök, amelyek valóban számítanak:
Prémium alaposság:
Több éves tapasztalat a kiváló minőségű ingatlanok építésében – látogasd meg referenciáinkat és győződj meg saját szemeddel!

Tágas, jól kihasználható telkek:
Összterület: 954 m²
Első otthon: 310 m² ( a feltüntetett ár erre vonatkozik)
Második otthon: 510 m²

Stílus és kényelem egyformán:
-nyitott, amerikai konyhás nappali
-terasz kapcsolatos óriási terasz
-három külön hálószoba – egyik saját gardróbbal
-dupla fürdőszoba (zuhanyzós, fürdőkádas kivitelű)
-háztartási helyiség
-saját garázs és tároló
-10 nm tárolás lehetőség a tetőtérben

Fenntarthatóság, energiamegtakarítás, luxus:
-hatékony hőszivattyús fűtési rendszer, padlófűtéssel – alacsony rezsiköltségek
-100 literes ARISTON okos vízmelegítő ami alkalmazkodik a felhasználói szokásokhoz
-beépített inverteres hűtő-fűtő klíma maximális kényelemért
-energiahatékonysági besorolás: AA++ – ideális Zöld Hitelhez, CSOK+ vagy az az OTTHON START programhoz
-kiemelkedő szigetelés: 12 cm aljzat, 10 cm grafitos homlokzat, 30 cm tetőfödém

Kulcsrakész állapot: Átadás 2026 nyarán – minden részletében alaposan kivitelezett, otthonok.

Ez nem pusztán egy ház – élmény!
Ha számodra is elsődleges a nyugalom, a modern elegancia, a zöld megoldások és az energiabarát kiváló elrendezésű otthon, akkor itt a tökéletes lehetőség.
Ne maradj le! Vedd fel velünk a kapcsolatot ma, és biztosítsd be helyed ebben az elragadó, természetközeli környezetben!

Hitel esetén díjmentes ügyintézés. Összes bank ajánlata egy helyen, kedvezményekkel.

Nem adta el ingatlanát? NE ADJA EL PIACI ÁR ALATT! Segítünk. Minden ügyfelünknek ingyenesen felmérjük az otthonát! Hívjon vagy írjon, a további információkért.

Hirdetés feltöltve: 2025. 11. 05. Utoljára módosítva: 2025. 11. 05.

4 szobás ikerházak ára Vasadon

Ebből az összehasonlításból megtudhatod, hogyan viszonyul a lakás ára a környékbeli ikerházak átlagos árához. Ez nem azt jelenti, hogy ennyivel olcsóbb vagy drágább, mint amennyit a lakás ér, hanem hogy ennyivel tér el a környékbeli átlagtól.

Ennek a m² ára
Vasad m² ár
713 e Ft
723 e Ft 1%
Ennek az ára
Vasad átlagár
71.99 M Ft m Ft
77.1 m Ft 7%

Az ingatlan elhelyezkedése

Cím: Vasad

Eladó ingatlanok a környékről

Eladó ikerház
Eladó ikerház

Üröm

220 M Ft
4 szoba
130 m2
Eladó ikerház
Eladó ikerház

Szentendre

179 M Ft
5 + 1 szoba
147 m2
Eladó családi ház
Eladó családi ház

Albertirsa

99.99 M Ft
4 szoba
136 m2
Eladó ikerház
Eladó ikerház

Vácrátót

94.9 M Ft
2 + 3 szoba
108 m2
Eladó ikerház
Eladó ikerház

Vasad

75.9 M Ft
4 szoba
91 m2
Eladó családi ház
Eladó családi ház

Pilisszentkereszt

164 M Ft
6 szoba
330 m2
Eladó ikerház
Eladó ikerház

Dunakeszi

149 M Ft
1 + 4 szoba
127 m2
Eladó telek
Eladó telek

Mogyoród

42.5 M Ft
633 m²
633 m2
Eladó ikerház
Eladó ikerház

Vasad

76.9 M Ft
4 szoba
115 m2
Eladó ikerház
Eladó ikerház

Vác

96.7 M Ft
4 + 1 szoba
126 m2
Eladó ikerház
Eladó ikerház

Szentendre

718 M Ft
10 + 2 szoba
578 m2
Eladó ikerház
Eladó ikerház

Vasad

71.9 M Ft
4 szoba
103 m2
Eladó ikerház
Eladó ikerház

Pilisjászfalu

70.563 M Ft
4 szoba
61 m2
Eladó ikerház
Eladó ikerház

Veresegyház

145 M Ft
4 szoba
120 m2
Eladó családi ház
Eladó családi ház

Albertirsa

99.99 M Ft
4 szoba
136 m2
Eladó családi ház
Eladó családi ház

Érd

139.9 M Ft
5 szoba
128 m2
Eladó családi ház
Eladó családi ház

Pilisvörösvár

249.9 M Ft
5 szoba
257 m2
Eladó ikerház
Eladó ikerház

Vasad

75.9 M Ft
4 szoba
91 m2
Eladó családi ház
Eladó családi ház

Pilisszentkereszt

164 M Ft
6 szoba
330 m2
Eladó ikerház
Eladó ikerház

Diósd

206.25 M Ft
5 szoba
184 m2
Eladó ikerház
Eladó ikerház

Pomáz

129.5 M Ft
4 szoba
100 m2
Eladó ikerház
Eladó ikerház

Pusztazámor

55 M Ft
10 szoba
470 m2
Eladó ikerház
Eladó ikerház

Vasad

76.9 M Ft
4 szoba
115 m2
Eladó ikerház
Eladó ikerház

Vasad

76.9 M Ft
4 szoba
115 m2

Falusi CSOK ingatlanok

Eladó családi ház
Eladó családi ház

Letenye

46.5 M Ft
7 szoba
220 m2
Eladó családi ház
Eladó családi ház

Gyömöre

45.99 M Ft
2 szoba
118 m2
Eladó családi ház
Eladó családi ház

Egerág, Pozsonyi utca

26.9 M Ft
3 szoba
96 m2
Eladó családi ház
Eladó családi ház

Fülöpszállás

299 M Ft
14 + 5 szoba
680 m2
Eladó családi ház
Eladó családi ház

Kesztölc

129.9 M Ft
8 szoba
210 m2
Eladó ikerház
Eladó ikerház

Balatonakali

129 M Ft
4 szoba
145 m2
Eladó családi ház
Eladó családi ház

Jakabszállás

62.9 M Ft
4 szoba
91 m2
Eladó családi ház
Eladó családi ház

Balatonfenyves

430 M Ft
4 szoba
274 m2