Oasis Residence

Eladó ikerház
Vácrátót

+ 3 kép 1/6
115 000 000 Ft115 M Ft 1 008 772 Ft/m2
5 szoba
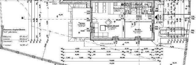
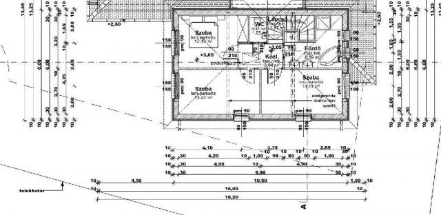
114 m2
építés éve:2025

Részletes adatok

Telekméret: 376 m2
Fűtés: Egyéb
Energetikai besorolás: Nem adta meg a hirdető

Az OTP Bank lakáshitel ajánlataFizetett hirdetés

+36 20 220
Szabó Sándor
referens

Érdekel az OTP Bank kedvezményes lakáshitel ajánlata? *

* A kérdésre „Igen” válasz bejelölése esetén, az „Üzenet küldése” gombra kattintva kijelentem, hogy az OTP Bank Nyrt. Adatkezelési tájékoztatójának tartalmát megismertem és tudomásul vettem.

Eladó ikerház leírása

ELADÓ ÚJ ÉPÍTÉSŰ KÉTSZINTES CSALÁDI HÁZ A SZENT ISTVÁN LAKÓPARKBAN!
Vácrátót egyik legfelkapottabb részén, a Szent István-LAKÓPARKBAN várja Önt ez az új építésű családi ház.

Az ingatlan amerikai konyhás nappaliból, 4 hálószobából, fürdőszobából, külön zuhanyzóból, kamrából, és különálló WC helyiségből áll!
A nappalihoz terasz kapcsolódik.
Az ikerfelek külön alapra épülnek, dupla 30-as téglafallal és közöttük szigeteléssel, nincs áthallás!

A műszaki tartalom:

Porotherm 30 külső falazat, 12 cm grafitos dryvit szigetelés.
Fehér színű műanyag ablakok 3 rétegű hőszigetelt üvegezéssel.
Vasbetonfödém 25 cm ásványgyapot szigeteléssel, betoncserép fedés.
Riasztó előkészítés, klíma kiállás.
H tarifás mérőóra.
Az otthon melegéről hőszivattyú gondoskodik, padlófűtéssel, ami kényelmes és energiatakarékos megoldás.
A gépkocsi tárolása az udvarban, térkövezett beállón lehetséges.
Utcafronti és telkeket elválasztó kerítés is épül.
Burkolatok, szaniterek, belső ajtók még választhatóak.

Céges építkezés.
Jelenleg aktuális állami támogatások, kamattámogatott hitelek igénybe vehetőek.
CSOK+ és Otthon Start hitel és Babaváró ügyintézésben díjmentes segítséget nyújtunk.

Referenciákkal rendelkező, megbízható építtetőtől.
Átadás 2026. 2. negyedév.

Vácrátót a Budapesti Agglomeráció területén, a Gödöllői-dombság peremén fekvő település, Vác és Veresegyház között, igazán szép természeti környezetben.
Az ide látogatókat rendezett, tiszta utcák, közterületek, felújított középületek, műemlék épületek, valamint a méltán híres Nemzeti Botanikus Kert fogadja.
A rohamosan fejlődő Szent István lakópark Vácrátót új parcellázású része, a település szélén, természetvédelmi terület mellett helyezkedik el, szép panorámával rendelkezik.
Iskola, óvoda, bolt, buszmegálló gyalogosan 10 perc alatt elérhető.

Keressen bizalommal, akár hétvégén is!
Érd.: Szabó Sándor +3620-220 4440

Referencia szám: M313976-ZE

Hirdetés feltöltve: 2025. 12. 13. Utoljára módosítva: 2025. 12. 14.

5 szobás ikerházak ára Vácrátóton

Ebből az összehasonlításból megtudhatod, hogyan viszonyul a lakás ára a környékbeli ikerházak átlagos árához. Ez nem azt jelenti, hogy ennyivel olcsóbb vagy drágább, mint amennyit a lakás ér, hanem hogy ennyivel tér el a környékbeli átlagtól.

Ennek a m² ára
Vácrátót m² ár
1009 e Ft
956 e Ft -6%
Ennek az ára
Vácrátót átlagár
115 M Ft m Ft
99.1 m Ft -16%

Az ingatlan elhelyezkedése

Cím: Vácrátót

Eladó ikerházak a környékről

Eladó ikerház
Eladó ikerház

Szentendre

179 M Ft
5 + 1 szoba
147 m2
Eladó ikerház
Eladó ikerház

Vácrátót

92 M Ft
2 + 2 szoba
96 m2
Eladó ikerház
Eladó ikerház

Pomáz

129.5 M Ft
4 szoba
100 m2
Eladó ikerház
Eladó ikerház

Érd, Érdligeten található utca

64.9 M Ft
4 szoba
112 m2
Eladó ikerház
Eladó ikerház

Vácrátót

98.9 M Ft
4 szoba
90 m2
Eladó ikerház
Eladó ikerház

Vác

175.356 M Ft
5 szoba
165 m2
Eladó ikerház
Eladó ikerház

Rád

100 M Ft
4 szoba
152 m2
Eladó ikerház
Eladó ikerház

Vácrátót

99.8 M Ft
4 szoba
95 m2
Eladó ikerház
Eladó ikerház

Üröm

249.9 M Ft
4 szoba
154 m2
Eladó ikerház
Eladó ikerház

Vácrátót

94.9 M Ft
5 szoba
109 m2
Eladó ikerház
Eladó ikerház

Vácrátót

99.9 M Ft
5 szoba
110 m2
Eladó ikerház
Eladó ikerház

Vácrátót

96 M Ft
4 szoba
77 m2
Eladó ikerház
Eladó ikerház

Vácrátót

89.9 M Ft
4 szoba
88 m2
Eladó ikerház
Eladó ikerház

Vácrátót

79.9 M Ft
4 szoba
88 m2
Eladó ikerház
Eladó ikerház

Diósd

206.25 M Ft
5 szoba
184 m2
Eladó ikerház
Eladó ikerház

Tahitótfalu

88.9 M Ft
4 szoba
110 m2
Eladó ikerház
Eladó ikerház

Pilisjászfalu

70.563 M Ft
4 szoba
61 m2
Eladó ikerház
Eladó ikerház

Vácrátót

99.9 M Ft
4 szoba
112 m2
Eladó ikerház
Eladó ikerház

Mogyoród, Fóti út

188 M Ft
6 szoba
182 m2
Eladó ikerház
Eladó ikerház

Vácrátót

94.9 M Ft
2 + 3 szoba
108 m2
Eladó ikerház
Eladó ikerház

Veresegyház

145 M Ft
4 szoba
120 m2
Eladó ikerház
Eladó ikerház

Vácrátót

94.9 M Ft
4 szoba
108 m2
Eladó ikerház
Eladó ikerház

Vácrátót

74.5 M Ft
4 szoba
85 m2
Eladó ikerház
Eladó ikerház

Vácrátót

85 M Ft
2 + 2 szoba
96 m2

Falusi CSOK ingatlanok

Eladó családi ház
Eladó családi ház

Pétfürdő

74.9 M Ft
3 szoba
89 m2
Eladó családi ház
Eladó családi ház

Kemeneshőgyész

8 M Ft
2 szoba
60 m2
Eladó családi ház
Eladó családi ház

Olaszfa

39.9 M Ft
4 szoba
96 m2
Eladó téglalakás
Eladó téglalakás

Balatonszemes

110.9 M Ft
2 szoba
60 m2
Eladó családi ház
Eladó családi ház

Ősi

64.9 M Ft
4 szoba
181 m2
Eladó családi ház
Eladó családi ház

Magyarszék

48.5 M Ft
3 + 1 szoba
86 m2
Eladó családi ház
Eladó családi ház

Patak

26.9 M Ft
4 szoba
160 m2
Eladó családi ház
Eladó családi ház

Ipolyvece

18.9 M Ft
3 + 1 szoba
91 m2