Oasis Residence

Eladó ikerház
Vácrátót

1/2
82 500 000 Ft82.5 M Ft 1 161 972 Ft/m2
4 szoba
71 m2
építés éve:2026

Részletes adatok

Telekméret: 400 m2
Fűtés: Egyéb
Parkolás: Kocsibeálló
Közmű: Víz, Villany, Csatorna, Szélessáv, Telefon
Energetikai besorolás: Nem adta meg a hirdető

Az OTP Bank lakáshitel ajánlataFizetett hirdetés

+36 20 231
Bene Kriszti
referens

Érdekel az OTP Bank kedvezményes lakáshitel ajánlata? *

* A kérdésre „Igen” válasz bejelölése esetén, az „Üzenet küldése” gombra kattintva kijelentem, hogy az OTP Bank Nyrt. Adatkezelési tájékoztatójának tartalmát megismertem és tudomásul vettem.

Eladó ikerház leírása

Új építésű ingatlanokra vonatkozó kedvezmények igénybe vehetők!!! /CSOK, támogatott hitel, illeték kedvezmény, START hitel/.

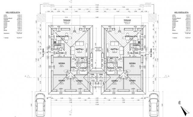
Vácrátóton a Szent István lakóparkban 1513 nm-es telekre épülő, egyszintes amerikai-konyhás-nappalis + 3 szobás, teraszos, kocsibeállós ikerház mindkét két fele eladó.

A ház nettó: 71,27 nm
Terasz: 12,24 nm
Telek: 400,00 nm

Műszaki tartalom:
SZERKEZETI KIALAKÍTÁSA:
--ALAPOZÁS: Az épület alapja:sávalap,földben 90 centiméter mély és 50 centiméter magas,50 cm
széles lábazat kerül megépítésre.
--TEHERHORDÓ FALAK ÉS SZERKEZETEK:
A külső főfalak 30-as Porotherm téglából kerülnek felfalazásra.
--BELSŐ VÁLASZFALAK: Porotherm 10-es tégla.
--KIVÁLTÓK: A külső nyílászárók fölött álló kialakítású Porotherm kiváltók készülnek.
--FÖDÉMSZERKEZET: Földszintes lakásnál zárófödém E gerendás beton födém és beton béléstettel
készül. Emeletes lakásnál zárófödém, fafödém lesz. Födém szigetelés 20 cm.
--TETŐSZERKEZET: Hagyományos fa fedélszerkezet. Az összes faanyag láng és rovarmentesítő
kezelése áztatásos módszerrel lesz elvégezve.
--TETŐFEDÉS: Betoncseréppel.
--BÁDOGOZÁS: Horganyzott bádog lemezből.
--VÍZSZIGETELÉS: A földszinti homlokzati főfalak és aljzatbeton alá bitumenes vastaglemez szigetelés
készül.
--HŐ ÉS HANGSZIGETELÉS: Az aljzatbetonba 12 cm lépésálló kerül.
A külső szigetelés 12 cm dryvit rendszerrel lesz szigetelve.
--FELÜLET KÉPZÉS: A belső falak vakoltak. Diszperziós festést kapnak.
A mennyezetek glettelt , festett kivitelben készülnek.
--HOMLOKZATI NYÍLÁSZÁRÓ SZERKEZETEK:
A külső nyílászárók műanyag gyártásúak hőszigeteltek, 3 rétegűek 4-16-4 K =1,0 5 légkamrásak.
--BELSŐ AJTÓK: A belső ajtók utólag beépíthetők lesznek 50.000. Ft.-ig választható.
--IVÓVÍZELLÁTÁS: Minden egyes lakásnak külön vízórája van lehetővé téve a fogyasztás alapján
történő díjfizetést.
A lakás vizes berendezéseit ellátó vízvezeték falhoronyba kerül beszerelésre.
--BURKOLATOK:
Fürdőszobákba 2,10 cm magasságig csempézve.
Választható kerámia burkolatok bruttó: 5000/m2
Laminált burkolatok szegélyléccel
+ alátét fóliával + alátét szivaccsal együtt bruttó: 4000/m2
SZANITEREK: 1 db kád 40.000.-ft
1 db kádtöltő 25.000.-ft
2 db mosdó 15.000-/db) 30.000.-ft
2 db mosdócsap 30.000.-ft
összesen: 125.000.-ft
A WC + tartály 40.000.Ft.
A konyhában a konyhabútor között 60 cm burkolat készül.
A konyha csempe 4000-ft/m2 áron választható.
A teraszok burkolata 4000/FT/m2 áron választható.
--GÉPÉSZET:
Hőszivattyú (8KW) fűtés lesz melyet az eladó 1.000.000.-ft-ig áll.
Fűtés csövezés: műanyag fűtéscső padlóba szerelve, minden helyiségben , a fürdőszobába
törölközőszárító kerül. ,ami elektromos patronos lesz.
A vízvezeték ötrétegű csőből van ,a falba rejtve kerülnek beszerelésre. A zuhanykabin beszerelését
szakszerviz végzi a vevő költségére. A fürdőszobai szekrények összeszerelése a vevő dolga, vagy
megbeszélés szerint, külön díj ellenében, a vízszerelő összeszereli. A konyhai csaptelep bekötése
plusz költség. A konyhai elszívó kifúrása plusz költség.
--VILLANY: Konnektorok és kapcsolók összesen 50db, 4db tv.csatlakozó,1 db
termosztát,tűzhely,biztosíték tábla,elektromos kapu kiállás és kaputelefon kiállás,16db lámpa
kiállás.Riasztó csövezés,riasztó vezeték behúzása.
Plusz szerelvény kiépítése és beszerelése megbeszélt áron a villanyszerelővel.
--KERÍTÉS: Utcafronton : 2 sor zsalukő lábazat és lemezközökkel.
Az elválasztó kerítések vakoltan lesznek, zsalukő lábazatban zárt szelvény
oszlopokon feszített drótháló van.
--TEREPRENDEZÉS:
Esővíz-elvezetése kulé gödrökbe.
Durva tereprendezés az épület körül , a gyalogos bejárónál és a gépkocsi beálló vonalában viacolor
burkolat lesz. Egy darab kerti csap.
A padlófűtés a vételár részét képezik, amelyet az eladó áll.
HA AZ INGATLANON BÁRMILYEN VÁLTOZTATÁS KÉSZÜLNE AMELY ELTÉR A MEGADOTT MŰSZAKI
LEÍRÁSTÓL , ABBAN AZ ESETBEN VEVŐ EGYEZTESSEN AZ ELADÓVAL A VÁLTOZTATÁS KÖLTSÉGÉRŐL ,
ILLETVE A MUNKA MENET MEGBESZÉLÉSÉRŐL.

Hirdetésemre kattintva a jobb felső részén a nevem alatt található a többi hirdetésem.
Banki hitelügyintézővel, ügyvéddel rendelkezésre állok, így bármilyen jogi dologban tudunk segíteni.

Hirdetés feltöltve: 2025. 10. 23. Utoljára módosítva: 2025. 11. 05.

4 szobás ikerházak ára Vácrátóton

Ebből az összehasonlításból megtudhatod, hogyan viszonyul a lakás ára a környékbeli ikerházak átlagos árához. Ez nem azt jelenti, hogy ennyivel olcsóbb vagy drágább, mint amennyit a lakás ér, hanem hogy ennyivel tér el a környékbeli átlagtól.

Ennek a m² ára
Vácrátót m² ár
1162 e Ft
1045 e Ft -11%
Ennek az ára
Vácrátót átlagár
82.5 M Ft m Ft
91.1 m Ft 9%

Az ingatlan elhelyezkedése

Cím: Vácrátót

Eladó ikerházak a környékről

Eladó ikerház
Eladó ikerház

Pomáz

129.5 M Ft
4 szoba
100 m2
Eladó ikerház
Eladó ikerház

Vácrátót

98.9 M Ft
4 szoba
90 m2
Eladó ikerház
Eladó ikerház

Szentendre

359 M Ft
5 szoba
289 m2
Eladó ikerház
Eladó ikerház

Vác

175.356 M Ft
5 szoba
165 m2
Eladó ikerház
Eladó ikerház

Üröm

249.9 M Ft
4 szoba
154 m2
Eladó ikerház
Eladó ikerház

Pilisjászfalu

70.563 M Ft
4 szoba
61 m2
Eladó ikerház
Eladó ikerház

Érd, Érdligeten található utca

64.9 M Ft
4 szoba
112 m2
Eladó ikerház
Eladó ikerház

Szentendre, Szentendre

398 M Ft
5 szoba
267 m2
Eladó ikerház
Eladó ikerház

Solymár

150 M Ft
4 + 2 szoba
252 m2
Eladó ikerház
Eladó ikerház

Vácrátót

51.5 M Ft
3 szoba
51 m2
Eladó ikerház
Eladó ikerház

Tahitótfalu

88.9 M Ft
4 szoba
110 m2
Eladó ikerház
Eladó ikerház

Vácrátót

94.9 M Ft
2 + 3 szoba
108 m2
Eladó ikerház
Eladó ikerház

Pécel

149.9 M Ft
5 szoba
306 m2
Eladó ikerház
Eladó ikerház

Vácrátót

85.9 M Ft
4 szoba
85 m2
Eladó ikerház
Eladó ikerház

Vácrátót

86.5 M Ft
4 szoba
87 m2
Eladó ikerház
Eladó ikerház

Vác

94.5 M Ft
4 + 1 szoba
126 m2
Eladó ikerház
Eladó ikerház

Vác

149.9 M Ft
5 szoba
202 m2
Eladó ikerház
Eladó ikerház

Diósd

206.25 M Ft
5 szoba
184 m2
Eladó ikerház
Eladó ikerház

Diósd

213.46 M Ft
5 szoba
186 m2
Eladó ikerház
Eladó ikerház

Mogyoród, Fóti út

188 M Ft
6 szoba
182 m2
Eladó ikerház
Eladó ikerház

Pusztazámor

55 M Ft
10 szoba
470 m2
Eladó ikerház
Eladó ikerház

Vácrátót

74.5 M Ft
4 szoba
85 m2
Eladó ikerház
Eladó ikerház

Vácrátót

89.9 M Ft
4 szoba
88 m2
Eladó ikerház
Eladó ikerház

Vácrátót

91.9 M Ft
5 szoba
108 m2

Falusi CSOK ingatlanok

Eladó családi ház
Eladó családi ház

Pécsely, Szőlő Dülő

499 M Ft
4 + 2 szoba
183 m2
Eladó családi ház
Eladó családi ház

Szigliget

125 M Ft
2 + 2 szoba
137 m2
Eladó családi ház
Eladó családi ház

Bugac

69.9 M Ft
4 szoba
130 m2
Eladó családi ház
Eladó családi ház

Bősárkány

46.99 M Ft
3 szoba
86 m2
Eladó családi ház
Eladó családi ház

Cece

23.5 M Ft
3 szoba
66 m2
Eladó családi ház
Eladó családi ház

Nemesszentandrás

75 M Ft
4 szoba
164 m2
Eladó családi ház
Eladó családi ház

Tabdi

95 M Ft
45 szoba
1490 m2
Eladó családi ház
Eladó családi ház

Kapoly

27.9 M Ft
3 szoba
65 m2