Eladó ikerház
Vácrátót

1/2
51 500 000 Ft51.5 M Ft 1 009 804 Ft/m2
3 szoba
51 m2
építés éve:2025

Részletes adatok

Telekméret: 200 m2
Fűtés: Egyéb
Parkolás: Kocsibeálló
Közmű: Víz, Villany, Csatorna
Energetikai besorolás: Nem adta meg a hirdető

Az OTP Bank lakáshitel ajánlataFizetett hirdetés

+36 20 231
Bene Kriszti
referens

Érdekel az OTP Bank kedvezményes lakáshitel ajánlata? *

* A kérdésre „Igen” válasz bejelölése esetén, az „Üzenet küldése” gombra kattintva kijelentem, hogy az OTP Bank Nyrt. Adatkezelési tájékoztatójának tartalmát megismertem és tudomásul vettem.

Eladó ikerház leírása

Vácrátóton eladó ikerház mind két oldala!!!

Új építésű ingatlanokra vonatkozó kedvezmények igénybe vehetők!!!

A vállalkozó számos referenciával rendelkező cég építi, így a közelben több referencia ház megtekinthető.

Panel lakás áráért, kis kertes ikerház!!!

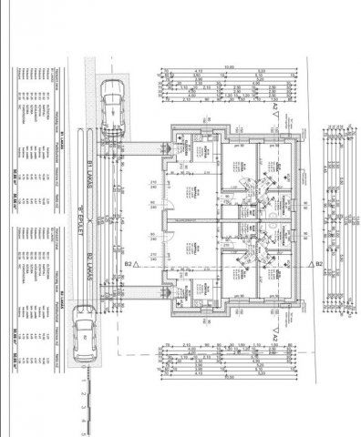
A ház nettó: 50,66 nm
Terasz: 5 nm
Telek: 189 nm

A lakás elosztása:
előszoba 2,20 nm
nappali 16,80 nm
konyha 4,41 nm
közlekedő 4,57 nm
szoba 8,45 nm
szoba 8,45 nm
fürdőszoba 4,70 nm
wc 1,08 nm
terasz 5,00 nm

Parkolás: zárt udvaron belül

Műszaki tartalma:
-30 pth tégla
-10 cm Porotherm válaszfal
-12 cm dryvit szigetelés
-a ház külső színe fehér
-25 cm tetőtéri szigetelés
-LEIRER beton cserép
Nyílászáró:
-5 légkamrás, 3 rétegű hőszigetelt nyílászáró
Bejárati ajtó: 150.000.-Ft/db
Belső ajtók: 60.000.-Ft/db , kilinccsel
Szaniterek, csaptelepek: összesen 250.000.-Ft
Meleg burkolat 5.000.-Ft/nm
Hideg burkolat 6.000.-Ft/nm
Fűtés: -hőszivattyú
-padlófűtéssel
-fürdőszobában törölköző szárítós radiátor
2 db GREE inverteres 3,5 KW-os klíma
/Gáz nem lesz bekötve a házba/
Festés: belső falak vakolás után kétszeri glettelés, kétszeri festés, fehér színben.
Villamos:
-3x15 Amper
-55 db kapcsolók és aljzatok /további kiállás 20.000.-FT/db/
-1 db internet csatlakozás
-1 db alap riasztó kiállás
-elektromos tűzhely kiállás
-páraelszívó kiállás
-kaputelefon kiállás
-kapu elektromos kiállás

Kerítés:
-2 sor zsalukő
-léckerítés
-ház körül 50 cm-es betonjárda
-1 db kerti csap

Udvar:
-durva tereprendezés

Parkolás: zárt udvaron belül

Kulcsrakész átadás: 2026. Június

Hirdetés feltöltve: 2025. 06. 07. Utoljára módosítva: 2025. 09. 30.

Az ingatlan elhelyezkedése

Cím: Vácrátót

Eladó ikerházak a környékről

Eladó ikerház
Eladó ikerház

Vác

175.356 M Ft
5 szoba
165 m2
Eladó ikerház
Eladó ikerház

Vácrátót

83.9 M Ft
5 szoba
96 m2
Eladó ikerház
Eladó ikerház

Üröm

249.9 M Ft
4 szoba
154 m2
Eladó ikerház
Eladó ikerház

Vácrátót

74.9 M Ft
5 szoba
107 m2
Eladó ikerház
Eladó ikerház

Érd, Érdliget - Kutyavár, Érdligeten található utca

64.9 M Ft
4 szoba
112 m2
Eladó ikerház
Eladó ikerház

Vácrátót

86.5 M Ft
4 szoba
87 m2
Eladó ikerház
Eladó ikerház

Dunaharaszti

124.999 M Ft
4 szoba
105 m2
Eladó ikerház
Eladó ikerház

Kiskunlacháza

89.1 M Ft
4 szoba
99 m2
Eladó ikerház
Eladó ikerház

Pécel

149.9 M Ft
5 szoba
306 m2
Eladó ikerház
Eladó ikerház

Szentendre

359 M Ft
5 szoba
289 m2
Eladó ikerház
Eladó ikerház

Vácrátót

77.99 M Ft
5 szoba
134 m2
Eladó ikerház
Eladó ikerház

Pilisjászfalu

70.563 M Ft
4 szoba
61 m2
Eladó ikerház
Eladó ikerház

Rád

100 M Ft
4 szoba
152 m2
Eladó ikerház
Eladó ikerház

Vácrátót

73.99 M Ft
2 + 2 szoba
86 m2
Eladó ikerház
Eladó ikerház

Vácrátót

99.9 M Ft
5 szoba
110 m2
Eladó ikerház
Eladó ikerház

Vác

94.5 M Ft
4 + 1 szoba
126 m2
Eladó ikerház
Eladó ikerház

Vácrátót

94.9 M Ft
5 szoba
109 m2
Eladó ikerház
Eladó ikerház

Szentendre, Szentendre

398 M Ft
5 szoba
267 m2
Eladó ikerház
Eladó ikerház

Vácrátót

99.9 M Ft
3 + 2 szoba
112 m2
Eladó ikerház
Eladó ikerház

Vácrátót

72.9 M Ft
2 + 2 szoba
86 m2
Eladó ikerház
Eladó ikerház

Vácrátót

98.9 M Ft
4 szoba
90 m2
Eladó ikerház
Eladó ikerház

Vác

149.9 M Ft
5 szoba
202 m2
Eladó ikerház
Eladó ikerház

Dunakeszi

149 M Ft
1 + 4 szoba
127 m2
Eladó ikerház
Eladó ikerház

Pusztazámor

55 M Ft
10 szoba
470 m2

Falusi CSOK ingatlanok

Eladó családi ház
Eladó családi ház

Kisláng

15 M Ft
3 szoba
70 m2
Eladó családi ház
Eladó családi ház

Szőlősgyörök, Táncsics Mihály utca

47.999 M Ft
5 szoba
105 m2
Eladó családi ház
Eladó családi ház

Tiszatenyő

31 M Ft
3 szoba
100 m2
Eladó családi ház
Eladó családi ház

Magyarszék

48.5 M Ft
3 + 1 szoba
86 m2
Eladó családi ház
Eladó családi ház

Szécsisziget

12.5 M Ft
1 szoba
57 m2
Eladó családi ház
Eladó családi ház

Magyarpolány

53 M Ft
2 szoba
71 m2
Eladó családi ház
Eladó családi ház

Úrkút, Temető utca

99 M Ft
7 szoba
540 m2
Eladó családi ház
Eladó családi ház

Balatonkeresztúr, Dózsa György u. 29

145 M Ft
5 szoba
150 m2