NapForrás 20 - Buda

Eladó ikerház
Tura

+ 11 kép 1/14
56 900 000 Ft56.9 M Ft 1 016 071 Ft/m2
3 szoba
56 m²
építés éve:2026

Részletes adatok

Telekméret: 237 m2
Fűtés: Egyéb
Energetikai besorolás: Nem adta meg a hirdető

Az OTP Bank lakáshitel ajánlataFizetett hirdetés

3629769723
Majzikné Tóth Krisztina
referens

Érdekel az OTP Bank kedvezményes lakáshitel ajánlata? *

* A kérdésre „Igen” válasz bejelölése esetén, az „Üzenet küldése” gombra kattintva kijelentem, hogy az OTP Bank Nyrt. Adatkezelési tájékoztatójának tartalmát megismertem és tudomásul vettem.

Eladó ikerház leírása

Megvételre kínáljuk Tura legjobb részén hat lakásos sorház utolsó lakását.

A lakás két szintes, tetőtér-beépítéses, korszerű műszaki tartalommal rendelkező ingatlan, saját tulajdonú telekrésszel.
Délkeleti fekvésű nappalival és szobákkal rendelkezik, így a belső terek világosak és napfényesek.
A modern épületgépészeti megoldásoknak az ingatlan A+ energetikai besorolású, ami kedvező fenntartási költségeket biztosít.
A fűtésről hőszivattyús rendszer gondoskodik padlófűtéssel, nyáron pedig mennyezethűtés biztosítja kellemes hőmérsékletet.
A szobákban laminált parkettázott, a vizes helyiségekben strapabíró SPC burkolat található.
A fa nyílászárók természetes hangulatot és jó hőszigetelést biztosítanak.

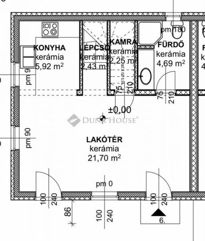
Helyiségek elosztása:

Földszint:
-nappali konyha étkező egy légtérben
-előszoba
-fürdőszoba
-gépészeti helyiség / kamra

Emelet:
-előtér
-külön WC
-2 hálószoba

Elhelyezkedését tekintve kiváló, újépítésű házak szomszádságában, csendes utcában található.
Bevásárlási lehetőség 100 m
Buszmegálló 300 m
Vasútállomás 3 km

Ha egy modern, kényelmes és könnyen fenntartható otthont keresel, ez az ingatlan remek választás lehet.

Ha hirdetésem felkeltette érdeklődését, várom hívását a hét minden napján!
Jöjjön, nézzük meg együtt!
Ajánlatom megfelelne az elvárásainak, de nem rendelkezik az ingatlan teljes vételárával?
A díjmentes, bankfüggetlen hiteltanácsadónk kötelezettségmentesen áll rendelkezésére.

Az energetikai tanúsítvány készítése folyamatban van, amint rendelkezésre áll, úgy azzal a hirdetés frissítésre kerül.

Érd.: Majzikné Tóth Krisztina, tel.: +36/20 927 3299, e-mail: majzikne.krisztina@dh.hu

Referencia szám: HZ098727

Hirdetés feltöltve: 2026. 04. 11. Utoljára módosítva: 2026. 05. 26.

3 szobás ikerházak ára Turán

Ebből az összehasonlításból megtudhatod, hogyan viszonyul a lakás ára a környékbeli ikerházak átlagos árához. Ez nem azt jelenti, hogy ennyivel olcsóbb vagy drágább, mint amennyit a lakás ér, hanem hogy ennyivel tér el a környékbeli átlagtól.

Ennek a m² ára
Tura m² ár
1016 e Ft
925 e Ft -10%
Ennek az ára
Tura átlagár
56.9 M Ft m Ft
54.1 m Ft -5%

Az ingatlan elhelyezkedése

Cím: Tura

Eladó ikerházak a környékről

Tura
Eladó ikerház

Tura

59.9 M Ft
3 szoba
58 m²
Kiskunlacháza
Eladó ikerház

Kiskunlacháza

44.9 M Ft
2 szoba
39 m²
Vácrátót
Eladó ikerház

Vácrátót

94.9 M Ft
2 + 3 szoba
108 m²
Pécel
Eladó ikerház

Pécel

149.9 M Ft
5 szoba
306 m²
Tura
Eladó ikerház

Tura

67.3 M Ft
3 szoba
100 m²
Pécel
Eladó ikerház

Pécel

389 M Ft
11 szoba
430 m²
Diósd
Eladó ikerház

Diósd

213.46 M Ft
5 szoba
186 m²
Vác
Eladó ikerház

Vác

96.7 M Ft
4 + 1 szoba
126 m²
Szentendre
Eladó ikerház

Szentendre

179 M Ft
5 + 1 szoba
147 m²
Herceghalom
Eladó ikerház

Herceghalom

148 M Ft
5 szoba
134 m²
Mogyoród
Eladó ikerház

Mogyoród

135 M Ft
5 szoba
137 m²
Vác
Eladó ikerház

Vác

99.7 M Ft
4 + 1 szoba
129 m²
Tura
Eladó ikerház

Tura

67 M Ft
3 szoba
98 m²
Érd
Eladó ikerház

Érd

177.7 M Ft
7 szoba
181 m²
Tura
Eladó ikerház

Tura

65.5 M Ft
4 szoba
77 m²
Tura
Eladó ikerház

Tura

84.2 M Ft
4 szoba
123 m²
Tura
Eladó ikerház

Tura

49.9 M Ft
3 szoba
56 m²
Vác
Eladó ikerház

Vác

149.9 M Ft
5 szoba
202 m²
Pomáz
Eladó ikerház

Pomáz

129.5 M Ft
4 szoba
100 m²
Tura
Eladó ikerház

Tura

53.9 M Ft
3 szoba
56 m²
Tura
Eladó ikerház

Tura

49.9 M Ft
3 szoba
56 m²
Tura
Eladó ikerház

Tura

56.9 M Ft
3 szoba
56 m²
Hernád
Eladó ikerház

Hernád

41.3 M Ft
3 szoba
68 m²
Diósd
Eladó ikerház

Diósd

206.25 M Ft
5 szoba
184 m²

Falusi CSOK ingatlanok

Ostffyasszonyfa
Eladó családi ház

Ostffyasszonyfa

37.9 M Ft
5 szoba
494 m²
Ceglédbercel
Eladó családi ház

Ceglédbercel

89 M Ft
4 szoba
135 m²
Kislippó
Eladó családi ház

Kislippó

17.99 M Ft
3 szoba
100 m²
Újhartyán
Eladó családi ház

Újhartyán

59.9 M Ft
4 szoba
75 m²
Pócsa
Eladó családi ház

Pócsa

29.9 M Ft
4 szoba
113 m²
Nyáregyháza
Eladó ikerház

Nyáregyháza

75.9 M Ft
4 szoba
0 m²
Kunágota
Eladó családi ház

Kunágota

13.2 M Ft
4 szoba
115 m²
Tét
Eladó családi ház

Tét

14.5 M Ft
1 + 2 szoba
54 m²