Astora Márvány8

Eladó ikerház
Tordas

+ 11 kép 1/14
73 500 000 Ft73.5 M Ft 954 545 Ft/m2
1 + 3 szoba
77 m2
építés éve:2025

Részletes adatok

Telekméret: 307 m2
Fűtés: Geotermikus
Energetikai besorolás: Nem adta meg a hirdető

Az OTP Bank lakáshitel ajánlataFizetett hirdetés

+36 70 317
Papp Éva
OTPip - Érd Bajcsy-Zsilinszky út 160 - OTP Ingatlanpont Iroda

Érdekel az OTP Bank kedvezményes lakáshitel ajánlata? *

* A kérdésre „Igen” válasz bejelölése esetén, az „Üzenet küldése” gombra kattintva kijelentem, hogy az OTP Bank Nyrt. Adatkezelési tájékoztatójának tartalmát megismertem és tudomásul vettem.

Eladó ikerház leírása

!!! MODERN IKERHÁZ TORDAS CSENDES RÉSZÉN A+ ENERGETIKAI MINŐSÍTÉSSEL!!!
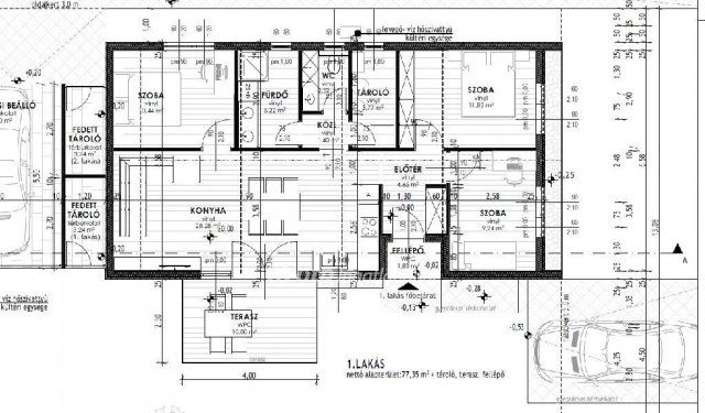
Eladó Tordas csendes részén egy 3 szobás modern ikerház első 77,3 m2-es lakása! Ez a könnyűszerkezetes épület minden modern komfortot magában foglal, és tökéletes otthona lehet egy kis családnak vagy egyedülállónak. Szerződés aláírását követően 5 hónap múlva be is költözhet!!!
Az ingatlan a csendes Tordas településen található, és könnyen megközelíthető a város központjából vagy az autópályáról. Az ikerház egyik fele 77,3 m2, a másik pedig 92,32 m2, a kisebb 3 hálószobával és egy tágas nappalival, a nagyobb pedig 3 hálószoba és nappalival rendelkezik. Minkét lakást terasz kapcsolja össze a saját kertjével.
Az ingatlan nagyon korszerű, és minden részletét az életminőség javítására tervezték. Az épület kiváló minőségű anyagokból készült, és az energiahatékonyságra is nagy hangsúlyt fektettek. A fűtése padlófűtés a legmodernebb hőszivattyúval, így az energiaköltségek minimálisak lesznek.
Az ingatlan előtt egy kényelmes parkoló található, és egy kis kert is tartozik hozzá. A környék csendes és barátságos, ideális a nyugodt életet kedvelőknek.
Az ikerház két lakását tárólók kötik össze és a nagyobb lakáshoz egy fedett autóbeálló is készül, így a két lakótér semmilyen felületen nem érintkezik egymással.
Teljes közművel rendelkezik, mind saját órával. Rezsije nagyon kedvező. Ajánlom pároknak első lakásnak, vagy családnak 1 kisgyerekkel!
Amennyiben felkeltettem érdeklődését, várom megtisztelő hívását a hét bármely napján. Az OTP Bankcsoport teljes körű ügyintézéssel áll az eladók és a vevők rendelkezésére! Az adásvételi szerződés megkötéséhez igény szerint megbízható ügyvédi közreműködést és sorban állás nélküli hitel tanácsadást biztosítunk ügyfeleink részére! Az ingatlan CSOKPlusz támogatásra is megfelel!

Referenciaszám: M291197

Hirdetés feltöltve: 2025. 08. 26. Utoljára módosítva: 2025. 12. 10.

Az ingatlan elhelyezkedése

Cím: Tordas

Eladó ingatlanok a környékről

Eladó ikerház
Eladó ikerház

Tordas

99.9 M Ft
5 szoba
130 m2
Eladó ikerház
Eladó ikerház

Úrhida

39.9 M Ft
4 szoba
91 m2
Eladó ikerház
Eladó ikerház

Tordas

126.9 M Ft
4 szoba
138 m2
Eladó ikerház
Eladó ikerház

Tordas

73.5 M Ft
1 + 3 szoba
77 m2
Eladó ikerház
Eladó ikerház

Gárdony

98 M Ft
2 + 3 szoba
110 m2
Eladó ikerház
Eladó ikerház

Székesfehérvár

38 M Ft
2 szoba
46 m2
Eladó ikerház
Eladó ikerház

Tordas, Gyúrói út

119.9 M Ft
4 szoba
134 m2
Eladó ikerház
Eladó ikerház

Tordas

109.99 M Ft
4 szoba
134 m2
Eladó ikerház
Eladó ikerház

Velence

105 M Ft
5 szoba
107 m2
Eladó ikerház
Eladó ikerház

Sárszentmihály

61.5 M Ft
3 szoba
73 m2
Eladó családi ház
Eladó családi ház

Kápolnásnyék

74 M Ft
3 szoba
100 m2
Eladó ikerház
Eladó ikerház

Tordas

73.5 M Ft
1 + 2 szoba
71 m2
Eladó ikerház
Eladó ikerház

Tordas

99.9 M Ft
5 szoba
130 m2
Eladó ikerház
Eladó ikerház

Ercsi

65 M Ft
4 szoba
101 m2
Eladó ikerház
Eladó ikerház

Tordas

263.8 M Ft
8 szoba
284 m2
Eladó ikerház
Eladó ikerház

Fehérvárcsurgó

69.9 M Ft
5 szoba
114 m2
Eladó ikerház
Eladó ikerház

Polgárdi

61.9 M Ft
4 szoba
135 m2
Eladó ikerház
Eladó ikerház

Ercsi

60 M Ft
4 szoba
85 m2
Eladó telek
Eladó telek

Mány, Háromrózsapuszta

4.7 M Ft
1600 m²
1600 m2
Eladó ikerház
Eladó ikerház

Tordas

59.9 M Ft
4 szoba
122 m2
Eladó ikerház
Eladó ikerház

Velence

82 M Ft
3 szoba
90 m2
Eladó ikerház
Eladó ikerház

Tordas

99.5 M Ft
5 szoba
130 m2
Eladó ikerház
Eladó ikerház

Tordas

87 M Ft
2 + 2 szoba
92 m2
Eladó ikerház
Eladó ikerház

Székesfehérvár

99 M Ft
4 szoba
92 m2

Falusi CSOK ingatlanok

Eladó családi ház
Eladó családi ház

Kenyeri

39.9 M Ft
3 szoba
94 m2
Eladó családi ház
Eladó családi ház

Magyarszék

48.5 M Ft
3 + 1 szoba
86 m2
Eladó családi ház
Eladó családi ház

Madaras

5.9 M Ft
3 szoba
90 m2
Eladó családi ház
Eladó családi ház

Géderlak

16.5 M Ft
3 szoba
101 m2
Eladó családi ház
Eladó családi ház

Bátmonostor, József Attila utca

16.5 M Ft
3 szoba
96 m2
Eladó családi ház
Eladó családi ház

Kondorfa, Alvég utca

34.9 M Ft
1 + 1 szoba
67 m2
Eladó családi ház
Eladó családi ház

Szederkény

107.9 M Ft
6 szoba
224 m2
Eladó családi ház
Eladó családi ház

Tápiógyörgye

32 M Ft
3 szoba
86 m2