Astora Art House

Eladó ikerház
Tolna

+ 11 kép 1/14
30 990 000 Ft30.99 M Ft 245 952 Ft/m2
4 + 2 szoba
126 m²
építés éve:1980

Részletes adatok

Állapot: Felújítandó
Telekméret: 617 m2
Fűtés: Elektromos
Energetikai besorolás: Nem adta meg a hirdető

Az OTP Bank lakáshitel ajánlataFizetett hirdetés

+36 70 615
Pásztor Hajnalka
Szigetszentmiklós OTP Ip

Érdekel az OTP Bank kedvezményes lakáshitel ajánlata? *

* A kérdésre „Igen” válasz bejelölése esetén, az „Üzenet küldése” gombra kattintva kijelentem, hogy az OTP Bank Nyrt. Adatkezelési tájékoztatójának tartalmát megismertem és tudomásul vettem.

Eladó ikerház leírása

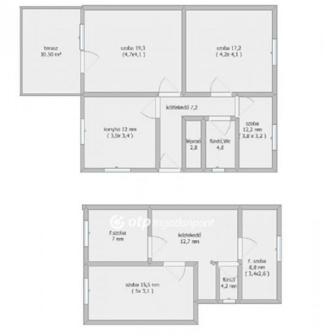
Tolna vármegye, Tolna városában a víztorony közelében eladó egy tetőtér beépítéses, téglából épült 4+2 szobás ház / ikerház egyik fele/. A földszinten 3 szoba, konyha, fürdő, közlekedő található. A nagyszobából kimehetünk egy fedett teraszra, mely a kertre néz. Az emeleten egy egész és két félszoba és fürdő található. Mindhárom szoba külön bejáratú, a közlekedőből nyílik. A ház elektromos fűtésű. Az épület alatt nagy és száraz szuterén található. A telek területe 617nm, melyen a konyhakert mellett garázs és egyéb melléképület áll rendelkezésre. A ház masszív, felújítása időszerűvé vált, de ez már az új tulajdonosra vár. A ház kertvárosi környezetben épült , csendes , átmenő forgalomtól mentes utcában. Ajánlom elsősorban nagy családosoknak. Amennyiben az ingatlan felkeltette érdeklődését, hívjon vagy írjon. Díjmentesen pénzügyi tanácsadással segítjük hitel, CSOK, babaváró igénybevételét is.
Referenciaszám:M266643

Hirdetés feltöltve: 2026. 04. 13. Utoljára módosítva: 2026. 05. 05.

Az ingatlan elhelyezkedése

Cím: Tolna

Eladó ingatlanok a környékről

Tolna
Eladó ikerház

Tolna

30.99 M Ft
4 + 2 szoba
126 m²
Sárszentlőrinc
Eladó családi ház

Sárszentlőrinc

19.9 M Ft
2 szoba
85 m²
Tolna
Eladó ikerház

Tolna

30.99 M Ft
4 + 2 szoba
126 m²
Dunaföldvár
Eladó téglalakás

Dunaföldvár

71.605 M Ft
3 szoba
68 m²
Tolna
Eladó ikerház

Tolna

30.99 M Ft
4 + 2 szoba
126 m²
Tolna
Eladó ikerház

Tolna

30.99 M Ft
4 + 2 szoba
126 m²
Dalmand
Eladó családi ház

Dalmand

24.99 M Ft
4 szoba
115 m²
Szekszárd
Eladó ikerház

Szekszárd

92.5 M Ft
2 + 2 szoba
96 m²
Tolna
Eladó ikerház

Tolna

30.99 M Ft
4 + 2 szoba
126 m²
Tolna
Eladó ikerház

Tolna

30.99 M Ft
4 + 2 szoba
126 m²
Szekszárd
Eladó mezogazdasagi ingatlan

Szekszárd

22.9 M Ft
2922 m²
50 m²
Dombóvár
Eladó téglalakás

Dombóvár

52 M Ft
3 szoba
70 m²
Hőgyész
Eladó téglalakás

Hőgyész

31 M Ft
3 szoba
140 m²
Döbrököz
Eladó családi ház

Döbrököz

24.9 M Ft
3 szoba
88 m²
Szekszárd
Eladó családi ház

Szekszárd

34.9 M Ft
2 + 1 szoba
50 m²
Paks, Búzavirág utca
Eladó ikerház

Paks

61.9 M Ft
3 szoba
100 m²
Tamási
Eladó ikerház

Tamási

28.2 M Ft
3 szoba
79 m²
Szekszárd
Eladó panellakás

Szekszárd

38.95 M Ft
2 szoba
59 m²
Őcsény
Eladó ikerház

Őcsény

50.9 M Ft
4 szoba
123 m²
Tolna
Eladó ikerház

Tolna

62.9 M Ft
9 szoba
210 m²
Szekszárd
Eladó ikerház

Szekszárd

79.9 M Ft
2 + 2 szoba
95 m²
Simontornya
Eladó családi ház

Simontornya

28 M Ft
4 szoba
115 m²
Tolna
Eladó családi ház

Tolna

20 M Ft
3 szoba
80 m²
Bonyhád
Eladó családi ház

Bonyhád

44.9 M Ft
5 szoba
150 m²

Falusi CSOK ingatlanok

Sály, Kossuth Lajos 128
Eladó családi ház

Sály

27.45 M Ft
6 szoba
160 m²
Cece
Eladó családi ház

Cece

69.8 M Ft
4 szoba
215 m²
Szigetújfalu
Eladó családi ház

Szigetújfalu

71.65 M Ft
2 + 1 szoba
81 m²
Pécsvárad
Eladó családi ház

Pécsvárad

189 M Ft
7 szoba
618 m²
Békésszentandrás
Eladó családi ház

Békésszentandrás

550 M Ft
3 szoba
418 m²
Szilvásvárad
Eladó családi ház

Szilvásvárad

104.9 M Ft
5 szoba
340 m²
Maroslele
Eladó családi ház

Maroslele

28.9 M Ft
2 + 1 szoba
65 m²
Újlengyel
Eladó családi ház

Újlengyel

110 M Ft
4 szoba
121 m²