Avico Greentop

Eladó ikerház
Tápiószecső

+ 9 kép 1/12
69 900 000 Ft69.9 M Ft 735 789 Ft/m2
4 szoba
95 m²
építés éve:2025

Részletes adatok

Telekméret: 1900 m2
Fűtés: Egyéb
Energetikai besorolás: Nem adta meg a hirdető

Az OTP Bank lakáshitel ajánlataFizetett hirdetés

3629769723
Majzikné Tóth Krisztina
referens

Érdekel az OTP Bank kedvezményes lakáshitel ajánlata? *

* A kérdésre „Igen” válasz bejelölése esetén, az „Üzenet küldése” gombra kattintva kijelentem, hogy az OTP Bank Nyrt. Adatkezelési tájékoztatójának tartalmát megismertem és tudomásul vettem.

Eladó ikerház leírása

TÁPIÓSZECSŐN A VASÚT ÁLLOMÁSTÓL NEM MESSZE ÚJ ÉPÍTÉSŰ IKERHÁZ FÉL ,CSAK A TÁROLÓNÁL ÉR ÖSSZE!!!

Tápiószecső központi részén,nagyon jó elosztású ÚJ ÉPÍTÉSŰ CSALÁDI OTTHON!!!

HÁTSÓ Ingatlan!

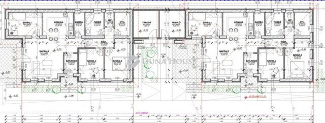
95,25 nm2 a hasznos fűthető területe.

1240 nm2-es Telek.

Az ingatlannak főbb jellemzői:

- 3 kényelmes méretű szoba.

- Amerikai konyha -Nappali amely 35nm2

- Külön Fürdő és külön wc

- Egy praktikus Háztartási Helyiség

- Egy ideális nagyságú Tároló.

- és egy saját használatú 1240 nm2-es Telek

A fűtési rendszer hőszivattyúval működik, így az energiaköltségek rendkívül alacsonyak.

Műszaki leírás:

P30N+F téglafal

10 cm homlokzati szigetelés

25 cm födém szigetelés

Hat légkamrás, háromrétegű műanyag thermo nyílászárók

Antracit színű cserép

Elektromos kapu előkészítése

A burkolatok és a beltéri ajtók a vállalkozó által biztosított összeghatárig választhatók:

Hidegburkolat: 3.000 Ft/m²

Melegburkolat: 3.000 Ft/m²

Beltéri ajtók: 30.000 Ft/db

Fürdőkád: 50.000 Ft

Csaptelepek: 15.000 Ft/db

Természetesen választható egyéni igények és ár ügyében is az alábbi belső kialakításért szükséges burkolatok,szaniterek,ajtók.

Ezzel kapcsolatban a kivitelezővel egyeztetve feleár ellenében lehetséges.

Referencia munkát is szívesen mutatok, Sülysápon komoly érdeklődés esetén!

Várom megtisztelő hívását,hitel ügyintézésben is rendelkezésére állok, bank független hitelügyintézőnkkel.
Érd.: Majzikné Tóth Krisztina, tel.: +36/20 927 3299, e-mail: majzikne.krisztina@dh.hu

Referencia szám: HZ047301

Hirdetés feltöltve: 2026. 02. 14. Utoljára módosítva: 2026. 02. 25.

4 szobás ikerházak ára Tápiószecsőn

Ebből az összehasonlításból megtudhatod, hogyan viszonyul a lakás ára a környékbeli ikerházak átlagos árához. Ez nem azt jelenti, hogy ennyivel olcsóbb vagy drágább, mint amennyit a lakás ér, hanem hogy ennyivel tér el a környékbeli átlagtól.

Ennek a m² ára
Tápiószecső m² ár
736 e Ft
687 e Ft -7%
Ennek az ára
Tápiószecső átlagár
69.9 M Ft m Ft
67.2 m Ft -4%

Az ingatlan elhelyezkedése

Cím: Tápiószecső

Eladó ingatlanok a környékről

Tápiószecső
Eladó ikerház

Tápiószecső

74.9 M Ft
4 szoba
102 m²
Szentendre
Eladó ikerház

Szentendre

718 M Ft
10 + 2 szoba
578 m²
Zsámbok
Eladó családi ház

Zsámbok

45 M Ft
3 szoba
100 m²
Tápiószecső
Eladó ikerház

Tápiószecső

69.9 M Ft
4 szoba
95 m²
Kiskunlacháza
Eladó ikerház

Kiskunlacháza

41 M Ft
2 szoba
39 m²
Pócsmegyer
Eladó családi ház

Pócsmegyer

87.9 M Ft
4 szoba
100 m²
Leányfalu
Eladó családi ház

Leányfalu

196 M Ft
5 szoba
131 m²
Nagytarcsa
Eladó ikerház

Nagytarcsa

119.9 M Ft
4 szoba
103 m²
Tápiószecső
Eladó ikerház

Tápiószecső

69.9 M Ft
4 szoba
95 m²
Vecsés
Eladó családi ház

Vecsés

89.9 M Ft
4 szoba
120 m²
Szigethalom
Eladó családi ház

Szigethalom

115 M Ft
4 szoba
134 m²
Vácrátót
Eladó ikerház

Vácrátót

99.9 M Ft
3 + 2 szoba
112 m²
Tápiószecső
Eladó ikerház

Tápiószecső

69.9 M Ft
4 szoba
95 m²
Tahitótfalu
Eladó telek

Tahitótfalu

30 M Ft
1026 m²
0 m²
Vecsés
Eladó családi ház

Vecsés

88 M Ft
5 szoba
121 m²
Mogyoród
Eladó ikerház

Mogyoród

135 M Ft
5 szoba
137 m²
Szentendre
Eladó ikerház

Szentendre

149.9 M Ft
4 szoba
220 m²
Veresegyház
Eladó ikerház

Veresegyház

145 M Ft
4 szoba
120 m²
Halásztelek
Eladó ikerház

Halásztelek

154 M Ft
4 szoba
90 m²
Vác
Eladó ikerház

Vác

89.9 M Ft
4 szoba
91 m²
Tápiószecső
Eladó ikerház

Tápiószecső

59.9 M Ft
4 szoba
100 m²
Pilisjászfalu
Eladó ikerház

Pilisjászfalu

82.279 M Ft
4 szoba
73 m²
Vác
Eladó ikerház

Vác

96.7 M Ft
4 + 1 szoba
126 m²
Szentendre
Eladó ikerház

Szentendre

179 M Ft
5 + 1 szoba
147 m²

Falusi CSOK ingatlanok

Balatonszemes
Eladó téglalakás

Balatonszemes

91.5 M Ft
2 szoba
60 m²
Balatonfenyves
Eladó családi ház

Balatonfenyves

179.9 M Ft
5 szoba
210 m²
Bodajk
Eladó családi ház

Bodajk

42 M Ft
2 szoba
75 m²
Háromfa, Kossuth
Eladó családi ház

Háromfa

22.4 M Ft
1247 m²
139 m²
Szentmártonkáta
Eladó családi ház

Szentmártonkáta

45.9 M Ft
4 szoba
95 m²
Bakonycsernye
Eladó családi ház

Bakonycsernye

48 M Ft
3 szoba
76 m²
Mikepércs
Eladó családi ház

Mikepércs

129.9 M Ft
4 szoba
141 m²
Tótszentmárton
Eladó családi ház

Tótszentmárton

120 M Ft
2 szoba
234 m²