Aerogate Homes

Eladó ikerház
Tápiószecső

+ 10 kép 1/13
59 900 000 Ft59.9 M Ft 630 526 Ft/m2
4 szoba
95 m2
építés éve:2025

Részletes adatok

Telekméret: 1900 m2
Fűtés: Egyéb
Energetikai besorolás: Nem adta meg a hirdető

Az OTP Bank lakáshitel ajánlataFizetett hirdetés

+36 1 690
Szabó Balázs
referens

Érdekel az OTP Bank kedvezményes lakáshitel ajánlata? *

* A kérdésre „Igen” válasz bejelölése esetén, az „Üzenet küldése” gombra kattintva kijelentem, hogy az OTP Bank Nyrt. Adatkezelési tájékoztatójának tartalmát megismertem és tudomásul vettem.

Eladó ikerház leírása

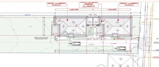
TÁPIÓSZECSŐN A VASÚT ÁLLOMÁSTÓL NEM MESSZE ÚJ ÉPÍTÉSŰ IKERHÁZ FÉL ,CSAK A TÁROLÓNÁL ÉR ÖSSZE!!!Tápiószecső központi részén,nagyon jó elosztású ÚJ ÉPÍTÉSŰ CSALÁDI OTTHON!!!Utcafronti Ingatlan!95,25 nm2 a hasznos fűthető területe.640 nm2-es Telek.Az ingatlannak főbb jellemzői:- 3 kényelmes méretű szoba.- Amerikai konyha -Nappali amely 35nm2- Külön Fürdő és külön wc- Egy praktikus Háztartási Helyiség- Egy ideális nagyságú Tároló.- és egy saját használatú 640 nm2-es TelekA fűtési rendszer hőszivattyúval működik, így az energiaköltségek rendkívül alacsonyak.Műszaki leírás:P30N+F téglafal10 cm homlokzati szigetelés25 cm födém szigetelésHat légkamrás, háromrétegű műanyag thermo nyílászárókAntracit színű cserépElektromos kapu előkészítéseA burkolatok és a beltéri ajtók a vállalkozó által biztosított összeghatárig választhatók:Hidegburkolat: 3.000 Ft/m²Melegburkolat: 3.000 Ft/m²Beltéri ajtók: 30.000 Ft/dbFürdőkád: 50.000 FtCsaptelepek: 15.000 Ft/dbTermészetesen választható egyéni igények és ár ügyében is az alábbi belső kialakításért szükséges burkolatok,szaniterek,ajtók.Ezzel kapcsolatban a kivitelezővel egyeztetve feleár ellenében lehetséges.Referencia munkát is szívesen mutatok, Sülysápon komoly érdeklődés esetén!Várom megtisztelő hívását,hitel ügyintézésben is rendelkezésére állok, bank független hitelügyintézőnkkel.
Érd.: Szabó Balázs +36 (30) 7013744

Referencia szám: HZ083039

Hirdetés feltöltve: 2025. 08. 13. Utoljára módosítva: 2025. 11. 26.

4 szobás ikerházak ára Tápiószecsőn

Ebből az összehasonlításból megtudhatod, hogyan viszonyul a lakás ára a környékbeli ikerházak átlagos árához. Ez nem azt jelenti, hogy ennyivel olcsóbb vagy drágább, mint amennyit a lakás ér, hanem hogy ennyivel tér el a környékbeli átlagtól.

Ennek a m² ára
Tápiószecső m² ár
631 e Ft
684 e Ft 8%
Ennek az ára
Tápiószecső átlagár
59.9 M Ft m Ft
67.3 m Ft 11%

Az ingatlan elhelyezkedése

Cím: Tápiószecső

Eladó ikerházak a környékről

Eladó ikerház
Eladó ikerház

Vác

175.356 M Ft
5 szoba
165 m2
Eladó ikerház
Eladó ikerház

Vác

94.5 M Ft
4 + 1 szoba
126 m2
Eladó ikerház
Eladó ikerház

Pilisjászfalu

70.563 M Ft
4 szoba
61 m2
Eladó ikerház
Eladó ikerház

Tápiószecső

64.9 M Ft
4 szoba
95 m2
Eladó ikerház
Eladó ikerház

Tápiószecső

74.9 M Ft
4 szoba
102 m2
Eladó ikerház
Eladó ikerház

Tápiószecső

59.9 M Ft
4 szoba
95 m2
Eladó ikerház
Eladó ikerház

Tápiószecső

74.9 M Ft
4 szoba
102 m2
Eladó ikerház
Eladó ikerház

Pusztazámor

55 M Ft
10 szoba
470 m2
Eladó ikerház
Eladó ikerház

Tápiószecső

64.9 M Ft
4 szoba
95 m2
Eladó ikerház
Eladó ikerház

Tápiószecső

64.9 M Ft
4 szoba
95 m2
Eladó ikerház
Eladó ikerház

Pécel, Pécel - kertváros

127 M Ft
4 szoba
125 m2
Eladó ikerház
Eladó ikerház

Diósd

206.25 M Ft
5 szoba
184 m2
Eladó ikerház
Eladó ikerház

Tápiószecső

74.9 M Ft
4 szoba
102 m2
Eladó ikerház
Eladó ikerház

Tápiószecső

59.9 M Ft
4 szoba
95 m2
Eladó ikerház
Eladó ikerház

Szentendre

359 M Ft
5 szoba
289 m2
Eladó ikerház
Eladó ikerház

Solymár

150 M Ft
4 + 2 szoba
252 m2
Eladó ikerház
Eladó ikerház

Tápiószecső

64.9 M Ft
4 szoba
95 m2
Eladó ikerház
Eladó ikerház

Tápiószecső

64.9 M Ft
4 szoba
95 m2
Eladó ikerház
Eladó ikerház

Tápiószecső

59.9 M Ft
4 szoba
95 m2
Eladó ikerház
Eladó ikerház

Üröm

249.9 M Ft
4 szoba
154 m2
Eladó ikerház
Eladó ikerház

Szentendre, Szentendre

398 M Ft
5 szoba
267 m2
Eladó ikerház
Eladó ikerház

Tápiószecső

59.9 M Ft
4 szoba
95 m2
Eladó ikerház
Eladó ikerház

Tahitótfalu

88.9 M Ft
4 szoba
110 m2
Eladó ikerház
Eladó ikerház

Tápiószecső

64.9 M Ft
4 szoba
95 m2

Falusi CSOK ingatlanok

Eladó ikerház
Eladó ikerház

Balatonkenese

84.99 M Ft
3 szoba
76 m2
Eladó családi ház
Eladó családi ház

Hercegszántó

33 M Ft
4 szoba
144 m2
Eladó családi ház
Eladó családi ház

Ságvár

46.9 M Ft
2 szoba
70 m2
Eladó családi ház
Eladó családi ház

Pannonhalma

76.4 M Ft
4 szoba
97 m2
Eladó családi ház
Eladó családi ház

Németkér

149.9 M Ft
2 szoba
540 m2
Eladó családi ház
Eladó családi ház

Ceglédbercel, Iskola utca

89.99 M Ft
5 szoba
110 m2
Eladó családi ház
Eladó családi ház

Szil

25 M Ft
2 szoba
90 m2
Eladó családi ház
Eladó családi ház

Mencshely

99 M Ft
3 szoba
126 m2