Metrodom

Eladó ikerház
Taksony

+ 9 kép 1/12
114 900 000 Ft114.9 M Ft 926 613 Ft/m2
4 + 1 szoba
124 m²
építés éve:2025

Részletes adatok

Telekméret: 1961 m2
Fűtés: Egyéb
Energetikai besorolás: A+

Az OTP Bank lakáshitel ajánlataFizetett hirdetés

+36 70 415
Kozári Tünde
Budapest XI. kerület OTP Ingatlanpont

Érdekel az OTP Bank kedvezményes lakáshitel ajánlata? *

* A kérdésre „Igen” válasz bejelölése esetén, az „Üzenet küldése” gombra kattintva kijelentem, hogy az OTP Bank Nyrt. Adatkezelési tájékoztatójának tartalmát megismertem és tudomásul vettem.

Eladó ikerház leírása

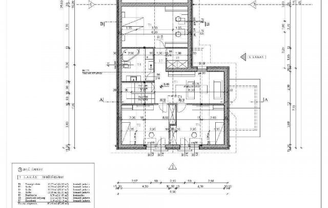
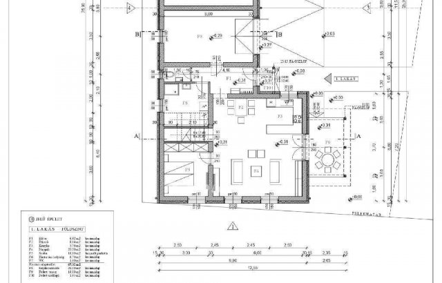
Eladó újépítésű kétszintes ikerház Taksonyban, mely népszerű horgász-, csónakázó- és nyári üdülőhely Pest megyében, a Szigetszentmiklósi járásban, a budapesti agglomerációban. 1961 nm-es telken 2 db kétlakásos lakóépület épül, amely a kényelem és a fenntarthatóság jegyében készül.

A földszint 67,3 nm, a tetőtér 57,3 nm-es, így a ház 124,6 nm-es. Az alsó szinten helyezkedik el az amerikai konyhás nappali étkezővel (40 nm), egy szoba (11 nm), a háztartási helyiség és egy WC. A felső szinten kapott helyet egy társalgó (18 nm), 3 szoba (12, 12, 12 nm), egy fürdőszoba, és egy ruhatároló helyiség. Ezen kívül a házhoz tartozik még 10 nm-es fedett terasz és egy 21 nm-es garázs is - ezek kapcsolódnak össze.

Műszaki tartalom: - beton alap, tégla falazat, kerámia tetőcserép, 15 cm-es szigetelés - háromrétegű, hőszigetelt műanyag nyílászárók redőnnyel - vizes helyiségekben kerámialap, a szobákban laminált parketta. A fűtése, hűtése és a melegvíz előállítása hőszivattyúval megoldott padlófűtés hőleadással, így otthona energiahatékonnyá válik, egy csepp energia sem vész kárba. Közművek: víz, villany bevezetve, csatorna a telekhatáron. 3*32 A is bevezetésre kerül. Ez a ház magas műszaki tartalommal épül, amely modern és energiatakarékos otthont biztosít.

Finanszírozási lehetőségek: CSOK +, 3%-os Otthon Start és Babaváró hitel
Az árak a lakás elhelyezkedéséből és a telek méretéből adódóan eltérnek:
1. lakás 114,9 M, telek mérete: 273 nm
2. lakás 129,9 M, telek mérete: 558 nm
3. lakás 129,9 M, telek mérete: 558 nm
4. lakás 134,9 M, telek mérete: 572 nm

Taksony a dél-pesti részen, Budapest határától 10 km-re helyezkedik el. Szomszédos települései: Dunaharaszti, Alsónémedi, Bugyi, Dunavarsány, Szigetszentmiklós. A nagyközséget az 510-es út szeli át, az M0-ás autópálya 12 km-re van tőle. A települést a Budapest - Kelebia - vasútvonal érinti.

Árpád unokájának, Taksony fejedelemnek a birtoka volt, innen ered a nagyközség neve. Lakosainak száma 6800 fő. Bölcsőde, német nemzetiségi óvoda ill. iskola várja a tanulni vágyó gyermekeket. Posta, gyermekorvosi rendelő és üzletközpont segíti a mindennapokat. A természetvédelmi terület ritkaságai - a védett úszólápok, a ritka orchideafélék, a gazdag madárvilág, a vízi állatok kiválóan megfigyelhetők itt.

Az emberek ösztönösen vágynak a nyugalomra, a szépre, a természet csöndjére - Taksonyban mindez elérhető.

Ez a ház ideális választás mindazoknak, akik szeretnék a főváros közelségét ötvözni a nyugodt, természetközeli életérzéssel egy impozáns, korszerű otthonban.

Referencia szám: M315675

Hirdetés feltöltve: 2026. 04. 01.

5 szobás ikerházak ára Taksonyon

Ebből az összehasonlításból megtudhatod, hogyan viszonyul a lakás ára a környékbeli ikerházak átlagos árához. Ez nem azt jelenti, hogy ennyivel olcsóbb vagy drágább, mint amennyit a lakás ér, hanem hogy ennyivel tér el a környékbeli átlagtól.

Ennek a m² ára
Taksony m² ár
927 e Ft
942 e Ft 2%
Ennek az ára
Taksony átlagár
114.9 M Ft m Ft
124 m Ft 7%

Az ingatlan elhelyezkedése

Cím: Taksony

Eladó ikerházak a környékről

Budakalász
Eladó ikerház

Budakalász

195 M Ft
5 + 2 szoba
170 m²
Taksony
Eladó ikerház

Taksony

114.9 M Ft
4 + 1 szoba
124 m²
Taksony
Eladó ikerház

Taksony

134.9 M Ft
5 szoba
187 m²
Budakalász
Eladó ikerház

Budakalász

159 M Ft
6 szoba
140 m²
Taksony
Eladó ikerház

Taksony

129.9 M Ft
5 szoba
124 m²
Taksony
Eladó ikerház

Taksony

129.9 M Ft
5 szoba
187 m²
Vác
Eladó ikerház

Vác

99.7 M Ft
4 + 1 szoba
129 m²
Dunakeszi
Eladó ikerház

Dunakeszi

149 M Ft
1 + 4 szoba
127 m²
Pomáz
Eladó ikerház

Pomáz

129.5 M Ft
4 szoba
100 m²
Taksony
Eladó ikerház

Taksony

134.9 M Ft
5 szoba
187 m²
Kiskunlacháza
Eladó ikerház

Kiskunlacháza

44.9 M Ft
2 szoba
39 m²
Vácrátót
Eladó ikerház

Vácrátót

94.9 M Ft
2 + 3 szoba
108 m²
Taksony
Eladó ikerház

Taksony

129.9 M Ft
4 + 1 szoba
124 m²
Taksony
Eladó ikerház

Taksony

114.9 M Ft
5 szoba
124 m²
Taksony
Eladó ikerház

Taksony

91 M Ft
4 szoba
91 m²
Taksony
Eladó ikerház

Taksony

114.9 M Ft
5 szoba
124 m²
Taksony
Eladó ikerház

Taksony

114.9 M Ft
5 szoba
187 m²
Herceghalom
Eladó ikerház

Herceghalom

135 M Ft
5 szoba
134 m²
Taksony
Eladó ikerház

Taksony

113.3 M Ft
4 szoba
103 m²
Mogyoród
Eladó ikerház

Mogyoród

129 M Ft
5 szoba
123 m²
Vácrátót
Eladó ikerház

Vácrátót

99.9 M Ft
3 + 2 szoba
112 m²
Nagytarcsa
Eladó ikerház

Nagytarcsa

119.9 M Ft
4 szoba
103 m²
Szentendre
Eladó ikerház

Szentendre

359 M Ft
5 + 1 szoba
289 m²
Dunakeszi
Eladó ikerház

Dunakeszi

178 M Ft
6 szoba
140 m²

Falusi CSOK ingatlanok

Tápiógyörgye
Eladó családi ház

Tápiógyörgye

14.9 M Ft
2 szoba
60 m²
Jakabszállás
Eladó családi ház

Jakabszállás

105 M Ft
6 szoba
180 m²
Tápiógyörgye
Eladó családi ház

Tápiógyörgye

24.99 M Ft
6 + 1 szoba
153 m²
Kocsér
Eladó családi ház

Kocsér

27.9 M Ft
4 szoba
108 m²
Újszilvás
Eladó családi ház

Újszilvás

49.9 M Ft
8 szoba
310 m²
Levelek
Eladó családi ház

Levelek

73 M Ft
5 szoba
220 m²
Farmos
Eladó családi ház

Farmos

59.9 M Ft
4 szoba
90 m²
Halimba
Eladó családi ház

Halimba

59.9 M Ft
6 szoba
182 m²